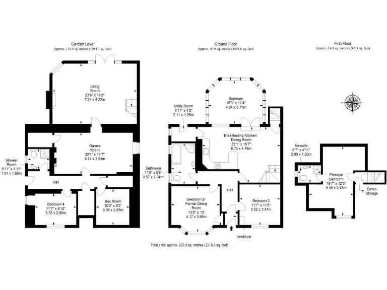
Versatile family layout with games room and large driveway.
South-facing with large, professionally landscaped rear garden
This south-facing detached family home sits on a generous plot in leafy Blackhall and delivers flexible living across generous floorplates. The bright breakfasting kitchen and expansive living room — which opens through French doors to a professionally landscaped rear garden — create a comfortable sociable core for family life. A large games room and a versatile box room/home office add practical space for hobbies and remote working.
Accommodation includes four double bedrooms, with the principal suite occupying the converted first-floor dormer and a contemporary en-suite. There are bathroom facilities on every level, including a luxurious four-piece family bathroom and a ground-floor shower room, giving real convenience for busy households. Integrated kitchen appliances, fitted blinds and much of the flooring are included in the sale; furniture is available by negotiation.
Outside, the property benefits from a low-maintenance south-facing front garden, a multi-car monoblock driveway and a secluded rear lawn with timber decking — excellent for children and entertaining. Practical extras include a utility room with direct garden access and excellent broadband and mobile signal for homeworking and streaming.
Notable points to consider: the council tax band is high and items left in the sale (moveables, appliances) are sold as seen with no warranties. Also, public datasets flag area deprivation measures that contrast with the neighbourhood’s generally affluent character; please view in person to judge location fit and condition for your needs.
4 bedroom detached house for sale in Hillpark Avenue, Blackhall, Edinburgh, EH4 — £750,000 • 4 bed • 3 bath • 1823 ft²
3 bedroom detached bungalow for sale in 87 Hillhouse Road, Edinburgh EH4 7AB, EH4 — £550,000 • 3 bed • 2 bath • 2057 ft²
4 bedroom semi-detached house for sale in 41 Hillhouse Road, Edinburgh, EH4 — £685,000 • 4 bed • 2 bath • 1819 ft²
3 bedroom semi-detached house for sale in 35 March Road, Blackhall, Edinburgh, EH4 3TA, EH4 — £475,000 • 3 bed • 2 bath • 1281 ft²
5 bedroom detached house for sale in House O'Hill Road, Edinburgh, EH4 — £825,000 • 5 bed • 2 bath • 2250 ft²
3 bedroom terraced house for sale in 27 Seaforth Drive, Edinburgh, EH4 2BZ, EH4 — £550,000 • 3 bed • 1 bath • 1313 ft²














































































































