Spacious top-floor two-bedroom with garage and communal gardens in central Southampton.
Top-floor, south-facing apartment with lift access
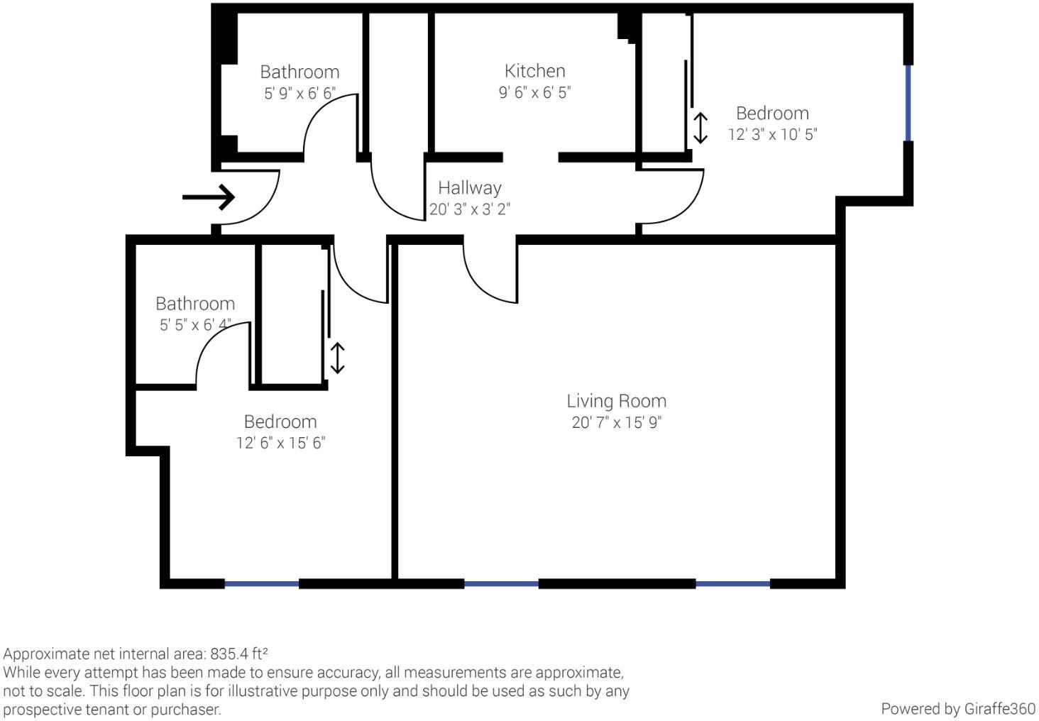
This bright, top-floor two-bedroom apartment in Osborne House occupies approximately 835 sq ft and benefits from a south-facing aspect, large reception/dining room (around 20ft) and lift access. The flat is presented in well-cared-for condition with a modern kitchen, master en suite and plentiful built-in storage — ready for immediate occupation or let. A garage and well-maintained communal gardens add practical outdoor space and secure parking.
Set in a red-brick mansion-block style development in the Bedford Place/City Centre pocket, the location puts bespoke shops, cafes and transport links within easy walking distance. Southampton Central station is around 15 minutes on foot and the cultural quarter and Above Bar are about ten minutes away, making this attractive for professionals and downsizers seeking low-maintenance central living.
Important practical details: the property is leasehold with approximately 990 years remaining, an annual service charge of about £1,765 and a peppercorn ground rent. It is being sold chain-free but currently has a tenant in situ — showings require a minimum of 24 hours’ notice. Council Tax band C.
Considerations: the wider area records higher crime levels than average, which should be weighed against the strong central location and communal security. The apartment is suitable for owner-occupiers, investors or landlords wanting a well-located let; any buyer wanting total privacy or a quiet suburban setting may prefer a different area.
2 bedroom flat for sale in Queensway, Southampton, Hampshire, SO14 — £170,000 • 2 bed • 2 bath • 713 ft²
2 bedroom flat for sale in The Avenue, Southampton, Hampshire, SO17 — £240,000 • 2 bed • 2 bath • 750 ft²
2 bedroom apartment for sale in Briton Street, Southampton, Hampshire, SO14 — £210,000 • 2 bed • 2 bath • 840 ft²
2 bedroom flat for sale in Canute Road, Southampton, Hampshire, SO14 — £215,000 • 2 bed • 2 bath • 729 ft²
2 bedroom flat for sale in Alexander Place, The Avenue, Southampton, SO17 — £240,000 • 2 bed • 2 bath • 697 ft²
2 bedroom apartment for sale in Archers Road, Southampton, Hampshire, SO15 — £170,000 • 2 bed • 2 bath • 711 ft²






























































