High-floor living with extensive resident amenities and excellent transport connections.
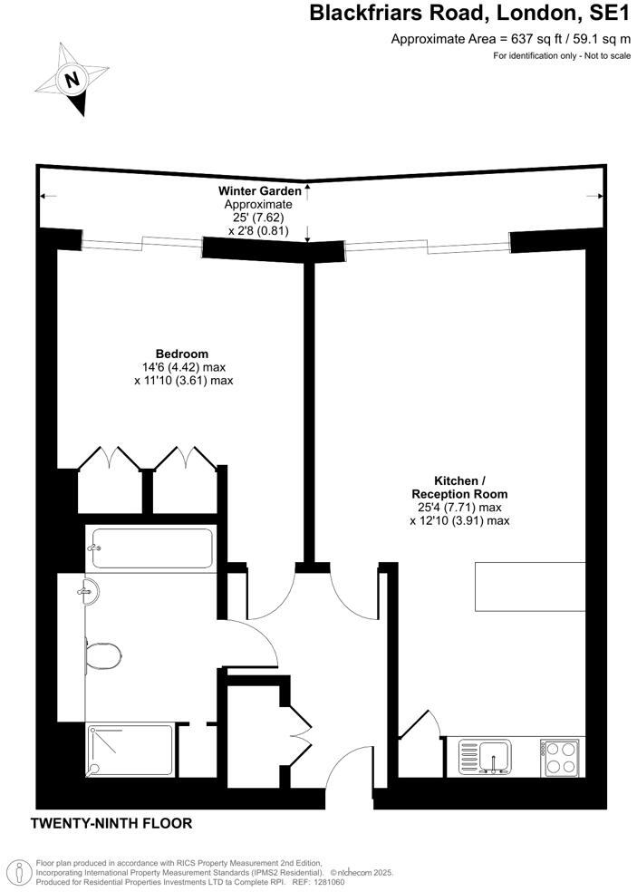
29th-floor one-bedroom apartment with south-facing balcony and city views
This 29th-floor, one-bedroom apartment at 1 Blackfriars Road offers 645 sq ft of contemporary city living with generous natural light from floor-to-ceiling windows. The open-plan layout includes a large bedroom with fitted wardrobe, a modern kitchen with integrated appliances and island, and a private south-facing balcony with broad city views — ideal for professionals wanting a compact but comfortable urban base.
Residents benefit from building amenities that enhance everyday convenience: 24-hour concierge, residents’ gym, swimming pool and a 23rd-floor lounge. Excellent transport links are nearby (Waterloo and Southwark stations) and fast mobile and broadband speeds support remote working. The long lease (991 years) provides security for ownership and investment planning.
Be upfront about practical considerations: the property is leasehold, there is no parking, and the immediate area records very high crime levels — factors that may affect insurance, lifestyle and rental appeal. Heating is via a community scheme; service charges and council tax are not supplied here and should be checked. Overall, this is a modern, well-equipped high-rise apartment suited to a professional buyer or investor seeking central London presence with strong transport access.
2 bedroom apartment for sale in One Blackfriars, South Bank SE1 — £2,200,000 • 2 bed • 2 bath • 1344 ft²
1 bedroom apartment for sale in One Blackfriars, Blackfriars Road, SE1 — £900,000 • 1 bed • 1 bath • 686 ft²
2 bedroom apartment for sale in One Blackfriars, Blackfriars Road, Southwark, London, SE1, United Kingdom, SE1 — £2,250,000 • 2 bed • 2 bath • 1582 ft²
1 bedroom apartment for sale in One Blackfriars, 1 Blackfriars Road, London, SE1 — £1,000,000 • 1 bed • 1 bath • 797 ft²
1 bedroom flat for sale in One Blackfriars, Blackfriars Road, South Bank, London, SE1 — £800,000 • 1 bed • 1 bath • 591 ft²
2 bedroom flat for sale in 1 Blackfriars Road, London, SE1 — £2,600,000 • 2 bed • 2 bath • 1478 ft²


































































































































































