Bright two-bed bungalow with west garden, log cabin and parking, minutes from Whitstable amenities.
Extended open-plan kitchen/living with skylight and underfloor heating
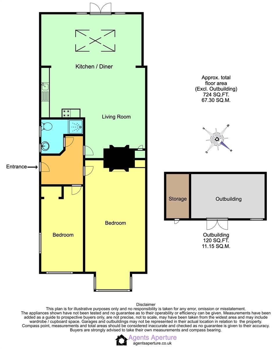
Light, single-storey living and a westerly garden make this extended semi-detached bungalow an easy-to-run home close to Tankerton's shops, cafes and the working harbour. The rear extension creates a bright, open-plan kitchen/living room with a log-burning stove, lantern skylight and underfloor heating — ideal for relaxed entertaining or quieter everyday living. A compact log cabin with power and light adds versatile garden space for hobbies or home working.
The bungalow has two good-sized bedrooms and a modern fitted shower room, suited to couples, small families or downsizers seeking convenience and low-maintenance accommodation. Practical features include off-road parking, a gated side access, mostly UPVC double glazing, a loft that is insulated and mainly boarded, and a gas boiler providing central heating and hot water.
Buyers should note the property sits on a relatively small plot and the internal footprint is modest (approx. 724 sq ft). Bedroom two is narrower, and there is a single shower room rather than a bath. The house is traditional in style and, while well-presented, offers scope for further modernisation or personalisation where desired.
Location is a strong selling point: Whitstable mainline station is within comfortable walking distance, the town centre and eateries are nearby, and local schools cover a range of ratings. Tenure is freehold and council tax sits in Band B, reflecting relatively low ongoing costs. Internal viewing is recommended to appreciate the layout and light.
2 bedroom semi-detached bungalow for sale in Summerfield Avenue, Whitstable, CT5 — £379,995 • 2 bed • 1 bath • 772 ft²
4 bedroom detached bungalow for sale in Juniper Close, Tankerton, Whitstable, CT5 — £725,000 • 4 bed • 3 bath • 2077 ft²
2 bedroom detached bungalow for sale in Fitzroy Road, Tankerton, Whitstable, CT5 — £475,000 • 2 bed • 1 bath • 1365 ft²
2 bedroom semi-detached bungalow for sale in Church Street, Tankerton, Whitstable, CT5 — £395,000 • 2 bed • 1 bath • 599 ft²
2 bedroom semi-detached bungalow for sale in Palace Close, Tankerton, Whitstable, CT5 — £410,000 • 2 bed • 1 bath • 656 ft²
3 bedroom detached bungalow for sale in Columbia Avenue, Whitstable, CT5 — £465,000 • 3 bed • 1 bath • 5977 ft²






































































































