Two-bed period terrace in Lower Bemerton — large garden, workshop; needs full modernisation..
- Characterful end-terrace with original brick facade and timber features
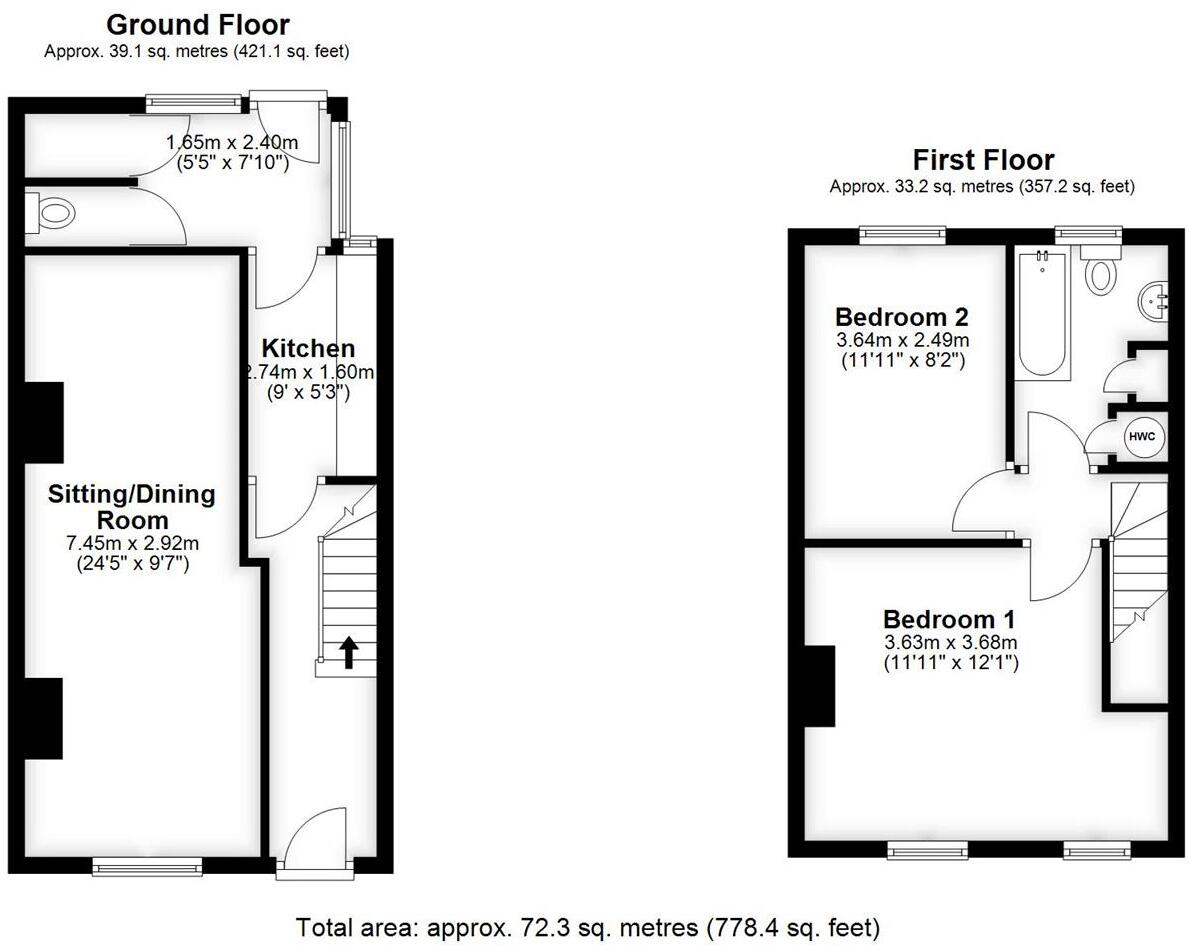
- Two bedrooms, one bathroom; approx 779 sq ft (average sized)
- Requires complete modernisation throughout; refurbishment needed
- Good-sized rear garden with workshop, greenhouse and rear access
- Vacant possession; freehold tenure
- Mains gas heating (boiler and radiators); all mains connected
- Cavity walls likely uninsulated; thermal improvements advised
- Double glazing present but installation date unknown
This characterful end-terrace in Lower Bemerton offers genuine potential for a buyer willing to renovate. The house retains period features such as brick facade, timber details and two fireplaces, while providing a practical two-bedroom layout, good-sized rear garden, workshop and greenhouse. It is offered with vacant possession and freehold tenure.
The property requires complete modernisation throughout: cosmetic updates, new heating/electrical checks as needed, and likely thermal improvements (cavity walls appear uninsulated). Double glazing is fitted but install date is unknown. Buyers should plan a full refurbishment budget rather than expecting a move-in-ready home.
Positive practical points include mains gas boiler and radiators, all main services connected, rear pedestrian access and a loft hatch for additional storage or conversion subject to checks. Council Tax Band C and fast broadband/excellent mobile signal suit everyday needs. Located in a sought-after, affluent part of Lower Bemerton, the house is close to well-regarded schools and local amenities.
This property will suit first-time buyers seeking to add value, owner-occupiers wanting to personalise a period home, or small-scale investors comfortable with a renovation project. Material drawbacks are factual and significant: full modernisation required, probable insulation upgrade, and refurbishment costs that should be factored into offers.
2 bedroom town house for sale in Lower Road, Lower Bemerton, SP2 — £249,950 • 2 bed • 1 bath • 814 ft²
2 bedroom terraced house for sale in Exeter Street, Salisbury, SP1 — £250,000 • 2 bed • 1 bath • 924 ft²
2 bedroom terraced house for sale in Hillview Road, Salisbury, SP1 — £230,000 • 2 bed • 1 bath • 619 ft²
2 bedroom terraced house for sale in Gorringe Road, Salisbury, SP2 — £220,000 • 2 bed • 1 bath • 655 ft²
4 bedroom terraced house for sale in St. Andrews Road, Salisbury, SP2 — £375,000 • 4 bed • 2 bath • 1185 ft²
3 bedroom terraced house for sale in Wilton Road, Salisbury SP2 — £239,950 • 3 bed • 1 bath • 757 ft²


























































