Period first-floor flat in Trinity — ideal renovation project for first-time buyers or investors.
First-floor Victorian tenement with period cornice and sash windows
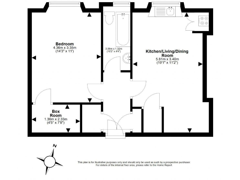
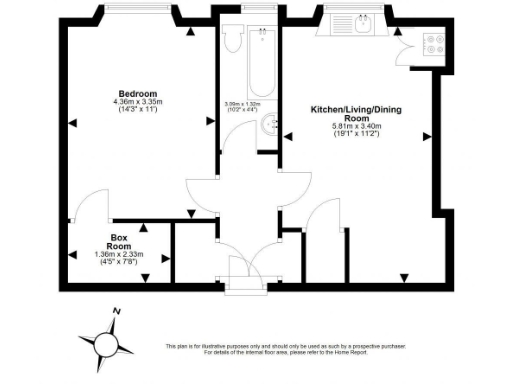
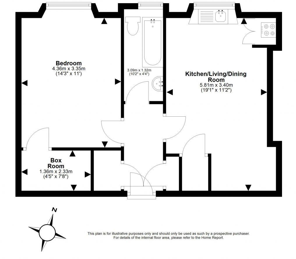
A first-floor one-bedroom tenement flat in Trinity, offering period character and clear scope for value-adding refurbishment. High ceilings, original cornice and sash windows give the principal rooms a bright, traditional feel, while the compact open-plan living/kitchen is practical for modern living once updated. Communal rear gardens are well maintained and there is unrestricted on-street parking.
The property requires modernisation throughout: dated fixtures, older heating, and cosmetic wear are evident, and the entry buzzer is not currently working. The layout includes a double bedroom, a small box room useful as storage or a home office, and a shower room with electric shower and heated towel rail. The flat is freehold and has fast broadband, making it suitable for a resident occupant or buy-to-let investor.
This flat will appeal to first-time buyers seeking a city-base with renovation potential or investors targeting rental demand in North Edinburgh. The location delivers excellent transport links, nearby green space at the Royal Botanic Gardens and Inverleith Park, and easy cycling routes to Stockbridge, Leith and the city centre. Budget for updating the kitchen, bathroom and finishes to unlock the property’s potential.
Overall, this is a compact, characterful apartment sold as a renovation opportunity. It offers a cost-effective entry into Trinity with strong location benefits, but buyers should factor in refurbishment costs and some immediate remedial work.
2 bedroom flat for sale in 2 (2F2), Craighall Crescent, Edinburgh, EH6 4RY, EH6 — £230,000 • 2 bed • 1 bath • 840 ft²
1 bedroom flat for sale in 26/4 Gosford Place, Trinity, Edinburgh, EH6 4BH, EH6 — £290,000 • 1 bed • 1 bath • 710 ft²
1 bedroom flat for sale in Granton Road, Edinburgh, EH5 — £145,000 • 1 bed • 1 bath • 424 ft²
1 bedroom flat for sale in 7/4 Darnell Road, Edinburgh, EH5 — £299,950 • 1 bed • 1 bath • 797 ft²
2 bedroom flat for sale in 28/3 Craighall Road, Trinty, EH6 4SA, EH6 — £295,000 • 2 bed • 2 bath • 706 ft²
2 bedroom flat for sale in 40/4 Craighall Road, Edinburgh, EH6 — £265,000 • 2 bed • 1 bath • 710 ft²






























































