Sun-filled garden, garage and loft conversion potential in a peaceful cul de sac.
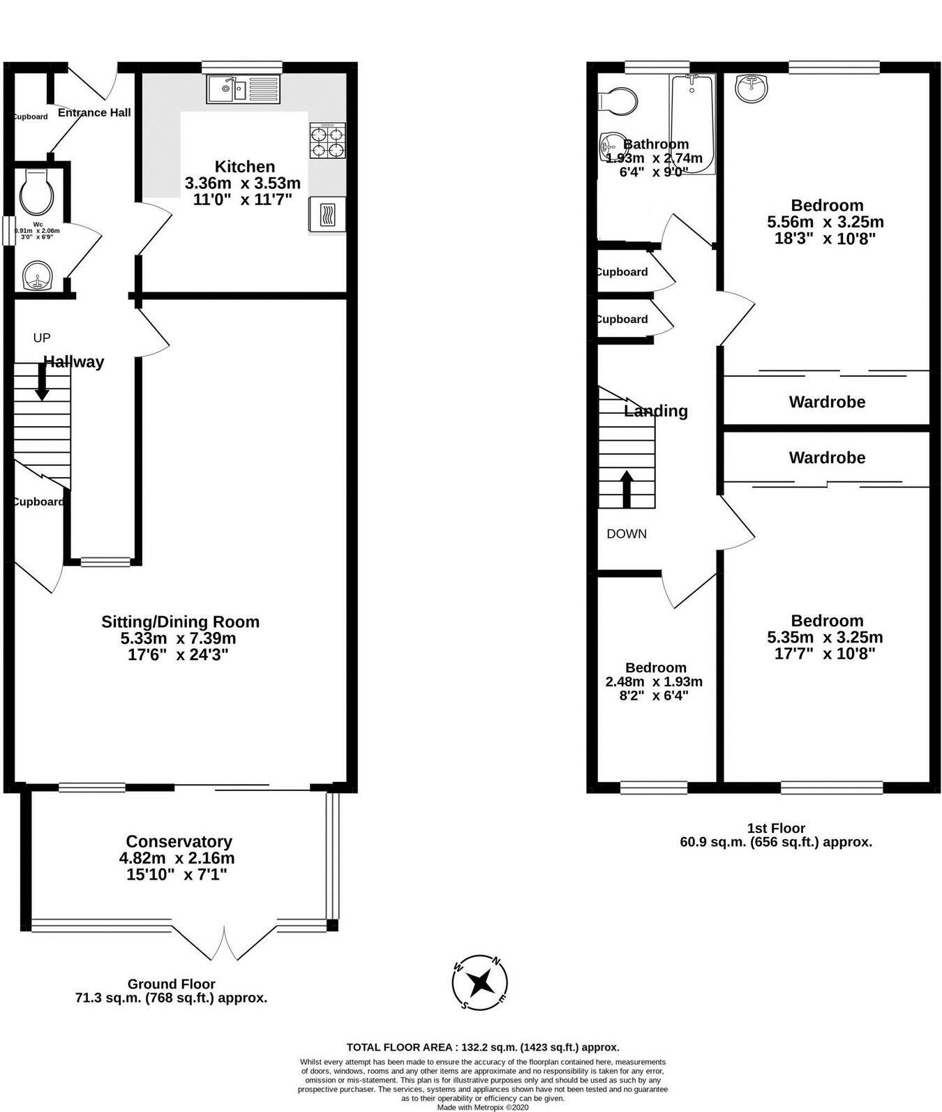
- Freehold 3-bedroom terraced home, approx. 1,423 sq ft
- South-facing enclosed rear garden and sunroom/conservatory
- Garage in private block of three; parking available
- Large loft with scope for conversion (requires consents)
- Double glazing fitted after 2002; mains gas central heating
- Single family bathroom only; may be limiting for larger households
- Annual service charge approx. £600; communal upkeep ~£50/month
- EPC D; mixed local school Ofsted ratings nearby
Set at the end of a quiet cul-de-sac, this freehold 3-bedroom home offers generous living space (approx. 1,423 sq ft) and practical family layout. The large living/dining room flows into a sun-facing conservatory and an enclosed south-facing rear garden, giving easy indoor–outdoor living and good natural light. A garage in a private block and on-site communal grounds add convenience.
The property has useful upgrades including double glazing (fitted after 2002), mains gas central heating with boiler and radiators, and a contemporary family bathroom. A very large loft presents realistic potential for conversion into extra accommodation, subject to planning and building consents — a clear value opportunity for growing families or investors.
Buyers should note a single bathroom serves three bedrooms and the rear garden/communal areas require routine upkeep. There is an annual service charge (approx. £600) and communal garden maintenance costs of about £50 per month. The EPC is rated D and the local schooling includes a mix of Ofsted outcomes, so families may wish to check individual school suitability.
Overall this property suits buyers seeking spacious, well-presented accommodation with scope to add value via loft conversion. It benefits from low local crime, excellent mobile reception, fast broadband and an affluent, mostly rented neighbourhood edge close to Exmouth town amenities.
3 bedroom end of terrace house for sale in Drakes Gardens, Exmouth, EX8 — £395,000 • 3 bed • 1 bath • 947 ft²
3 bedroom end of terrace house for sale in Cyprus Gardens, Exmouth, EX8 2DP, EX8 — £500,000 • 3 bed • 2 bath • 1287 ft²
3 bedroom semi-detached house for sale in Sylvan Close, Exmouth, Devon, EX8 — £300,000 • 3 bed • 1 bath • 885 ft²
3 bedroom detached house for sale in Masey Road, Exmouth, EX8 4AR, EX8 — £375,000 • 3 bed • 1 bath • 1472 ft²
3 bedroom semi-detached house for sale in Elwyn Road, Exmouth, Devon, EX8 — £575,000 • 3 bed • 2 bath • 1633 ft²
3 bedroom semi-detached house for sale in Green Close, Exmouth, Devon, EX8 — £325,000 • 3 bed • 1 bath • 738 ft²


































































































































