**Standout Features:**
- Exceptional Victorian brick construction with arched windows and ornate detailing
- Recently renovated with a blend of period charm and modern styling
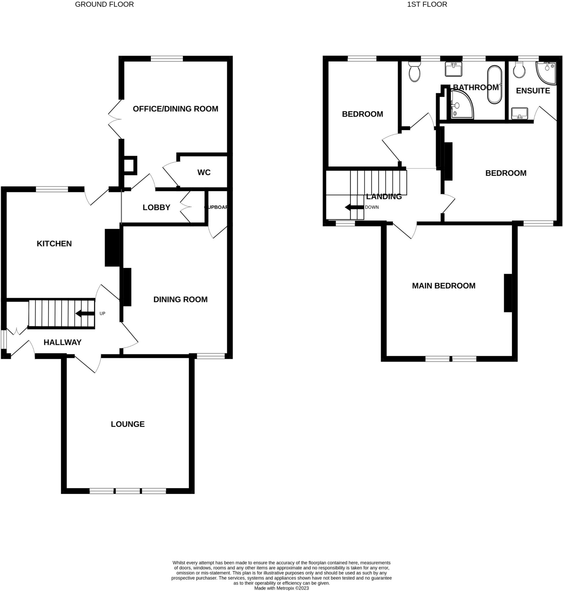
- Three spacious bedrooms, including a master bedroom with en-suite
- Generous enclosed gardens, perfect for outdoor activities
- Off-road parking available
- Convenient access to Riverside walks and a variety of local amenities
This beautifully presented three-bedroom detached home on Stapenhill Road offers an elegant mix of historical charm and modern living, making it an exceptional choice for families, first-time buyers, or investors looking for a comfortable retreat in a well-established area. The property features high ceilings and natural light-filled rooms, including two reception areas that are perfect for entertaining. The stylish modern kitchen boasts dark cabinetry and contemporary touches, while the well-appointed bathrooms ensure comfort and convenience.
Outside, the generous enclosed garden invites you to enjoy outdoor living, while off-road parking adds to the ease of accessibility. Located in a low-crime, affluent suburb, this property is just a short walk from essential amenities such as pubs, bus stops, and leisure activities, with excellent primary and secondary schools nearby.
Though it has a current EPC rating of E, this newly renovated home is ready for you to move in and make it your own. Don't miss the opportunity to secure this unique property that embodies both comfort and potential—schedule a viewing today!
3 bedroom detached house for sale in 35A, Stapenhill Road, Burton Upon Trent, Staffords, DE15 — £325,000 • 3 bed • 2 bath • 1284 ft²
3 bedroom detached house for sale in Main Street, Stapenhill, DE15 — £350,000 • 3 bed • 1 bath • 1023 ft²
5 bedroom semi-detached house for sale in Stapenhill Road, Burton-on-Trent, DE15 — £575,000 • 5 bed • 2 bath • 2521 ft²
6 bedroom semi-detached house for sale in Stapenhill Road, Burton Upon Trent, DE15 — £425,000 • 6 bed • 2 bath • 2857 ft²
4 bedroom detached house for sale in Tutbury Drive, Stapenhill, Burton-on-Trent, DE15 — £375,000 • 4 bed • 2 bath • 1528 ft²
3 bedroom detached house for sale in Spring Terrace Road, Stapenhill, Burton-on-Trent, DE15 — £310,000 • 3 bed • 1 bath • 1142 ft²










































































































































































































































