Four bedrooms, two en‑suites and private landscaped rear garden close to commuter links.
Detached Cala 'Dunbar' villa with four bedrooms and two en-suites
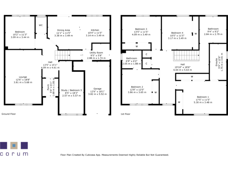
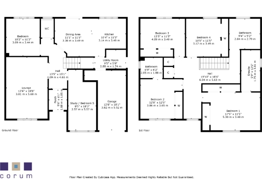
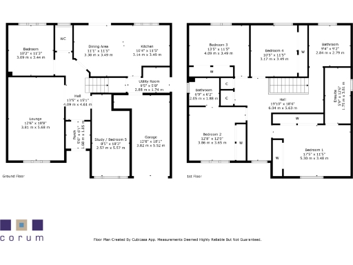
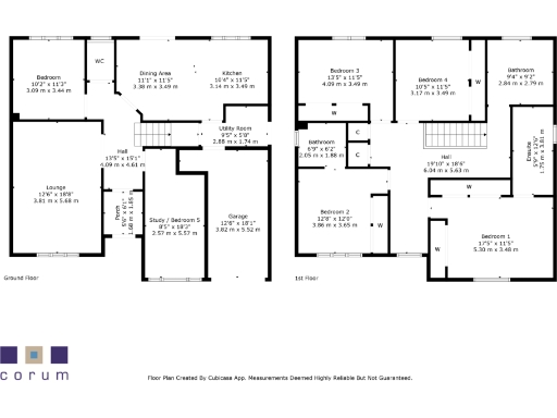
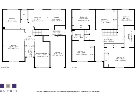
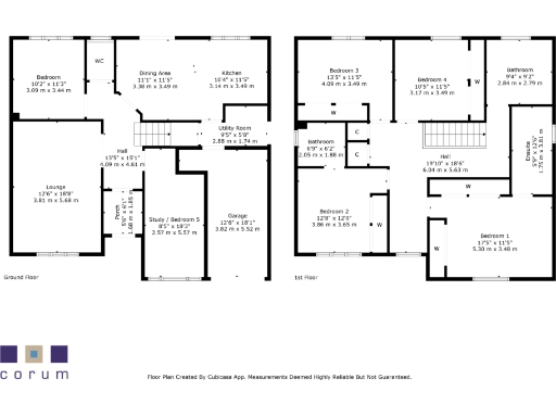
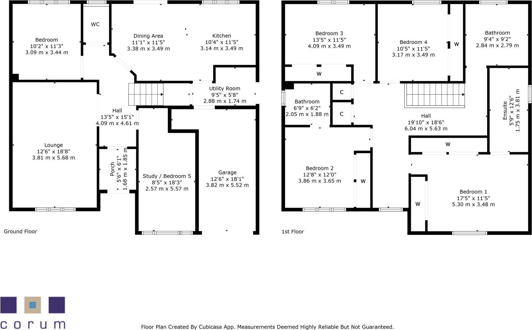
This detached Cala ‘Dunbar’ villa sits on a generous plot in Jackton, set within level, landscaped gardens with privacy to the rear. The house offers bright, flexible living over two floors: formal lounge, family room, a modern dining kitchen with French doors, and a useful study that could serve as a fifth bedroom. Practical details include a utility with integral access to the single garage, gas central heating with Nest control, double glazing and an EV charging point on the driveway.
Upstairs provides a large principal bedroom with contemporary en-suite, a second double bedroom with en-suite, two additional double bedrooms with fitted storage, and a family bathroom. Recent updates include new double-slatted rear fencing and a newly updated alarm system. Externally the rear garden is child-friendly and low-maintenance with decking, lawn and an outdoor entertainment area; the garage has power and light and the driveway accommodates multiple vehicles.
The location blends semi-rural calm with practical commute links: nearby motorway access to Glasgow, local schools, countryside walking and leisure amenities. This house suits buyers seeking generous family accommodation and easy outdoor access, while benefitting from modern fittings and energy-friendly features.
Notable drawbacks: part of the garage has been converted, reducing full garage storage; council tax is described as quite expensive; the wider area is flagged as deprived, which may affect resale or rental perceptions. Viewings should consider room proportions and any personal updating preferences despite the generally modern décor.
5 bedroom detached house for sale in 31 Ocein Drive, Jackton, G75 — £420,000 • 5 bed • 4 bath • 2153 ft²
5 bedroom detached house for sale in 8 Suntroy Lane, Jackton, G75 — £499,000 • 5 bed • 4 bath • 2927 ft²
5 bedroom detached house for sale in 51 Heathcliff Drive, Jackton, G75 — £540,000 • 5 bed • 4 bath • 1960 ft²
4 bedroom detached house for sale in 14 Attlee Road, Jackton, G74 — £339,000 • 4 bed • 3 bath • 1582 ft²
5 bedroom detached house for sale in Walpole Lane, East Kilbride, Glasgow, G74 — £425,000 • 5 bed • 4 bath • 1872 ft²
5 bedroom detached house for sale in 16 Ellis Drive, Jackton, East Kilbride, G75 — £450,000 • 5 bed • 4 bath • 2045 ft²














































































































































































































































































































































































