Established B&B potential close to town and rail for investor or large household.
Eight bedrooms and six en-suites plus family bathroom
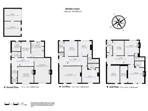
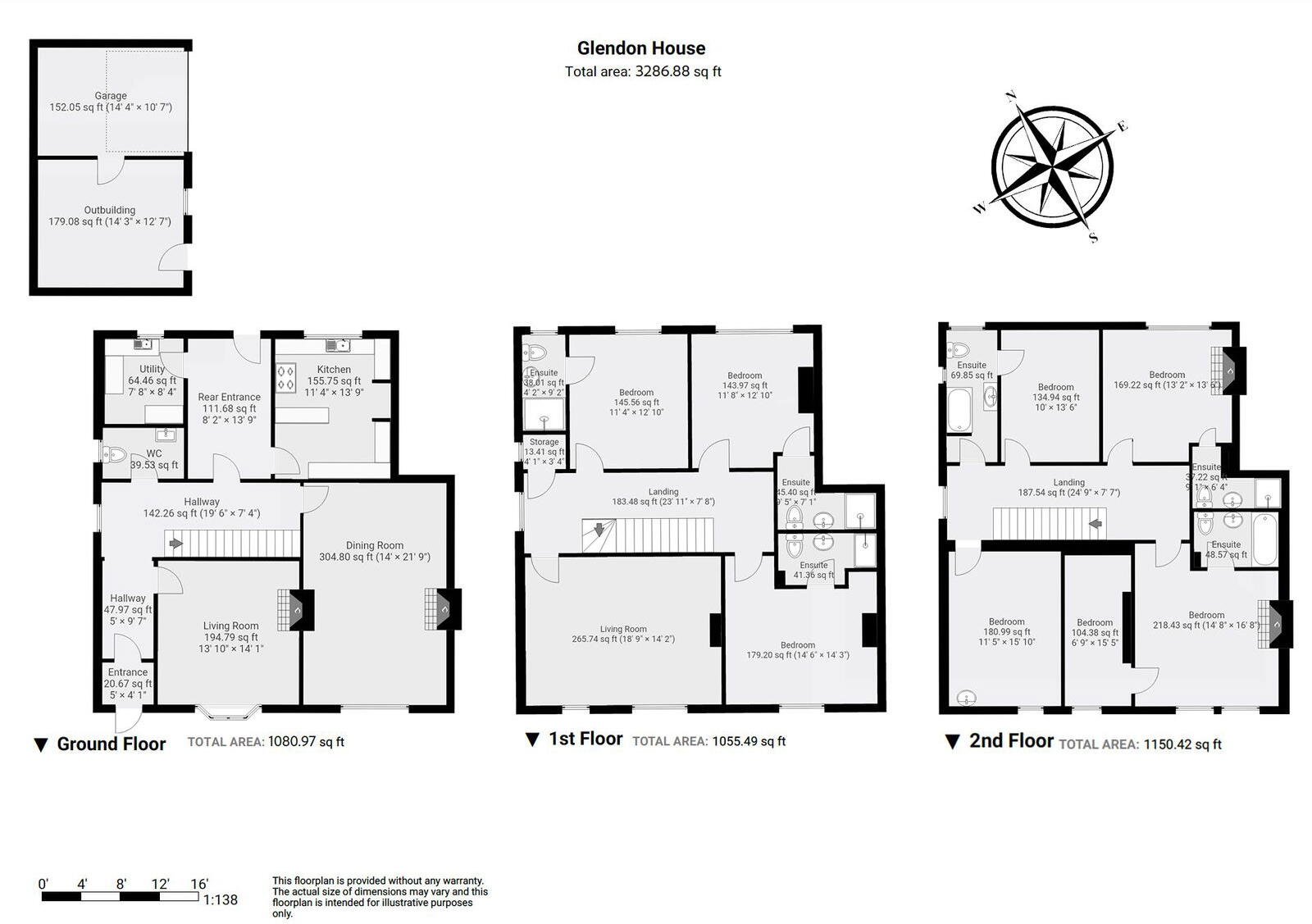
An imposing Grade II listed Victorian villa (c.1857) offering substantial accommodation across three floors. With eight bedrooms and six en-suites plus a family bathroom, the house has been run successfully as a bed & breakfast and suits buyers seeking an established small hospitality business or a large period family home. Many original features remain intact — high ceilings, sliding sash windows, decorative cornices, marble surrounds and parquet/block flooring — giving immediate character and guest appeal.
Practical strengths include generous off-street parking for c.7 cars with a pay-as-you-go EV charger, a stone-built outhouse/garage, storage cellars and useful utility space housing twin gas boilers. The property sits on a large plot with a well-stocked front garden and a private rear courtyard, and is within level walking distance of Matlock town centre, park and the train station — convenient for visitors and residents alike.
Important practical considerations: the Grade II listing will restrict alterations and can complicate repair work and consent for modernisation. The property sits in a medium flood-risk zone and falls into an expensive council tax band (Band F). The house is sizeable and period fabric can require ongoing maintenance; any buyer should allow budget for listed-building-appropriate upkeep and survey checks. Services are connected and broadband/mobile coverage is strong.
For investors the established B&B trading history and central Matlock location present clear income potential; for an owner-occupier the house delivers flexible bedrooms for guests, family or home-working. In all cases expect listed-status constraints and plan for maintenance and flood-mitigation where required.
6 bedroom town house for sale in Matlock. C/O Sally Botham Estates, Bank Road., DE4 — £750,000 • 6 bed • 5 bath • 1932 ft²
5 bedroom semi-detached house for sale in Jackson Road, Matlock, DE4 — £595,000 • 5 bed • 4 bath • 3321 ft²
3 bedroom town house for sale in Matlock Green, Matlock, DE4 — £340,000 • 3 bed • 3 bath • 1383 ft²
5 bedroom semi-detached house for sale in St. Joseph Street, Matlock, DE4 3NG, DE4 — £400,000 • 5 bed • 2 bath • 1927 ft²
6 bedroom town house for sale in New Street, Matlock. DE4 3FH, DE4 — £550,000 • 6 bed • 2 bath • 2297 ft²
4 bedroom terraced house for sale in Matlock Green, Matlock, Derbyshire, DE4 — £280,000 • 4 bed • 1 bath • 1562 ft²


























































































































































































































































