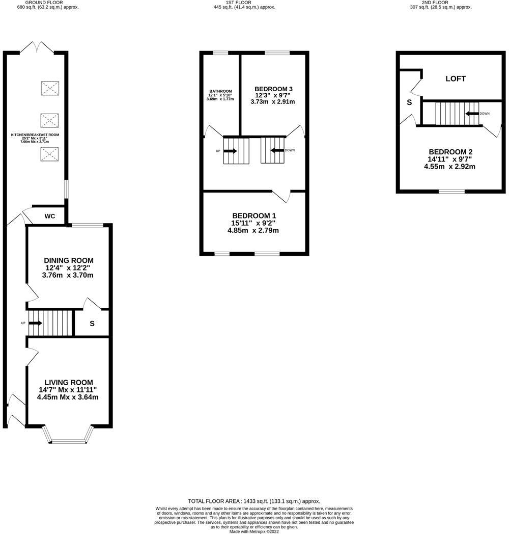
Spacious three-bedroom town home with bright vaulted kitchen and low-maintenance garden.
• Bay-fronted Victorian terrace with high ceilings and original features
• Large open-plan kitchen/breakfast room with skylights and French doors
• Three double bedrooms across three floors; loft storage access
• Single four-piece bathroom; one WC downstairs
• Small rear garden, low maintenance with garden shed
• Solid brick walls assumed uninsulated; EPC rated D
• Located in a higher-crime, relatively deprived area
• Freehold, fast broadband and excellent mobile signal
Set on a tree-lined road in central Kettering, this bay-fronted Victorian townhouse blends period charm with contemporary living over three floors. High ceilings, original features and a bright, vaulted kitchen/breakfast room create generous living spaces ideal for family life or those seeking classic character with modern updates.
The ground floor offers two reception rooms, a spacious fitted kitchen with skylights and French doors to a low-maintenance rear garden. Upstairs are two double bedrooms and a modern four-piece bathroom; a third double occupies the top floor with loft storage access. The property is freehold and suits buyers wanting a roomy home close to local amenities and schools.
Practical considerations: the house sits in an area with higher crime and relative deprivation, and the solid brick walls are assumed uninsulated, contributing to an EPC D. The plot is modest and the property has one main bathroom, which may influence larger families or those seeking outdoor space. Positives include fast broadband, excellent mobile signal and nearby good-rated schools.
This is a well-presented period home with scope to improve energy performance and personalise internal finishes. It will suit buyers prioritising character, space and convenient town living, and investors wanting a centrally located rental opportunity with straightforward upkeep outside and upgrade potential inside.
3 bedroom terraced house for sale in NN15 Argyll Street, Kettering, NN15 — £190,000 • 3 bed • 1 bath • 740 ft²
3 bedroom terraced house for sale in Mill Road, Kettering, NN16 — £220,000 • 3 bed • 1 bath • 838 ft²
3 bedroom terraced house for sale in Stamford Road, Kettering, NN16 — £200,000 • 3 bed • 1 bath • 1375 ft²
3 bedroom terraced house for sale in Hawthorn Road, Kettering, Northamptonshire, NN15 — £325,000 • 3 bed • 1 bath • 1653 ft²
4 bedroom semi-detached house for sale in NN15 Broadway, Kettering, NN15 — £350,000 • 4 bed • 2 bath • 1926 ft²
2 bedroom terraced house for sale in Roundhill Road, Kettering, NN15 — £210,000 • 2 bed • 1 bath • 969 ft²






































































































