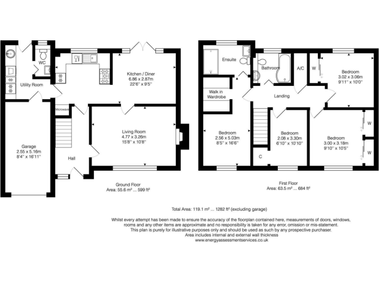
**Standout Features:**
- 4 spacious bedrooms, including a master suite with dressing room and ensuite
- Open-plan kitchen diner with patio doors to a private garden
- Cozy living room with a log burner
- Enclosed, mature garden with additional strip for gardening
- Garage with driveway parking for multiple vehicles
- Sought-after location on Southway Park
**Potential Concerns:**
- Average overall size; may be smaller for larger families
- Older construction (1976-1982) may require updates in some areas
Discover this beautifully presented detached family home in the desirable Southway Park area of Bradford-On-Avon. With its modern open-plan kitchen diner, generously sized living spaces—including a lengthy living room featuring a log burner—this property is perfect for family fun and relaxation. The master suite comes complete with a walk-in wardrobe and ensuite, complemented by three additional bedrooms that provide ample storage.
Step outside to enjoy a stunning, private garden, with sunny, mature landscaping, perfect for outdoor entertaining, gardening, or simply unwinding in nature. A side strip of garden offers additional space for vegetable plots or cherished hobbies. The property’s garage and driveway conveniently accommodate multiple vehicles.
Situated in a peaceful neighborhood, this home ensures easy access to local amenities such as shops, schools, and the picturesque canal towpath. With low crime rates and an inviting community, it’s ideal for families or those looking to invest in a thriving market town. Don’t miss your chance to create lifelong memories in this charming property—schedule a viewing today!
4 bedroom detached house for sale in Piplar Ground, Bradford-On-Avon, BA15 — £575,000 • 4 bed • 1 bath • 1202 ft²
4 bedroom detached house for sale in Bradford on Avon, BA15 — £565,000 • 4 bed • 2 bath • 1128 ft²
3 bedroom detached house for sale in Bradford on Avon, BA15 — £565,000 • 3 bed • 2 bath • 1416 ft²
4 bedroom detached house for sale in Bradford on Avon, BA15 — £600,000 • 4 bed • 2 bath • 1286 ft²
4 bedroom detached house for sale in Bradford on Avon, BA15 — £575,000 • 4 bed • 2 bath • 1993 ft²
3 bedroom detached house for sale in Huntingdon Rise, Bradford on Avon, BA15 — £525,000 • 3 bed • 1 bath • 1223 ft²


























































































