Central Greenwich family house with garden and parking near market and schools.
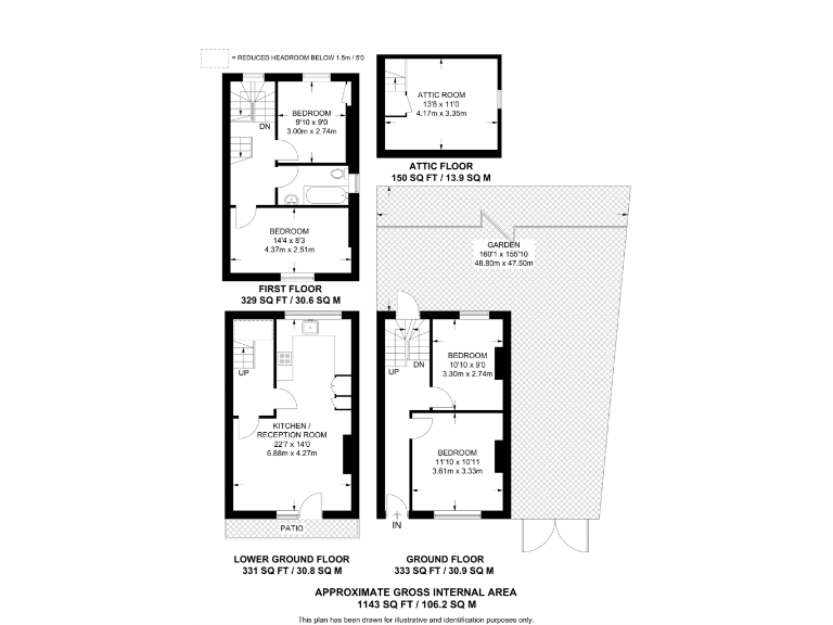
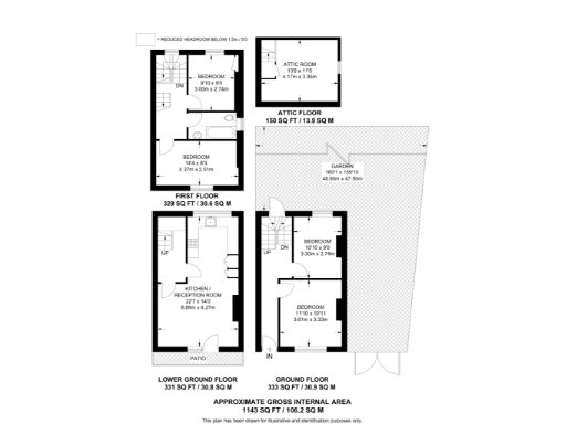
4 double bedrooms plus attic room across four floors
Large reception room and open-plan modern kitchen for family living
Private garden and rare off-street parking in central Greenwich
Freehold Victorian property with high ceilings and character features
Single bathroom only — may require additional facilities for families
Solid brick walls with assumed no insulation; energy upgrades likely
Double glazing present but installation date unknown
Area noted for high crime; buyers should consider local safety measures
This four-bedroom end-of-terrace Victorian house is arranged over four floors and offers flexible family living in a central Greenwich location. High ceilings, period brick exterior and an attic room give character and scope for imaginative layouts. The open-plan modern kitchen and large reception room suit everyday family life and entertaining.
Outside, a private garden and off-street parking are rare central-London advantages and add practical value. The property is freehold and sits within walking distance of Greenwich Market, shops, bars, restaurants and multiple good primary and secondary schools, making it convenient for family life and city commuting.
Buyers should note the house is relatively small at 1,143 sq ft and currently provides a single bathroom, which may be limiting for a four-bedroom household. The building is solid-brick Victorian with assumed lack of wall insulation and double glazing of unknown installation date, so some energy-efficiency or upgrade work may be needed. Crime levels in the immediate area are reported as high, which some buyers may want to consider.
Overall this home will suit buyers seeking period character and central convenience with room to personalise. It offers immediate living comfort with scope for targeted improvements to increase comfort and long-term value.
4 bedroom terraced house for sale in Woodlands Park Road, Greenwich, SE10 — £1,100,000 • 4 bed • 2 bath • 1503 ft²
3 bedroom terraced house for sale in Prior Street, Greenwich, London, SE10 — £1,200,000 • 3 bed • 1 bath • 1591 ft²
5 bedroom end of terrace house for sale in Georgette Place, Greenwich, SE10 — £1,900,000 • 5 bed • 3 bath • 2204 ft²
3 bedroom semi-detached house for sale in Guildford Grove Greenwich SE10 — £1,290,000 • 3 bed • 2 bath • 1431 ft²
4 bedroom terraced house for sale in Maidenstone Hill, Greenwich, SE10 — £1,150,000 • 4 bed • 3 bath • 1333 ft²
4 bedroom terraced house for sale in Thalia Close Greenwich SE10 — £1,000,000 • 4 bed • 2 bath • 1390 ft²


































































































































































































































































































































































