**Property Highlights:**
- Modern 3-bedroom semi-detached house
- Located in a quiet cul-de-sac
- En-suite bathroom in the master bedroom
- Generous and well-maintained garden
- Double driveway for off-street parking
- Built in 2018, offering contemporary design
- Close access to local amenities and schools
- Council Tax Band: B; Freehold tenure
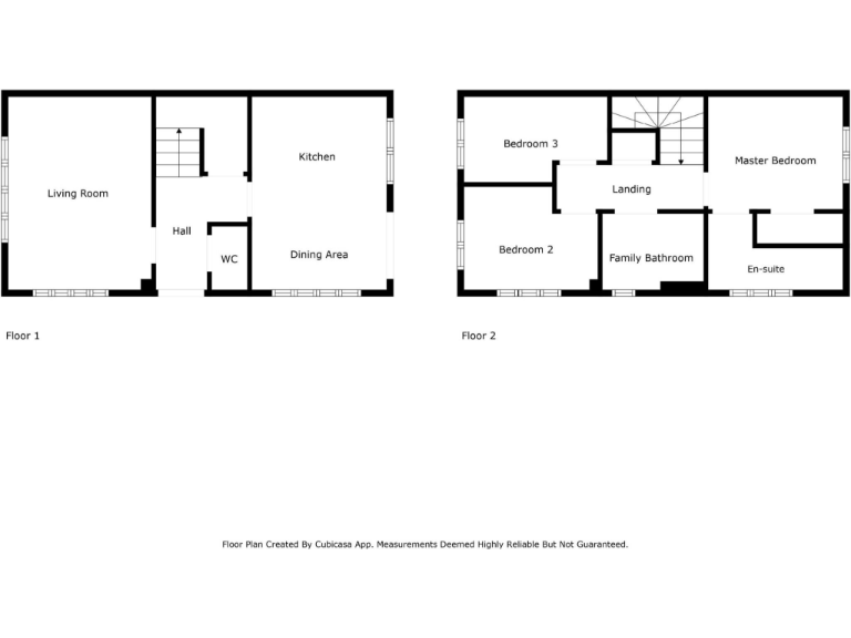
Step into this charming 3-bedroom semi-detached house located on the peaceful Orchardfield Close in Crewe. Built in 2018, this modern home features a welcoming layout with standard-sized rooms that feel spacious yet cozy. The master suite includes a private en-suite bathroom, ensuring a comfortable retreat, while two additional bedrooms are perfect for family or guests.
The highlights continue outdoors, where a generous garden provides an excellent space for relaxation or gatherings, complemented by a double driveway that allows convenient off-street parking. Enjoy the security and low crime rate of this friendly neighbourhood, coupled with easy access to essential amenities, including reputable schools, parks, and local shops just a short walk or bike ride away.
This property represents a fantastic opportunity for families seeking a serene yet well-connected lifestyle. Don’t miss your chance to view this delightful home before it's off the market – schedule your visit today!
3 bedroom detached house for sale in Birchmuir Close, Crewe, CW1 — £220,000 • 3 bed • 1 bath • 819 ft²
3 bedroom semi-detached house for sale in Farrier Court, Crewe, Cheshire, CW1 — £240,000 • 3 bed • 2 bath • 863 ft²
3 bedroom semi-detached house for sale in Green Field Way, Crewe, Cheshire, CW1 — £250,000 • 3 bed • 3 bath • 1192 ft²
3 bedroom semi-detached house for sale in Conway Close, Crewe, CW1 — £195,000 • 3 bed • 2 bath • 653 ft²
3 bedroom semi-detached house for sale in Philip Taylor Drive, Crewe, CW1 — £240,000 • 3 bed • 3 bath • 894 ft²
3 bedroom semi-detached house for sale in Fawcett Place, Crewe, CW1 — £240,000 • 3 bed • 2 bath • 975 ft²


































































































