**Standout Features:**
- Spacious 2 double-bedroom ground floor flat
- Private gardens (front and south-facing rear) with parking potential
- Conservatory and garage
- Bright and modern kitchen with shaker-style units
- Long lease of 165 years; chain-free sale
- Nestled in a desirable, affluent neighborhood with a low crime rate
- Close proximity to outstanding schools and local amenities
- Fast broadband and excellent mobile signal
**Downsides:**
- Maintenance required for the property
- Leasehold status may necessitate consent for alterations
---
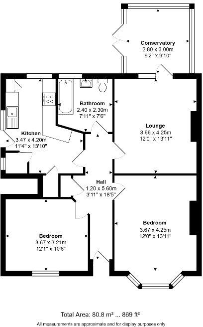
Nestled in the sought-after residential area of Moordown, this spacious 2-bedroom ground floor flat offers everything a first-time buyer or small family could desire. Priced between £240,000 to £250,000, this well-presented home boasts a generous layout featuring a welcoming entrance hall, a bright conservatory that overlooks your private south-facing garden, and a modern kitchen equipped with gas stove and stylish wood countertops.
Enjoy the benefits of a private front garden with excellent potential for parking, alongside a garage—perfect for added convenience in city living. With a lengthy 165-year lease and no forward chain, this property promises a smooth transition. Located in an affluently classified area, it is close to a variety of local shops, cafes, and parks, along with outstanding educational facilities nearby, making it an ideal choice for families.
Seize this opportunity to create your perfect home in a prime location. Be quick—properties like this don't stay on the market long!
2 bedroom apartment for sale in Cowper Road, Moordown, Bournemouth, BH9 — £230,000 • 2 bed • 1 bath • 594 ft²
2 bedroom apartment for sale in Wimborne Road, Bournemouth, Dorset, BH9 — £175,000 • 2 bed • 1 bath • 495 ft²
2 bedroom flat for sale in The Avenue, Bournemouth, BH9 2UP, BH9 — £235,000 • 2 bed • 1 bath • 842 ft²
2 bedroom flat for sale in Vicarage Road, Bournemouth, Dorset, BH9 — £220,000 • 2 bed • 2 bath • 432 ft²
2 bedroom flat for sale in GFF Vicarage Road, Bournemouth, Dorset, BH9 — £269,000 • 2 bed • 1 bath • 990 ft²
2 bedroom ground floor flat for sale in GFF Naseby Road, Bournemouth, Dorset, BH9 — £250,000 • 2 bed • 1 bath • 732 ft²














































