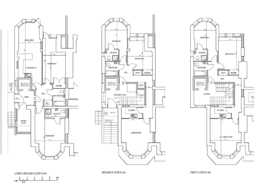
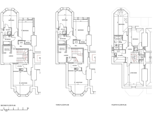
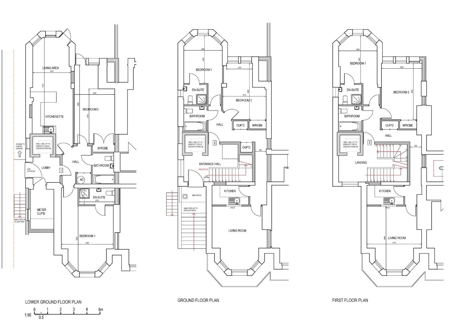
**Property Highlights:**
- 12-bedroom detached house with 6 fully self-contained, recently refurbished flats.
- Impressive rental income potential of £91,000+ per annum.
- Modern amenities including balconies with sea views, lift access, and off-street parking.
- Located in the desirable Lower Meads area, close to Eastbourne's seafront and local attractions.
- Freehold title with planning approval for potential future developments.
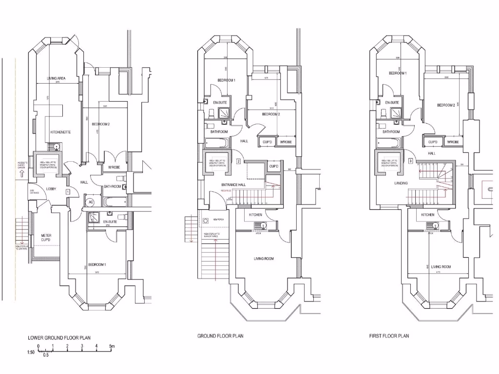
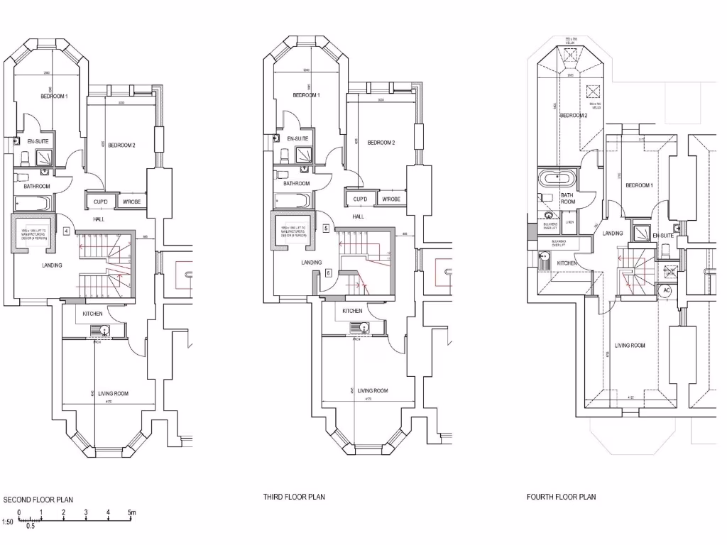
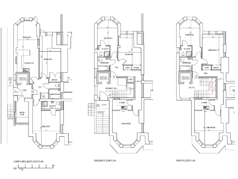
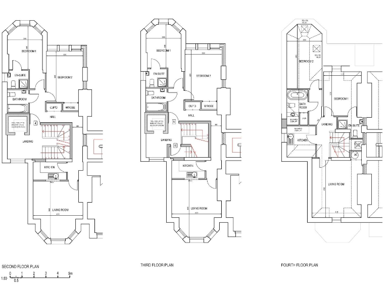
Discover a unique investment opportunity in this stunning block of six two-bedroom flats, located in the sought-after Lower Meads area of Eastbourne. Spanning 4,348 sq ft, this meticulously refurbished property has been designed with high-quality specifications and modern features. Each flat ensures privacy and comfort, offering open-plan living areas and lovely sea-view balconies, while one flat includes a private garden.
Ideal for both buy-to-let or holiday rental portfolios, the property is fully tenanted, generating a robust income of over £91,000 per annum. With five off-street parking spaces, comprehensive warranties from careful upgrades, and proximity to vibrant local amenities, this is a prime asset in a location experiencing high demand and appreciation.
Whether you are a seasoned investor or looking for a solid first venture into real estate, this delightful multi-flat opportunity is not to be missed. Schedule a viewing today and envision the potential this remarkable property holds!
8 bedroom terraced house for sale in Marine Road, Eastbourne, BN22 — £450,000 • 8 bed • 5 bath • 2063 ft²
7 bedroom terraced house for sale in Cornfield Terrace, Eastbourne, BN21 4NS, BN21 — £750,000 • 7 bed • 7 bath
20 bedroom detached house for sale in Gorringe Road, Eastbourne, BN22 — £2,999,950 • 20 bed • 20 bath • 6867 ft²
Warehouse for sale in 113-115 Seaside Road, Eastbourne, BN21 3PH, BN21 — £350,000 • 1 bed • 1 bath • 5570 ft²
8 bedroom house of multiple occupation for sale in Cornfield Terrace, Eastbourne, East Sussex, BN21 — £500,000 • 8 bed • 2 bath • 2024 ft²
4 bedroom terraced house for sale in Ceylon Place, Eastbourne, BN22 — £400,000 • 4 bed • 3 bath • 506 ft²






















































