Chain-free three-bedroom home with large garden and rural views, ideal for refurbishment.
Chain-free detached 1950s house on a large plot
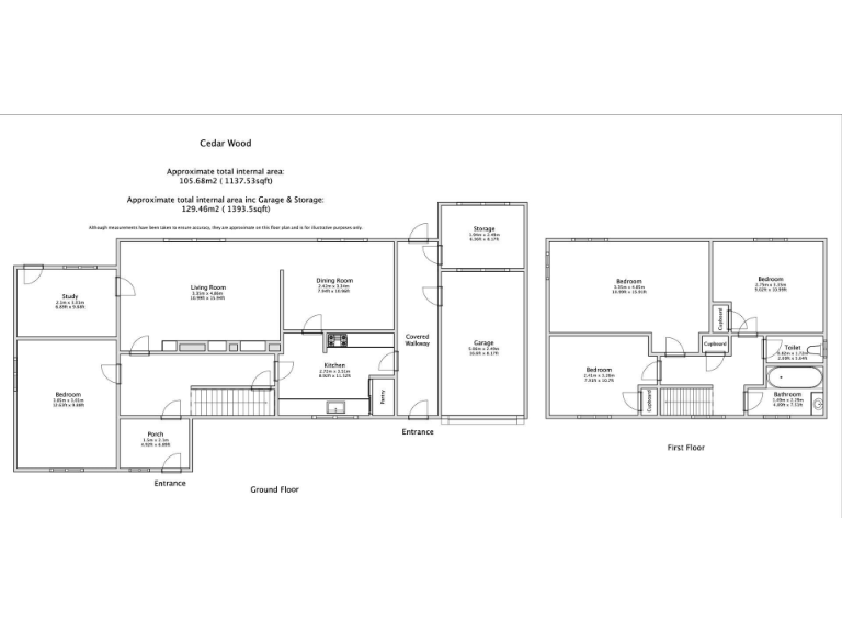
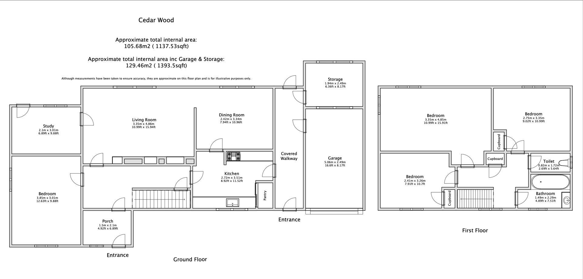
Set on a large plot in sought-after Chipstead village, this detached 1950s home offers generous family accommodation and wide views over adjoining fields. The layout includes three double bedrooms, three reception rooms, a study and a garage with workshop — plenty of space for growing families or those wanting home office space. The frontage provides driveway parking for up to three cars and a wraparound garden that captures rural outlooks and good natural light from large windows.
The house is offered chain-free and is a clear refurbishment project throughout. Original fixtures and dated decor remain; buyers should expect comprehensive updating including modernising the kitchen, bathrooms and internal finishes. Structural issues are not reported, but the property’s age and condition mean a practical renovation budget will be needed to bring heating, electrics and interiors up to current standards.
For families the location is a major draw: good local primary schools, easy access to Sevenoaks’ amenities and fast rail links to central London. Outdoor enthusiasts will appreciate the quiet village setting, low local crime and countryside views. The freehold tenure and substantial plot also present scope for extension or reconfiguration subject to planning.
In short, Cedarwood is a roomy, well-sited detached home with strong renovation potential and no onward chain. It will suit buyers seeking a project in an affluent, commuter-friendly village who want to create a comfortable, modern family home while retaining attractive rural aspects.
3 bedroom detached house for sale in Barnfield Road, Riverhead, TN13 — £900,000 • 3 bed • 2 bath • 1404 ft²
5 bedroom detached house for sale in Rookdean, Chipstead, Sevenoaks, TN13 2RT, TN13 — £1,650,000 • 5 bed • 4 bath • 3317 ft²
4 bedroom detached house for sale in Chipstead Park Close, Sevenoaks, Kent, TN13 — £875,000 • 4 bed • 2 bath • 2490 ft²
4 bedroom detached house for sale in Homedean Road, Chipstead, TN13 — £1,275,000 • 4 bed • 2 bath • 2651 ft²
5 bedroom detached house for sale in Moat Close, Chipstead, Sevenoaks, TN13 — £1,199,950 • 5 bed • 2 bath • 1841 ft²
4 bedroom detached house for sale in Lackford Road, Chipstead, Coulsdon, CR5 — £900,000 • 4 bed • 2 bath • 1529 ft²


























































































































