Chain-free renovation project with independent basement and recent external works.
Three bedrooms with two separate reception rooms
A substantial Victorian terrace in a quiet cul-de-sac just minutes from Plymouth city centre, offered chain-free with significant external repairs already done. Recent roof and bay canopy restoration and front elevation rendering reduce immediate structural risk, while the interior is a blank canvas for a full refurbishment.
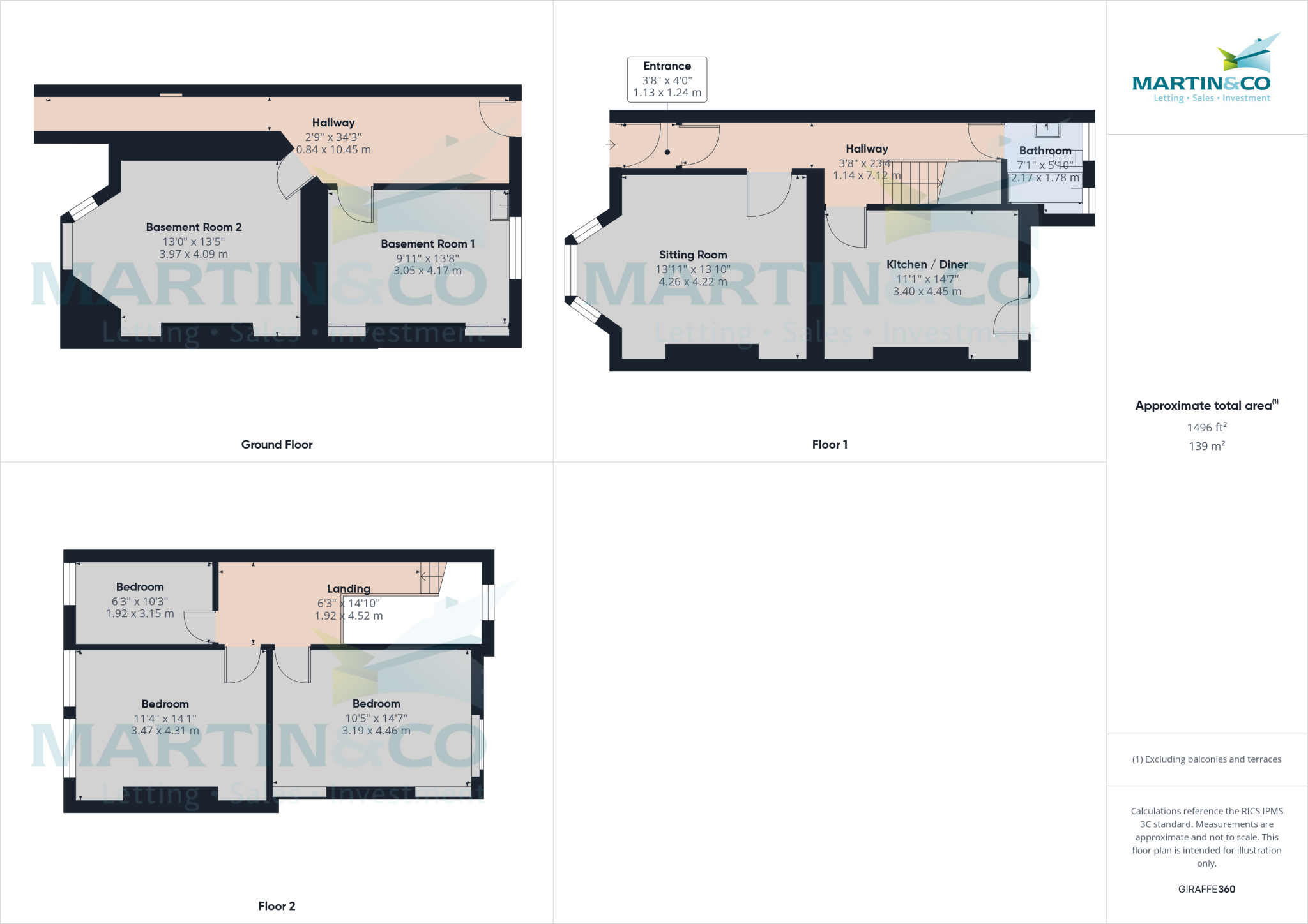
The house has three bedrooms, two separate reception rooms and a large basement with independent external access. The basement could be reinstated internally and converted to additional living or income-generating space subject to consents, increasing usable square footage from the current layout.
This is a clear renovation and investment opportunity for developers or buy-to-let purchasers who can manage a full internal overhaul. Important negatives: the property requires full internal renovation, has only one bathroom, EPC currently TBC, and sits in an area with high crime and very high deprivation indices. Buyers should budget for internal works, services upgrading and professional advice on basement conversion and safety measures.
4 bedroom terraced house for sale in Cecil Street, Plymouth, Devon, PL1 — £220,000 • 4 bed • 2 bath • 1695 ft²
4 bedroom terraced house for sale in Bayswater Road, Plymouth, PL1 — £225,000 • 4 bed • 1 bath • 1154 ft²
4 bedroom town house for sale in Crescent Avenue, Plymouth, PL1 — £325,000 • 4 bed • 1 bath • 1919 ft²
7 bedroom terraced house for sale in North Road East, Mutley, PL4 — £260,000 • 7 bed • 3 bath • 1915 ft²
3 bedroom terraced house for sale in Welbeck Avenue, Mutley, PL4 — £215,000 • 3 bed • 1 bath • 556 ft²
3 bedroom terraced house for sale in Edgar Terrace, Plymouth, Devon, PL4 — £150,000 • 3 bed • 1 bath • 1087 ft²


































































































