Move-in ready three-bedroom terrace with large open-plan kitchen and low-maintenance garden.
Three bedrooms with large open-plan kitchen/diner and lounge
Recently renovated throughout — ready to move into
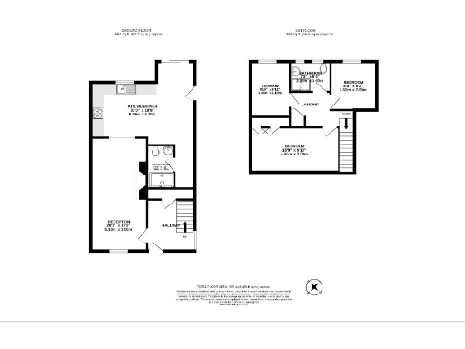
Two shower rooms plus first-floor bathroom for household flexibility
Freehold, chain-free sale for quicker completion
Small, terraced plot with low-maintenance outdoor areas
EPC rating D; cavity walls assumed uninsulated (improvement possible)
Very low flood risk and very low local crime
Wider area shows higher deprivation indicators — consider resale factors
Recently refurbished throughout, this mid-terraced three-bedroom home offers a roomy, open-plan kitchen/diner that runs the length of the rear and opens onto tiered, low-maintenance terraces. The generous lounge, separate entrance hall with understairs storage and practical cloak cupboard make day-to-day living straightforward for a family or couple seeking move-in readiness. Two ground-floor and first-floor shower facilities plus a first-floor bathroom add practical flexibility for busy mornings.
Practical benefits include mains gas central heating with a boiler and radiators, UPVC double glazing fitted post-2002, freehold tenure and no onward chain — all useful for a quicker transaction. Broadband speeds are reported as fast and mobile signal is excellent, which suits home working or streaming. Flood risk is very low and local crime is very low, contributing to a secure, calm setting on the town fringe.
Be clear about the compromises: the plot is small and garden space is terraced rather than expansive, so buyers seeking large lawns will be disappointed. The property’s walls are cavity by original construction with no confirmed added insulation (assumed), and the current EPC rating is D — further insulation or energy upgrades would improve efficiency. The wider area shows indicators of higher deprivation, which may influence local services and long‑term resale in comparison with more prosperous areas.
Overall this is a practical, recently renovated family home in Llanidloes offering contemporary living spaces and manageable outdoor areas. It will suit buyers wanting a well-presented property ready to occupy, but those prioritising large gardens, top energy ratings or a more affluent neighbourhood should weigh these factors.
3 bedroom terraced house for sale in Dolgwenith, Llanidloes, Powys, SY18 — £149,950 • 3 bed • 1 bath • 850 ft²
3 bedroom semi-detached house for sale in Garden Suburb, Llanidloes, Powys, SY18 — £237,500 • 3 bed • 1 bath • 1152 ft²
3 bedroom detached house for sale in Llangurig Road, Llanidloes, Powys, SY18 — £350,000 • 3 bed • 2 bath • 1323 ft²
2 bedroom terraced house for sale in Hafren Terrace, Llanidloes, Powys, SY18 — £169,950 • 2 bed • 1 bath • 716 ft²
3 bedroom terraced house for sale in Maesydre, Llanidloes, Powys, SY18 — £185,000 • 3 bed • 1 bath • 753 ft²
2 bedroom terraced house for sale in Picton Street, Llanidloes, Powys, SY18 — £150,000 • 2 bed • 1 bath • 538 ft²


















































































































































