**Standout Features:**
- Substantially extended semi-detached period cottage
- Newly constructed detached garage/annexe with an additional bedroom
- Spacious westerly landscaped garden
- Luxurious open-plan kitchen/dining room and separate utility
- Air source heat pump and underfloor heating
- Located near the breathtaking South Downs National Park
- Low crime rate and affluent community
**Potential Downsides:**
- Slow broadband speeds
- Lack of community heating
- Above-average council tax
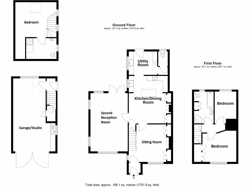
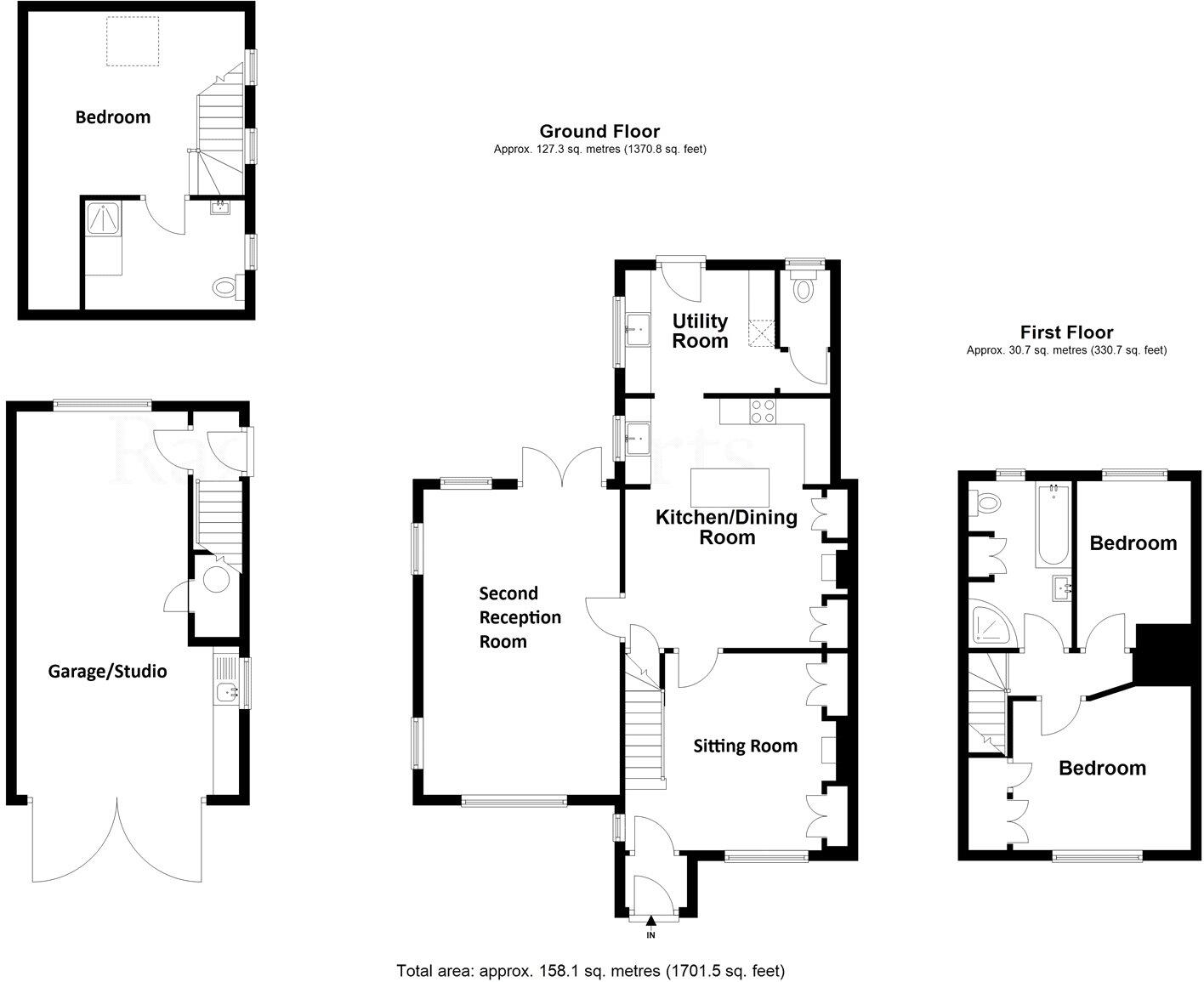
Discover the charm and elegance of this newly renovated semi-detached period cottage, beautifully extending over 1,700 square feet. Nestled at the edge of the picturesque South Downs National Park, this property not only offers three generous bedrooms but also includes a newly constructed garage and annexe, providing versatile living options that could serve as an independent suite for guests or a source of rental income. The open-plan kitchen dining area is ideal for family gatherings, while the extensive westerly garden ensures a serene outdoor space for relaxation and entertaining.
Set within the idyllic hamlet of Wilmington, this property boasts easy access to Alfriston's local amenities and the scenic Cuckmere valley, making it perfect for families and outdoor enthusiasts alike. The immediate area features fantastic educational options, with both state and independent schools receiving positive ratings. While slow broadband may be a concern for remote workers, the tranquil environment and low crime rate make this an inviting haven for anyone seeking comfort and security.
Don't miss your chance to own this delightful property with unique potential—schedule your visit today and envision your new life in this charming countryside home.
5 bedroom detached house for sale in Hayreed Lane, Wilmington, BN26 — £1,200,000 • 5 bed • 4 bath • 4031 ft²
3 bedroom detached house for sale in The Street, Wilmington, Polegate, East Sussex, BN26 — £595,000 • 3 bed • 1 bath • 1400 ft²
3 bedroom detached house for sale in North Street, Alfriston,, BN26 — £750,000 • 3 bed • 2 bath • 1178 ft²
3 bedroom semi-detached house for sale in Wish Hill, Eastbourne, BN20 — £575,000 • 3 bed • 1 bath • 1054 ft²
3 bedroom detached house for sale in Stone Quarry Road, Chelwood Gate, RH17 — £695,000 • 3 bed • 1 bath • 1305 ft²
4 bedroom semi-detached house for sale in Church Lane, Hellingly, BN27 — £575,000 • 4 bed • 2 bath • 1318 ft²










































































































