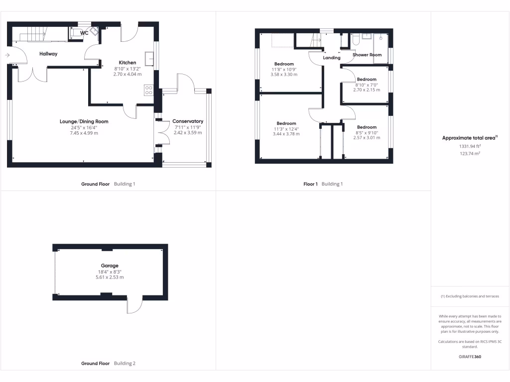
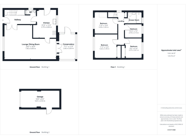
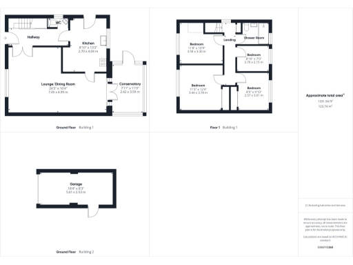
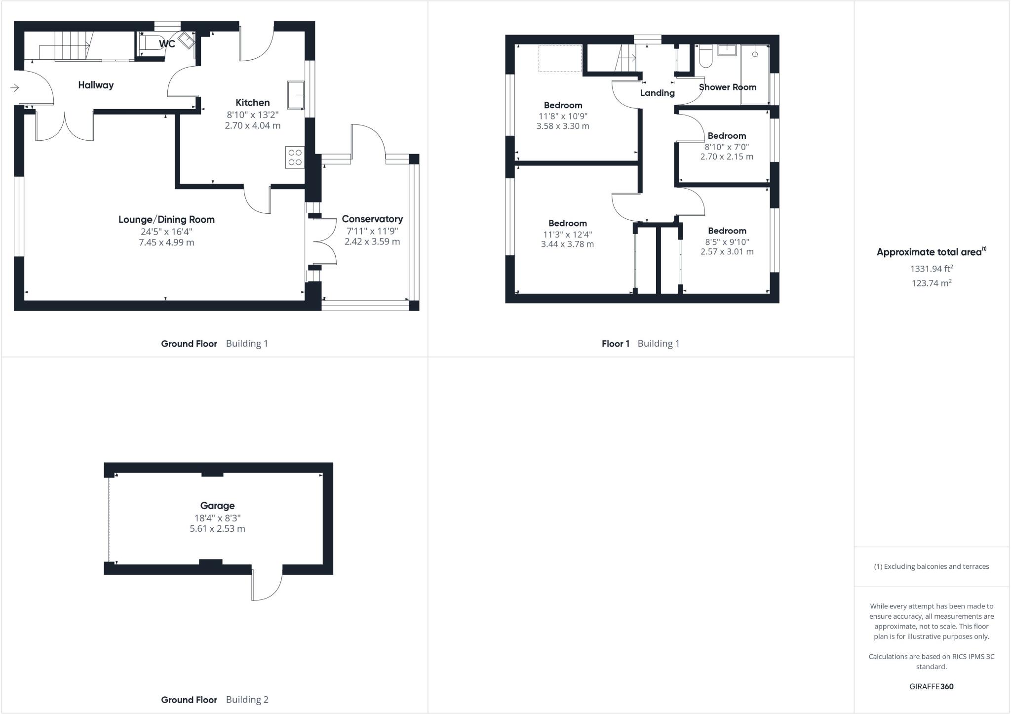
**Standout Features:**
- 4 spacious bedrooms and 1 modern shower room
- Bright Lounge/Dining Room and airy Conservatory
- Southerly aspect rear garden with well-stocked borders
- Detached garage with additional storage and utility options
- Quiet cul-de-sac in a highly regarded village
- Excellent local schools and amenities within walking distance
**Concerns:**
- Average mobile signal reception
- Double glazing dates before 2002, possibly requiring upgrades
Nestled in a tranquil cul-de-sac within the sought-after village of Bransgore, this welcoming four-bedroom detached family home combines spacious living with modern comforts. Light-filled accommodations include a spacious Lounge/Dining Room that flows effortlessly into a charming Conservatory, ideal for family gatherings or quiet contemplation. The well-appointed "Shaker" style Kitchen/Breakfast Room opens directly to the beautiful southerly garden, perfect for outdoor dining and family fun.
This property offers a fantastic opportunity for families due to its proximity to excellent primary and secondary schools, as well as local amenities such as shops, pubs, and medical services just a short walk away. The surrounding area boasts stunning natural landscapes like the New Forest National Park, adding to its appeal. Enjoy the added convenience of a brick-paved driveway and a garage, providing ample parking and storage. While the home is well-maintained, potential owners may consider upgrading the double glazing for enhanced efficiency.
With strong community ties in a low-crime area, this property presents an excellent investment for families seeking comfort, security, and the potential for future value appreciation. Explore your possibilities in this delightful home before it’s gone!
4 bedroom detached house for sale in Woodlands Close, Bransgore, Christchurch, Dorset, BH23 — £525,000 • 4 bed • 1 bath • 1013 ft²
4 bedroom detached house for sale in Stibbs Way, Bransgore, Christchurch, Dorset, BH23 — £575,000 • 4 bed • 2 bath • 1353 ft²
4 bedroom detached house for sale in Hill Close, Bransgore, Christchurch, Dorset, BH23 — £475,000 • 4 bed • 1 bath • 1270 ft²
4 bedroom detached house for sale in Brookside Road, Bransgore, Christchurch, Dorset, BH23 — £525,000 • 4 bed • 2 bath • 1190 ft²
4 bedroom terraced house for sale in St. Georges Drive, Bransgore, Christchurch, Dorset, BH23 — £500,000 • 4 bed • 2 bath • 1466 ft²
4 bedroom detached house for sale in Stibbs Way, Bransgore, Christchurch, Dorset, BH23 — £635,000 • 4 bed • 2 bath • 1363 ft²






























































