Spacious four-bedroom family home with huge open-plan living and a large southwest garden.
Extended 1930s detached family home with period features
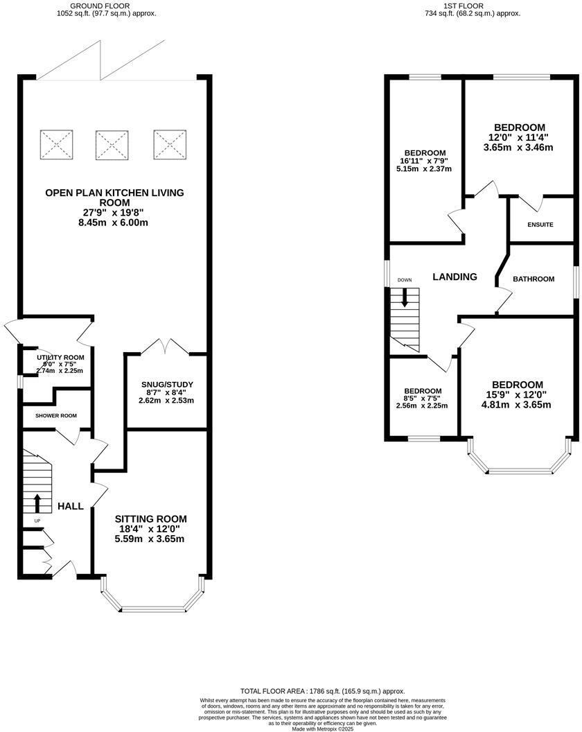
This extended 1930s detached house blends period charm with a large modern open-plan living space, ideal for family life. The standout c.8.45m kitchen/lounge/dining area with bifold doors and Velux windows provides a bright hub for everyday living and entertaining, while a separate sitting room with bay window and multi-fuel burner retains original character.
The property sits on a substantial south-west facing garden with paved seating directly off the kitchen — perfect for alfresco dining and safe play — and a gated front driveway offering parking for several cars. Practical ground-floor amenities include a utility room and a downstairs shower room, with an ensuite to the principal bedroom upstairs.
Practical considerations: the house has an EPC rating of D and is constructed with solid brick walls (no known cavity insulation), so buyers should budget for potential insulation or energy-improvement works. Double glazing is present but install dates are unknown. Council tax is moderate and there is no flood risk.
This home will suit families seeking space, off-street parking and a large sunny garden close to good local schools and amenities. It also offers scope for further improvement or personalization to boost energy efficiency and add value.
4 bedroom detached house for sale in Long Beach Road, Longwell Green, Bristol, BS30 — £500,000 • 4 bed • 1 bath • 1197 ft²
4 bedroom detached house for sale in Long Beach Road, Longwell Green, BS30 — £545,000 • 4 bed • 3 bath • 1061 ft²
4 bedroom detached house for sale in Bagworth Drive, Longwell Green, Bristol, BS30 — £520,000 • 4 bed • 2 bath • 1443 ft²
3 bedroom semi-detached house for sale in Watsons Road, Longwell Green, BRISTOL, BS30 — £450,000 • 3 bed • 1 bath • 926 ft²
4 bedroom detached house for sale in Bagworth Drive, Longwell Green, Bristol, BS30 — £525,000 • 4 bed • 3 bath • 1373 ft²
4 bedroom house for sale in Hillburn Road, St George, Bristol, BS5 — £500,000 • 4 bed • 2 bath • 1483 ft²














































































































































