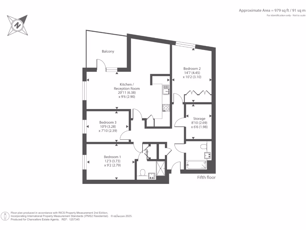
Three-bedroom flat with balcony, garage and excellent transport links—ideal for families..
- Three bedrooms and two bathrooms, including an en-suite
- Fifth-floor balcony with panoramic Mill Hill views
- Lift access and reserved garage parking space
- Open-plan kitchen/dining and separate reception room
- 239 years remaining on the lease (long leasehold)
- Heating via a community scheme — check running costs
- Council tax band above average
- Located next to major supermarkets and half a mile from Colindale station
Set on the fifth floor of a modern block, this three-bedroom flat offers practical family living with clear transport and shopping advantages. The reception room opens onto a private balcony with panoramic views towards Mill Hill, and the open kitchen/dining space suits everyday family life and entertaining. A reserved garage space and lift access add useful convenience for commuters and drivers.
The layout includes three bedrooms and two bathrooms (one en-suite), making the property well suited to a growing family or sharers. It sits adjacent to a retail and supermarket complex including Morrisons and Asda, and Colindale Underground station is within half a mile — strong local amenities and fast links to central London.
Buyers should note the property is leasehold with 239 years remaining and heated via a community scheme, which can affect service arrangements and costs. Council tax is above average for the area, and the wider locality is classified as more deprived; these are factual considerations for long-term running costs and local services. Overall, the flat combines contemporary living spaces, good transport access and parking, with clear points to review around communal services and local socio-economic context.
1 bedroom flat for sale in Eastern Point, Colindale, NW9 — £325,000 • 1 bed • 1 bath • 577 ft²
3 bedroom flat for sale in Colindale Ave, Colindale, London, NW9 — £485,000 • 3 bed • 2 bath • 949 ft²
2 bedroom flat for sale in Grahame Park Way, Colindale, London, NW9 — £430,000 • 2 bed • 2 bath • 971 ft²
2 bedroom flat for sale in Grahame Park Way, Colindale, London, NW9 — £450,000 • 2 bed • 2 bath • 821 ft²
2 bedroom flat for sale in Coxwell Boulevard, London, NW9 — £425,000 • 2 bed • 1 bath • 915 ft²
3 bedroom flat for sale in Felix Court, 11 Charcot Road, NW9 — £530,000 • 3 bed • 2 bath • 914 ft²






































































































