**Standout Features:**
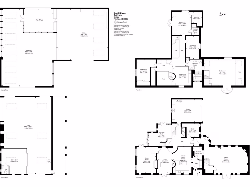
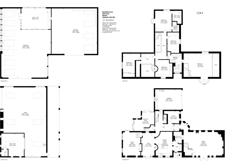
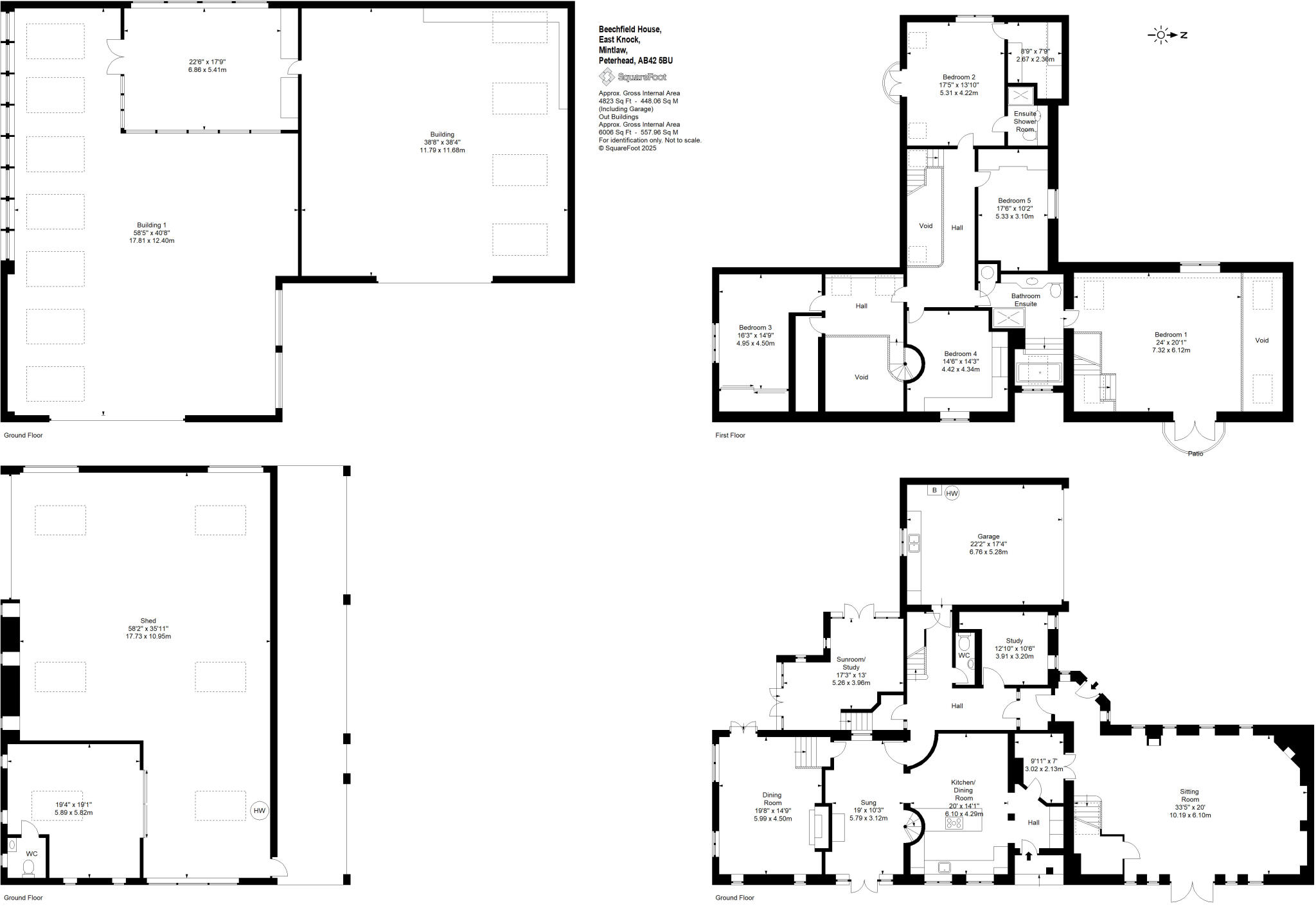
- Impressive 5-bedroom, 4-reception room home with bespoke design.
- Sits on approximately 14 acres, including paddocks, stables, and landscaped gardens.
- High level of privacy with a gated entrance and serene pond area.
- Versatile layout ideal for families, home businesses, or event use.
- Built in 2000 with unique interior features like underfloor heating and a Sonos music system.
- Excellent woodwork and modern design elements, including metal and glass décor.
- Energy-efficient with solar panels and a Tesla battery storage system.
**Concise Summary:**
Discover an extraordinary lifestyle at Beechfield House, a modern rural retreat boasting 5 bedrooms, 4 spacious reception rooms, and around 14 acres of expansive grounds. Nestled at the edge of Mintlaw, this welcoming residence is perfect for families or those seeking an idyllic outdoor lifestyle. Enjoy the luxury of a private pond, mature gardens, and versatile equestrian facilities, making it ideal for horse enthusiasts or potential home businesses. Noteworthy design features include underfloor heating, unique hand-crafted details, and open living spaces that encourage relaxation and entertainment.
With a superb location offering easy access to Aberdeen and its amenities, this property presents an exclusive opportunity in a peaceful rural setting. Be quick—properties like this are rare and tend to attract considerable interest. While the property does have high council tax and limited broadband options, the extensive space, privacy, and potential for renovation make it a valuable investment. Embrace the lifestyle you have always dreamt of—let Beechfield House be the backdrop for your next adventure!
4 bedroom detached house for sale in The Stables, Balhagan Equestrian, Bruntyards, Banff, AB45 — £585,000 • 4 bed • 2 bath • 2156 ft²
5 bedroom detached house for sale in Cross Lodge, Cross Of Jackston, Rothienorman, Inverurie, Aberdeenshire, AB51 — £725,000 • 5 bed • 3 bath • 4209 ft²
3 bedroom detached house for sale in Birken House, Craigston, Turriff, Aberdeenshire, AB53 — £850,000 • 3 bed • 3 bath • 3692 ft²
4 bedroom detached bungalow for sale in Bungalow, Turriff, AB53 — £435,000 • 4 bed • 2 bath • 1798 ft²
21 bedroom detached house for sale in Auquharney House, Hatton, Peterhead, Aberdeenshire, AB42 — £675,000 • 21 bed • 7 bath • 10118 ft²
4 bedroom detached house for sale in Seven Acres, Udny, Ellon, Aberdeenshire, AB41 — £675,000 • 4 bed • 3 bath • 2766 ft²






































































































































