Ready-for-development plot on Dundee outskirts with countryside outlook.
Planning consent approved for four houses (ref 23/00808/PPPL)
Approximately 0.8 acres freehold, sold as a single lot
Indicative plot sizes: 470, 680, 410, 445 sqm
Major services understood available nearby (water, drainage, electricity, gas, BT)
Very large plot with rural, panoramic farmland views
Excellent mobile signal and fast broadband recorded
Site will need groundworks and utility connection verification
Area flagged as deprived — consider market and funding implications
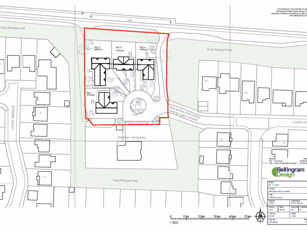
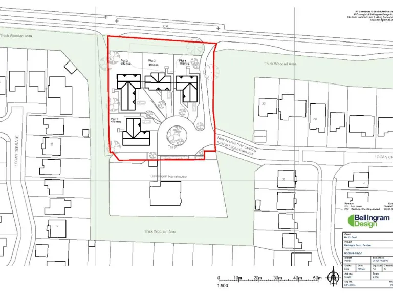
This 0.8-acre freehold development site at Baldragon Farm comes with planning consent to build four dwellinghouses (Dundee City Council ref: 23/00808/PPPL). The land offers wide, rural views across farmland and rolling countryside while sitting on the edge of a comfortable suburban area of Dundee. Major services are understood to be available close by at the road end of Logan Crescent (water, drainage, electricity, gas and BT).
Indicative individual plot sizes are provided (Plot 1: 470 sqm; Plot 2: 680 sqm; Plot 3: 410 sqm; Plot 4: 445 sqm), giving flexibility for a mix of house types or a phased build. Good mobile signal and fast broadband are recorded, and the location benefits from easy road links into Dundee plus local amenities and outdoor recreation nearby.
Key considerations: the site is sold as a whole and will require standard groundworks and connection arrangements on takeover. While planning consent is in place, purchasers should confirm service connections and any pre-commencement conditions with the council. The wider area is described as comfortable suburbia, but local statistics flag relative area deprivation — relevant for pricing, sales strategy, or affordable housing requirements. Council tax information is not provided.
Land for sale in Site of Former Baldovan House Site of Former Baldovan House, Strathmartine, Dundee, DD3 — POA • 1 bed • 1 bath
Land for sale in Residential Development Opportunity, Land At Forfar Road, Blairgowrie, Perthshire, PH13 — £1,200,000 • 1 bed • 1 bath
Land for sale in Panmurefield Road, Broughty Ferry, Dundee, DD5 3RA, DD5 — POA • 1 bed • 1 bath
Land for sale in Land At Balmuir, Strathmartine, Dundee, Angus, DD3 — £1,800,000 • 1 bed • 1 bath
Plot for sale in Craigie Hill, Drumoig , St Andrews, KY16 — £225,000 • 6 bed • 3 bath
Land for sale in Wellburn Home, Liff Road, Dundee, DD2 — POA • 1 bed • 1 bath


















































