**Standout Features:**
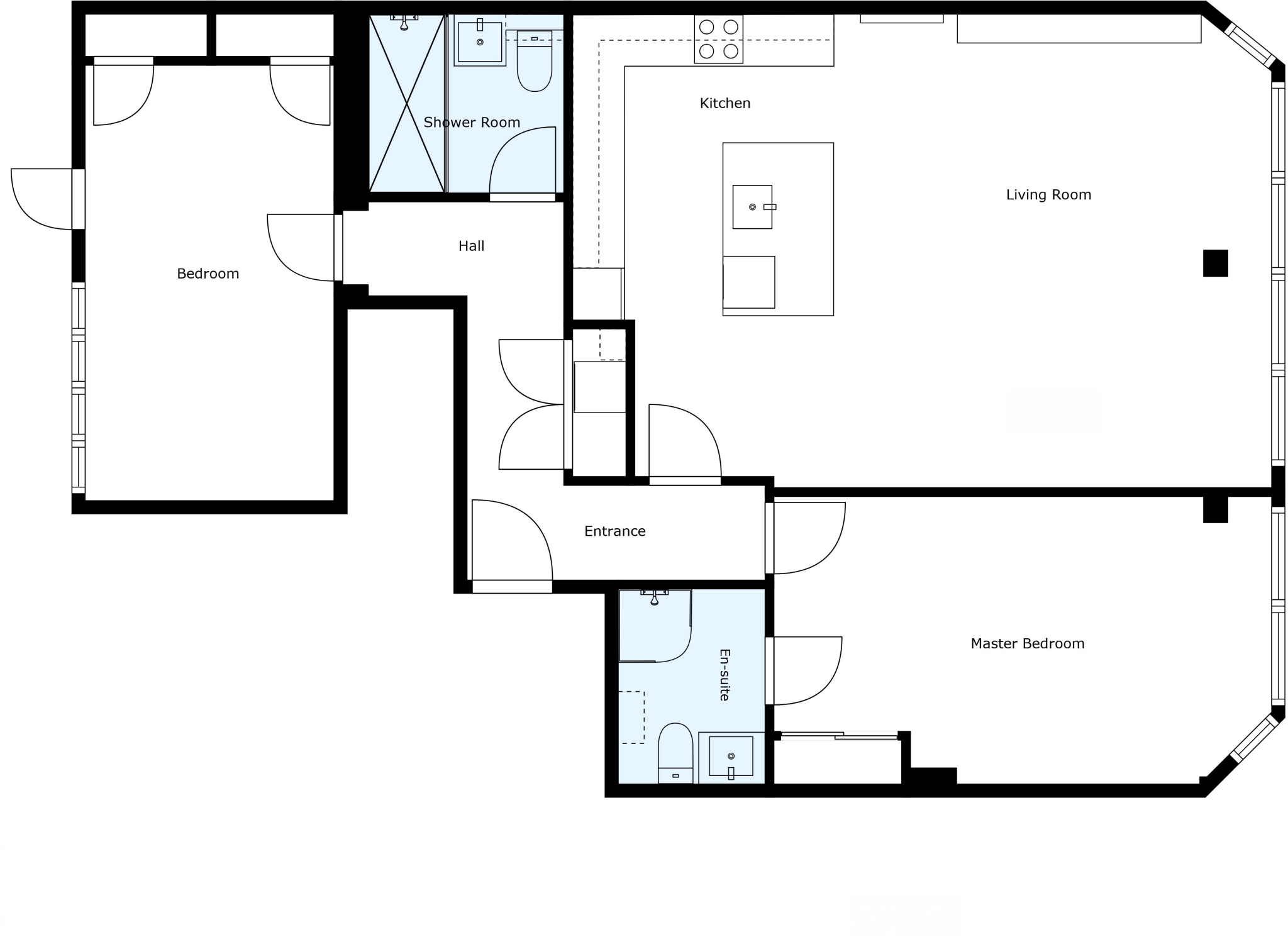
- Modern two-bedroom apartment with panoramic sea views.
- Open-plan lounge/kitchen with high-end finishes and integrated appliances.
- En-suite bathroom in master bedroom plus additional shower room.
- Air conditioning and gas central heating for year-round comfort.
- Secure video entry system for added safety.
- Close proximity to beach promenade, Felixstowe Pier, and town center.
**Concerns:**
- Leasehold with 119 years remaining.
- Above-average crime rate in the area.
- Restrictions on short-term lets, holiday lets, and pets.
Discover coastal living at its finest in this stylish two-bedroom first-floor apartment located steps away from the beach in Felixstowe. The property boasts breathtaking panoramic sea views from a spacious open-plan lounge/kitchen area, all adorned with modern fixtures and finishes. With the benefit of an en-suite bathroom in the master suite, plus an additional contemporary shower room, this residence offers both comfort and privacy.
While the service charge is set at approximately £2,280 annually and ground rent is low at £125, this beautiful home just might be the serene retreat you’ve been searching for. Enjoy the luxury of air conditioning, high ceilings, and large windows that flood the space with natural light, ensuring a bright and inviting atmosphere. Despite a higher crime rate, the apartment’s secure entry system provides peace of mind. This exclusive property won't linger long on the market; arrange a viewing today and envision your life by the sea!
2 bedroom apartment for sale in Undercliff Road West, Felixstowe, Suffolk, IP11 — £340,000 • 2 bed • 2 bath • 734 ft²
2 bedroom apartment for sale in Rosebery Court, Sea Road, IP11 — £200,000 • 2 bed • 1 bath • 626 ft²
3 bedroom apartment for sale in Felix Court, Sea Road, Felixstowe, IP11 — £225,000 • 3 bed • 1 bath • 826 ft²
2 bedroom apartment for sale in Sea Road, Felixstowe, Suffolk, IP11 — £250,000 • 2 bed • 1 bath • 883 ft²
2 bedroom apartment for sale in Hamilton Gardens, Felixstowe, IP11 — £350,000 • 2 bed • 1 bath • 522 ft²
2 bedroom apartment for sale in Tomline Road, Felixstowe, IP11 — £330,000 • 2 bed • 1 bath • 971 ft²






































































