**Standout Features:**
- Versatile three/four bedroom layout
- Spacious open plan living and dining area
- South-facing rear garden with direct access
- Converted garage providing additional living space
- En-suite shower room in the principal bedroom
- Off-street parking available
- Prime location near schools and seafront
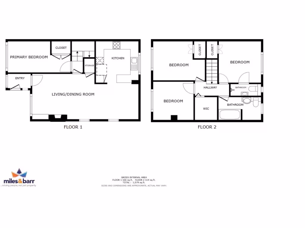
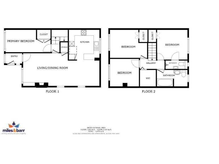
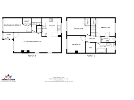
Nestled in the heart of Beltinge, this charming semi-detached family home offers a blend of comfort and versatility, perfect for growing families or potential investors. The bright and airy open plan living area welcomes you with large windows and French doors that lead to a delightful south-facing garden, creating an ideal space for relaxation or entertaining. The modern kitchen features a generous breakfast bar, enhancing the home's sense of space and light.
The clever conversion of the garage adds an extra room that can be adapted to meet your family's needs—be it a bedroom, playroom, or home office. Upstairs, you'll find a principal bedroom with an en-suite, complemented by three additional bedrooms and a family-sized bathroom. Located just a stone's throw from the seafront, and within walking distance to outstanding schools, this property combines convenience with a family-friendly atmosphere.
While the home is well maintained, potential buyers should be aware of average mobile signal quality and the need for routine upkeep common in larger suburban properties. Priced at £350,000, this opportunity is not to be missed—in such a desirable area with flexibility for future renovations, it is certain to attract attention. Don't wait to make this welcoming family haven your own!
4 bedroom detached house for sale in Glenbervie Drive, Beltinge, Herne Bay, Kent, CT6 — £400,000 • 4 bed • 1 bath • 872 ft²
4 bedroom semi-detached house for sale in Terminus Drive, Herne Bay, CT6 — £450,000 • 4 bed • 2 bath • 1553 ft²
4 bedroom detached house for sale in Reculver Road, Herne Bay, CT6 — £550,000 • 4 bed • 3 bath • 1625 ft²
3 bedroom semi-detached house for sale in Plover Close, Herne Bay, CT6 — £339,995 • 3 bed • 1 bath • 988 ft²
3 bedroom semi-detached house for sale in Margate Road, Herne Bay, Kent, CT6 — £450,000 • 3 bed • 2 bath • 1330 ft²
3 bedroom semi-detached house for sale in Cormorant Way, Herne Bay, CT6 — £325,000 • 3 bed • 2 bath • 932 ft²










































































