**Key Features:**
- Garden fronted Victorian terraced house
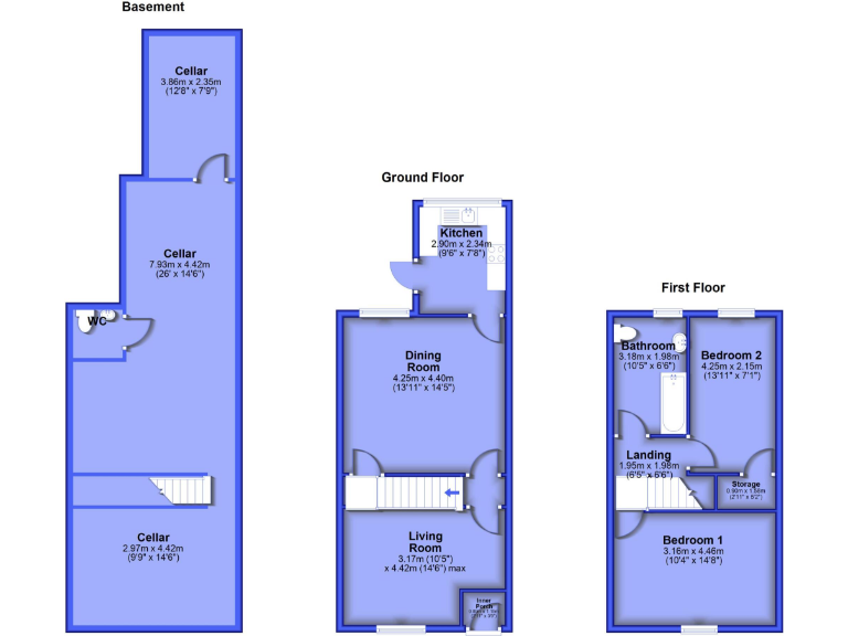
- Two bedrooms and two reception rooms
- Expansive basement with storage and WC
- No onward chain, ideal for first-time buyers or investors
- Gas central heating, UPVC double glazing
- Located near Great Harwood's amenities and schools
- Council tax band A, low maintenance costs
- Leasehold property
Welcome to this charming Victorian terraced property, set in the heart of Great Harwood, offering an incredible opportunity for first-time buyers or savvy investors. With no onward chain, you can quickly make this space your own. The property features two well-proportioned bedrooms, an inviting living room, and a spacious dining area with access to a large basement—the ideal space for storage or a potential renovation project.
Enjoy the advantage of a convenient location just a short walk from local shops, eateries, and public transport links. The property boasts gas central heating and UPVC double glazing, ensuring comfort throughout the year. While it presents a fantastic investment opportunity, please note that the property may require some updating to meet modern standards. With its attractive price point and potential for easy customization, this property is a must-see for those looking to establish roots in a thriving community. Don’t miss out on making this lovely home your own!
2 bedroom terraced house for sale in Blackburn Road, Great Harwood, Blackburn, BB6 — £100,000 • 2 bed • 1 bath • 893 ft²
2 bedroom terraced house for sale in Oak Street, Great Harwood, Blackburn, Lancashire, BB6 — £85,000 • 2 bed • 1 bath • 903 ft²
2 bedroom end of terrace house for sale in Heywood Street, Great Harwood, Blackburn, Lancashire, BB6 — £70,000 • 2 bed • 1 bath • 943 ft²
2 bedroom terraced house for sale in Glebe Street, Great Harwood, BB6 — £85,000 • 2 bed • 1 bath • 754 ft²
2 bedroom terraced house for sale in Station Road, Great Harwood, BB6 — £125,000 • 2 bed • 1 bath • 969 ft²
2 bedroom terraced house for sale in Water Street, Great Harwood, BB6 — £99,950 • 2 bed • 1 bath • 754 ft²














































































