Ideal starter home with big gardens and easy motorway links.
- Two large double bedrooms with good natural light
- Bright lounge with neutral decor and laminate flooring
- Galley kitchen with excellent storage and garden access
- Large private front and rear gardens, strong outdoor potential
- End-of-terrace on a quiet cul-de-sac, freehold tenure
- Exterior needs modernisation; front garden currently unkempt
- Located in a very deprived area; consider resale and services
- 3D virtual tour available; all services untested, inspections advised
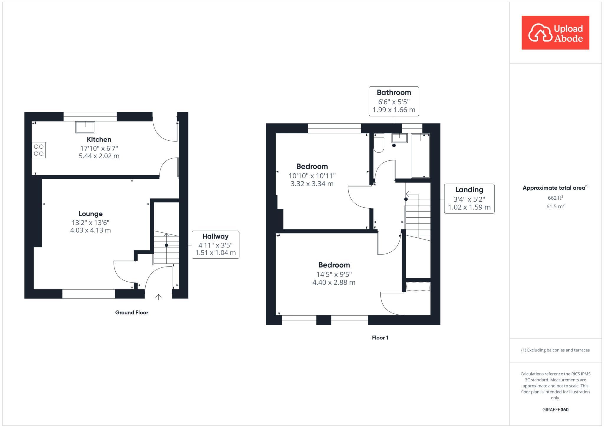
Set at the quiet end of a cul-de-sac, this freehold end-of-terrace home offers a straightforward layout and generous outside space ideal for first-time buyers. The bright lounge and two large double bedrooms provide comfortable, well-proportioned living across an average-sized footprint. Built-in storage in the principal bedroom and a modern, tiled three-piece bathroom add practical convenience.
The galley kitchen benefits from excellent storage and direct rear-garden access, making outdoor dining and simple gardening easy. Large private gardens to the front and rear are a major asset — plenty of room for children, pets or future landscaping projects. A 3D virtual tour is available to help you visualise the space before viewing.
Externally the house shows signs of age and will suit someone willing to carry out cosmetic updating; the front garden is currently unkempt and the property needs general modernisation. The wider area is classified as very deprived, which affects local services and resale dynamics; prospective buyers should factor this into their plans.
Practical positives include freehold tenure, very low council tax and excellent transport links to the M8/M74/M80 for commuting. All fixtures, fittings and services have not been tested — interested parties should arrange their own inspections and enquiries.
2 bedroom end of terrace house for sale in Balloch View, Cumbernauld, G67 — £100,000 • 2 bed • 1 bath • 756 ft²
2 bedroom terraced house for sale in Bredisholm Drive, Baillieston, Glasgow, G69 7HZ, G69 — £145,000 • 2 bed • 1 bath • 601 ft²
2 bedroom end of terrace house for sale in Kew Gardens, Tannochside, Uddingston, G71 — £145,000 • 2 bed • 1 bath • 893 ft²
2 bedroom terraced house for sale in Lord Way, Bargeddie, G69 — £115,000 • 2 bed • 1 bath
2 bedroom terraced house for sale in Inglis Place, East Kilbride, G75 — £130,000 • 2 bed • 1 bath • 710 ft²
2 bedroom terraced house for sale in Woodhead Crescent, Tannochside, G71 — £135,000 • 2 bed • 1 bath • 581 ft²






















































































