**Standout Features:**
- Over 60s can access the Home for Life plan with significant savings (20%-50%)
- Listed price of £270,000; average purchase price for over 60s is £181,000
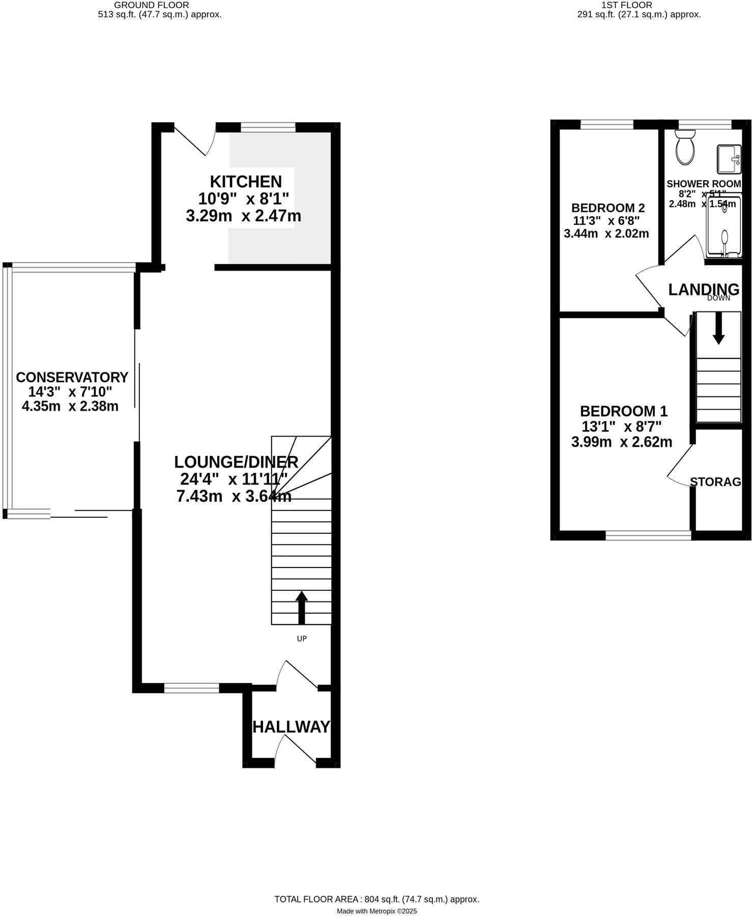
- End of terrace home in an affluent area
- Two bedrooms and one bathroom, situated in a desirable suburban location
- Fast broadband and very low crime rate
- Modern kitchen with integrated appliances and spacious living areas
**Potential Concerns:**
- Limited outside space, being on a small plot
- Designed primarily for retirement, which may not appeal to younger buyers
Discover a fantastic opportunity for those aged 60 and over to secure this charming end-of-terrace property, perfect for retirement. Priced at £270,000, buyers can benefit from the Home for Life plan, potentially reducing their cost to around £181,000—this significant saving ensures financial security for the future. The home features two comfortable bedrooms, a well-equipped modern kitchen, and a cozy garden, all enveloped in a tranquil suburban setting.
Located in a very affluent area, you'll enjoy access to essential amenities and well-rated local schools. With a focus on security and comfort, this property is an excellent choice for retirees seeking a peaceful lifestyle without compromising on modern conveniences. Don't miss this chance to invest in a bright future—act quickly to explore your personalized quote!
2 bedroom detached bungalow for sale in Exeter Road, .Exmouth, Devon, EX8 — £234,500 • 2 bed • 1 bath • 522 ft²
3 bedroom terraced house for sale in Farm Hill, Exeter, Devon, EX4 — £167,500 • 3 bed • 1 bath • 898 ft²
3 bedroom semi-detached house for sale in Blenheim Road, Exeter, Devon, EX2 — £234,500 • 3 bed • 1 bath • 943 ft²
3 bedroom detached bungalow for sale in Brixington Lane, Exmouth, Devon, EX8 — £251,250 • 3 bed • 1 bath • 682 ft²
3 bedroom semi-detached house for sale in Fairfield Road, Exeter, Devon, EX2 — £201,000 • 3 bed • 1 bath • 907 ft²
3 bedroom semi-detached house for sale in Park Drive, Exmouth, Devon, EX8 — £251,250 • 3 bed • 2 bath • 1916 ft²






































































