**Standout Features:**
- Traditional stone-built cottage with charming character
- Beachfront location just steps from the shoreline
- 3 bedrooms, including a ground floor en suite
- Newly renovated with modern amenities
- Spacious kitchen/dining room with log burner
- Enclosed garden with sea views and off-street parking
- Ideal for nature lovers and families
- Low council tax and affordable maintenance
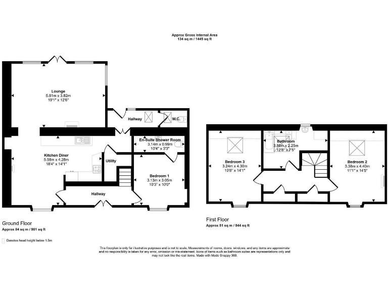
Located in the heart of Golspie, Craigmhor is a beautifully renovated traditional stone cottage that seamlessly combines history with modern convenience. This property features three comfortable bedrooms, including a master suite with an en suite bathroom, making it perfect for families or those seeking a spacious retreat. The open-plan kitchen/dining area boasts ample unit space and a cozy log burner, while the bright and airy lounge with French doors offers idyllic access to an enclosed garden, ideal for enjoying stunning sea views.
Set within walking distance of village amenities such as shops, schools, and restaurants, it’s a dream location for families and retirees alike. The property benefits from good public transport links, making commuting a breeze. While the home is generally in great shape, buyers should note that some areas may require minor adjustments to fully personalize the space. With its prime location and intrinsic charm, this is a rare opportunity that won’t last long—start envisioning your beachside lifestyle today at Craigmhor!
1 bedroom terraced bungalow for sale in 32 East Millicent Avenue, Golspie, Sutherland, KW10 — £95,000 • 1 bed • 1 bath
3 bedroom detached house for sale in 3 Ben Bhraggie Drive, Golspie, Sutherland KW10 6SX, KW10 — £295,000 • 3 bed • 2 bath • 1528 ft²
4 bedroom semi-detached house for sale in Achindour Main Street, Golspie, KW10 6TQ, KW10 — £285,000 • 4 bed • 2 bath • 1851 ft²
4 bedroom town house for sale in Rispond, Main Street, Golspie,Sutherland KW10 6TG, KW10 — £255,000 • 4 bed • 2 bath • 1496 ft²
4 bedroom semi-detached house for sale in Achindour Main Street, Golspie, KW10 6TQ, KW10 — £285,000 • 4 bed • 2 bath • 1074 ft²
2 bedroom semi-detached house for sale in 9 Grant Crescent, Golspie, Sutherland KW10 6TS, KW10 — £126,000 • 2 bed • 1 bath • 775 ft²






























































































