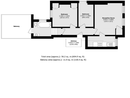
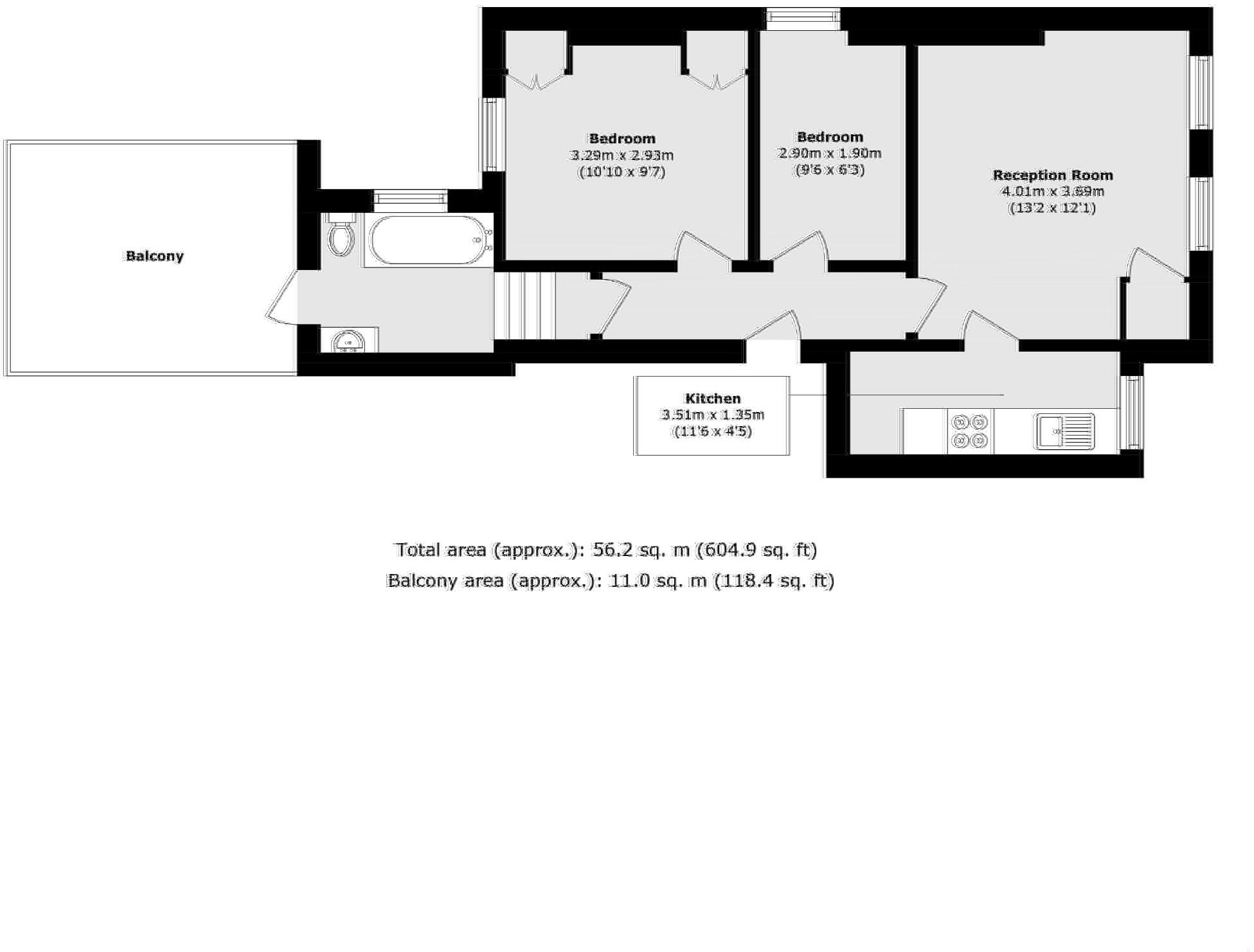
Compact two‑bed conversion with rare private roof terrace near Clapham Common.
Chain free sale with a 957‑year lease remaining
Large west‑facing private roof terrace, rare for this size
Compact two‑bed layout — approx. 600 sq ft total
Single family bathroom; second bedroom suited to single/study
Annual service charge approximately £2,551
Victorian period features: high ceilings, sash windows, fireplace
Solid brick walls likely without insulation (as built)
Excellent transport, shops and Clapham Common on the doorstep
Quietly tucked off Clapham Common, this compact first‑floor period conversion pairs classic Victorian character with rare outdoor space. The flat offers two bedrooms, a separate kitchen and reception, and a large west‑facing roof terrace that extends the living area in summer. High ceilings and sash windows bring good natural light and straightforward period charm.
At around 600 sq ft the accommodation is compact and well suited to a single buyer or couple buying their first home — or an investor looking for a well‑located rental. The property is chain free and has an exceptionally long lease (957 years), reducing common leasehold concerns. Annual service charge is £2,551 and council tax sits in Band C.
The location is the property’s strongest selling point: moments from Clapham Common, Lavender Hill cafés and shops, and within walking distance of Northcote Road and Clapham Junction transport links. The local area is affluent and cosmopolitan, with good schools nearby and fast broadband and mobile coverage.
Buyers should note the flat’s modest footprint and single bathroom — rooms are compact and the second bedroom is best suited as a single or study. The building’s solid brick construction suggests limited wall insulation. Overall, this is a move‑in ready period apartment offering outdoor space and location convenience, best for buyers prioritising position over large internal square footage.
2 bedroom apartment for sale in Shelgate Road, London, SW11 — £750,000 • 2 bed • 2 bath • 852 ft²
2 bedroom flat for sale in Queenstown Road, Battersea, SW8 — £495,000 • 2 bed • 1 bath • 548 ft²
2 bedroom flat for sale in Alderbrook Road, Nightingale Triangle, SW12 — £550,000 • 2 bed • 1 bath • 537 ft²
2 bedroom flat for sale in Sandmere Road, Clapham, SW4 — £525,000 • 2 bed • 1 bath • 534 ft²
3 bedroom maisonette for sale in Longbeach Road, Clapham Common Northside, SW11 — £800,000 • 3 bed • 2 bath • 1272 ft²
2 bedroom flat for sale in Inworth Street, Battersea, SW11 — £475,000 • 2 bed • 1 bath • 480 ft²


























