River views and village location ideal for growing families seeking character.
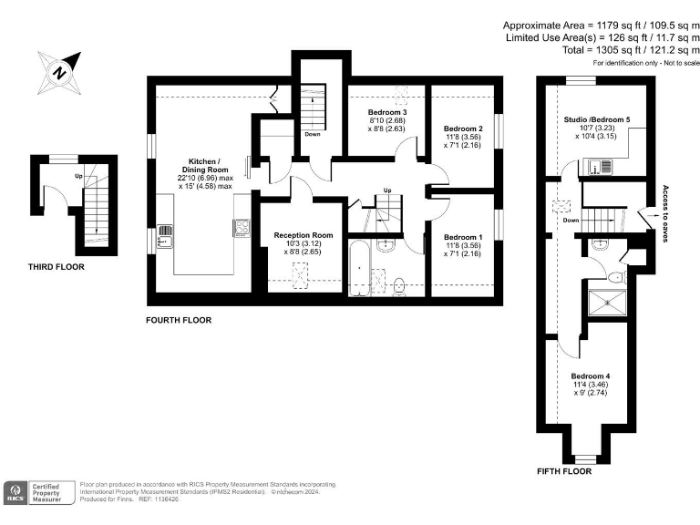
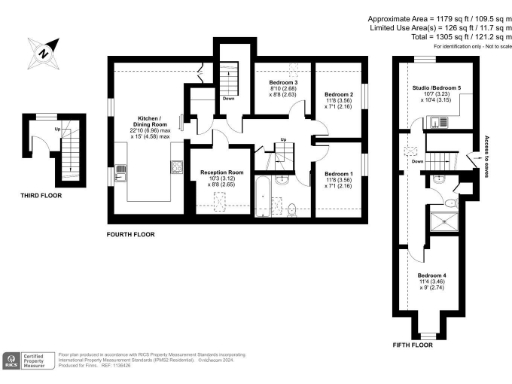
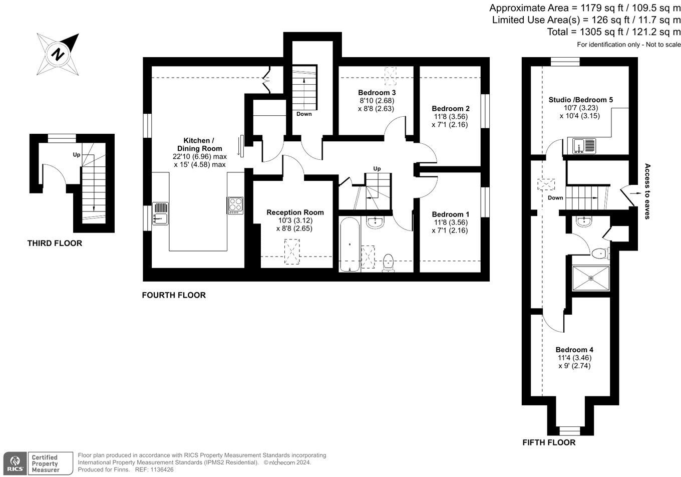
Large two-storey apartment with flexible 4/5 bedroom layout
Set within a Grade II listed 19th-century watermill, this unusually large two-storey apartment enjoys river and village-green views and plenty of flexible room. The open-plan kitchen/dining room and separate living area give a sociable heart to the home, while two large upper rooms and additional bedrooms suit a family, home office or hobby needs.
Practical benefits include allocated off-street parking, access to a communal terrace, double glazing installed post-2002, and two of 11 shares/votes in the freehold management company. The property is offered chain free and sits close to an outstanding village primary, local pub and easy road access to Canterbury and the Stodmarsh reserve.
Important considerations: the building’s listed status may cause delays or restrictions for alterations and will require listed-building consent for many works. Heating is electric via room heaters rather than gas central heating, and the property sits in a medium flood-risk zone. Service charges average £2,400 annually (£200 monthly) for communal maintenance and insurance. Tenure is recorded as unknown, so buyers should verify ownership details and costs before proceeding.
1 bedroom apartment for sale in The Mill, The Green, Wickhambreaux, CT3 — £170,000 • 1 bed • 1 bath • 308 ft²
6 bedroom detached house for sale in The Mill House, Nargate Street, Littlebourne, CT3 — £1,250,000 • 6 bed • 3 bath • 4400 ft²
2 bedroom apartment for sale in Deans Mill Court, Canterbury, CT1 — £95,000 • 2 bed • 1 bath • 573 ft²
2 bedroom flat for sale in Weir Court, Barton Mill Road, Canterbury, CT1 — £275,000 • 2 bed • 2 bath • 900 ft²
4 bedroom detached house for sale in Nargate Street, Littlebourne, CT3 — £750,000 • 4 bed • 3 bath • 2600 ft²
3 bedroom terraced house for sale in Wickhambreaux, CT3 — £395,000 • 3 bed • 1 bath • 1005 ft²






















































































