Sunroom, garage and off-street parking — ideal for a practical first home.
Detached garage with electric roller door and power lighting included
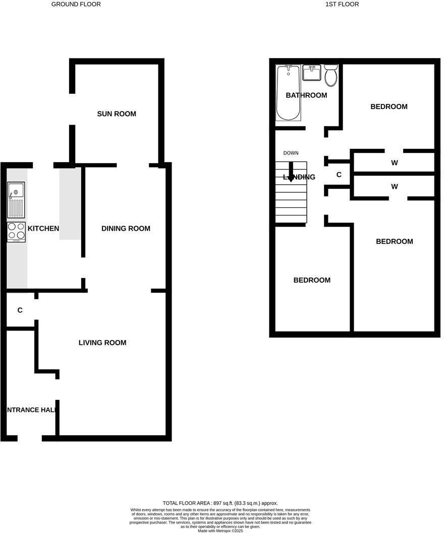
A three-bedroom semi-detached villa in Culloden offering practical family accommodation and strong parking provision. The house combines useful storage, a sunroom and a detached garage with low-maintenance garden — a straightforward home for first-time buyers or those seeking manageable upkeep.
The ground floor has an open-plan lounge/dining area, a contemporary kitchen with included white goods, and a bright sunroom opening to the rear patio. Double glazing and fitted wardrobes in two bedrooms add convenience; the bathroom is modern and ready for use.
Notable negatives are factual: heating is electric rather than gas, the living/dining decor shows 1970s styling and would benefit from modernisation, and the wider area records higher deprivation indices. There is a single family bathroom and modest internal room sizes, so buyers seeking larger or more luxurious accommodation should allow for upgrades.
Overall this freehold home offers sensible value at the asking price with clear scope to increase appeal through cosmetic updating. The detached garage, private driveway and loft space add practical flexibility for storage or future projects.
3 bedroom semi-detached bungalow for sale in 10 Hazel Avenue, Culloden, Inverness, IV2 — £203,000 • 3 bed • 1 bath • 692 ft²
3 bedroom detached house for sale in Moray Park Wynd, Culloden, Inverness, Highland, IV2 — £265,000 • 3 bed • 2 bath • 1109 ft²
3 bedroom terraced house for sale in Galloway Drive, Culloden, Inverness, IV2 — £170,000 • 3 bed • 1 bath
3 bedroom detached house for sale in 64 Towerhill Avenue, Cradlehall, Inverness, IV2 — £308,000 • 3 bed • 2 bath • 1247 ft²
3 bedroom detached house for sale in 10 Scorguie Avenue, Inverness, IV3 8SD, IV3 — £225,000 • 3 bed • 1 bath • 715 ft²
2 bedroom semi-detached house for sale in 30 Firthview Avenue, Inverness, IV3 — £210,000 • 2 bed • 1 bath






















































































