Low-maintenance, energy-efficient living with managed communal facilities and guest suite.
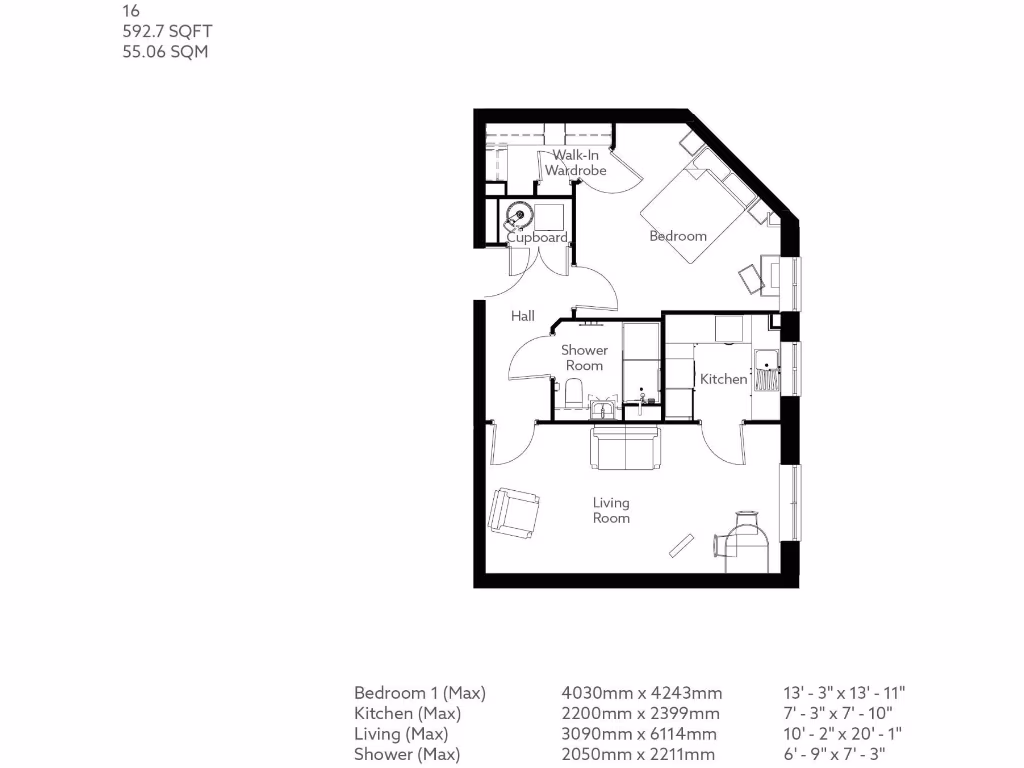
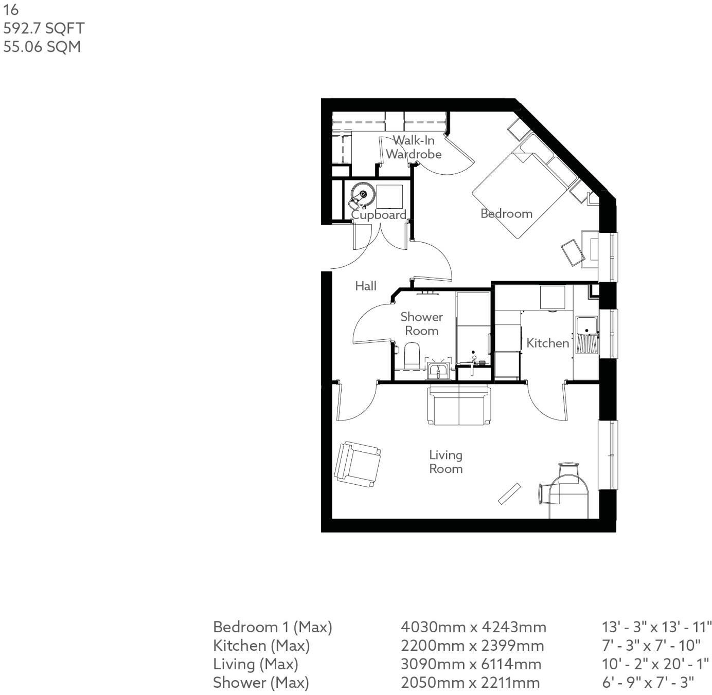
First-floor one-bedroom retirement apartment, 592 sq ft
Built 2022 — modern, low-maintenance finish throughout
Walk-in wardrobe in master; fitted flooring throughout
House Manager on site; guest suite available for visitors
Energy-efficient build — SAP up to 85; mainly electric heating
Leasehold with 996 years remaining; service charges likely apply
North-facing — reduced direct sun in living areas and garden
Local crime rate above average; consider security and insurance
This one-bedroom retirement apartment at Stanley Place offers low-maintenance, energy-efficient living in a modern development on Garstang’s town fringe. Finished in 2022, the first-floor flat (592 sq ft) has fitted flooring throughout, an airy living room, an integrated kitchen and a bedroom with a walk-in wardrobe — ready for immediate occupation.
Designed for comfortable downsizing, the development includes a House Manager, landscaped communal gardens and a guest suite for visiting family. Practical details include slip-resistant shower flooring, chrome towel radiator, good SAP (up to 85) and excellent mobile and fast broadband — useful for staying connected and comfortable with mainly electric room heaters.
Buyers should note this is leasehold with 996 years remaining and is part of managed communal facilities, so service charges apply. The property faces north, which limits direct sun in the living room and garden, and heating is electric room heaters rather than a gas central system (consider running costs). Local crime is above average for the area, though the building sits close to shops, cafes, transport links and open countryside for easy access to amenities and walks.
2 bedroom retirement property for sale in Kepple Lane,
Garstang,
Lancashire,
PR3 1XH, PR3 — £284,950 • 2 bed • 1 bath • 772 ft²
2 bedroom retirement property for sale in Kepple Lane,
Garstang,
Lancashire,
PR3 1XH, PR3 — £294,950 • 2 bed • 1 bath • 772 ft²
2 bedroom retirement property for sale in Kepple Lane,
Garstang,
Lancashire,
PR3 1XH, PR3 — £202,500 • 2 bed • 1 bath • 792 ft²
2 bedroom retirement property for sale in Kepple Lane,
Garstang,
Lancashire,
PR3 1XH, PR3 — £213,750 • 2 bed • 1 bath • 793 ft²
1 bedroom retirement property for sale in Kepple Lane,
Garstang,
Lancashire,
PR3 1XH, PR3 — £153,750 • 1 bed • 1 bath • 592 ft²
2 bedroom retirement property for sale in Kepple Lane,
Garstang,
Lancashire,
PR3 1XH, PR3 — £221,250 • 2 bed • 1 bath • 772 ft²






































































