**Property Highlights:**
- Spacious five-bedroom detached family home
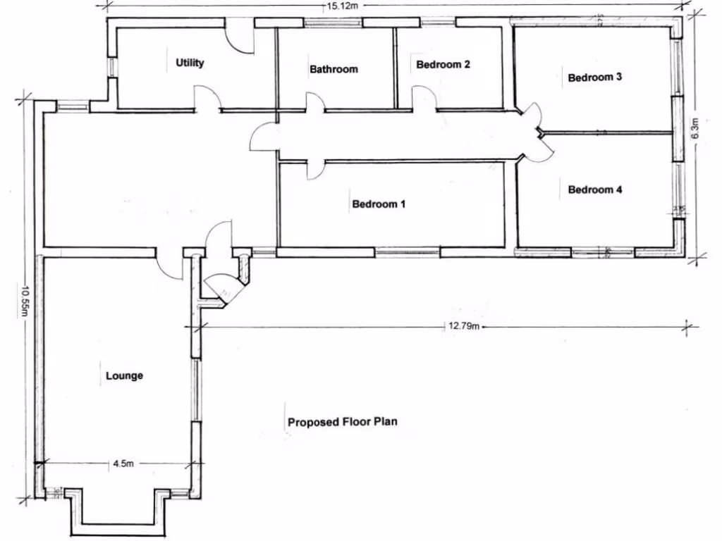
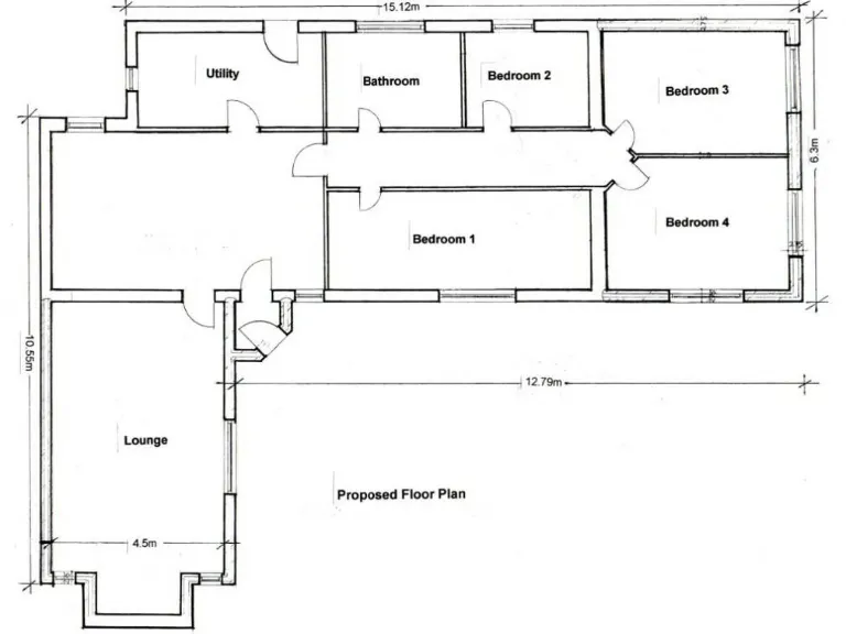
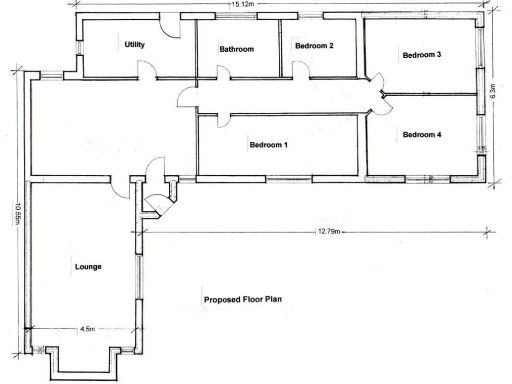
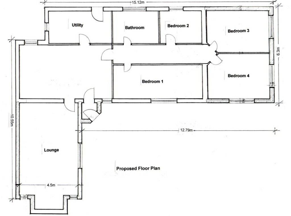
- Large private corner plot with potential for a four-bedroom bungalow
- Modernized interiors with generous living spaces
- Excellent commuter links to A55 and M56
- Ample off-street parking and landscaped gardens
- Council tax band: E; EPC rating: E
Step into this immaculate five-bedroom family home, nestled in a peaceful corner plot in Alltami, offering a perfect blend of space and comfort for modern family living. The property boasts a light-filled lounge with a multi-fuel burner, a large kitchen with rustic features and an AGA stove, and flexible rooms for a study or office. The upper floor reveals five well-appointed bedrooms, making it ideal for families seeking room to grow.
What's more, this exceptional property comes with outline planning permission for a four-bedroom detached bungalow, opening the door to future investment or expansion possibilities. While the home's condition is excellent and well-maintained, note that the three-bay open-fronted outbuilding is excluded from the sale. This stunning home is chain-free and benefits from nearby amenities and low crime rates, perfect for families seeking a serene yet accessible lifestyle. Act quickly; opportunities like this don’t last long!
5 bedroom detached house for sale in The Willow, Buckley, CH7 — £550,000 • 5 bed • 2 bath • 1829 ft²
5 bedroom detached house for sale in Pant Hyfryd, Cymau, LL11 — £575,000 • 5 bed • 3 bath • 3157 ft²
3 bedroom detached bungalow for sale in LOTS 1 & 2 - Building plot and Bungalow at Bay Tree Cottage, Pentre Lane, Buckley, CH7 — £500,000 • 3 bed • 1 bath • 2034 ft²
Land for sale in Mold Road, Alltami, Mold , CH7 — £800,000 • 1 bed • 1 bath • 27443 ft²
4 bedroom detached house for sale in Halkyn Road, Flint, CH6 — £425,000 • 4 bed • 3 bath • 2030 ft²
3 bedroom detached bungalow for sale in Greenville Avenue, Ewloe Green, Deeside, Flintshire, CH5 — £260,000 • 3 bed • 1 bath • 1030 ft²














































































