Ideal starter with garage and garden.
- Two double bedrooms, compact first-time buyer layout
- Side garage and driveway parking
- Extended kitchen and separate dining room
- Pleasant rear garden, easy maintenance
- Freehold and offered chain-free
- EPC D, glazing pre-2002, needs energy improvements
- Solid brick walls likely without insulation
- Located in a very deprived, hampered neighbourhood
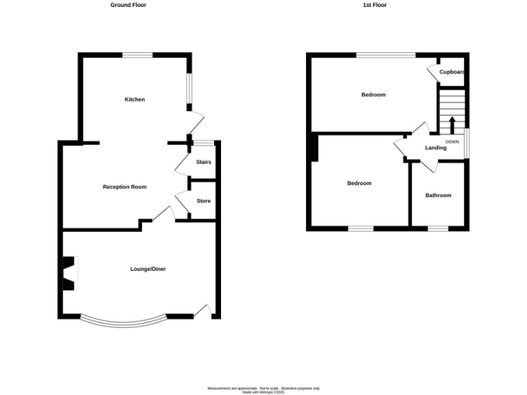
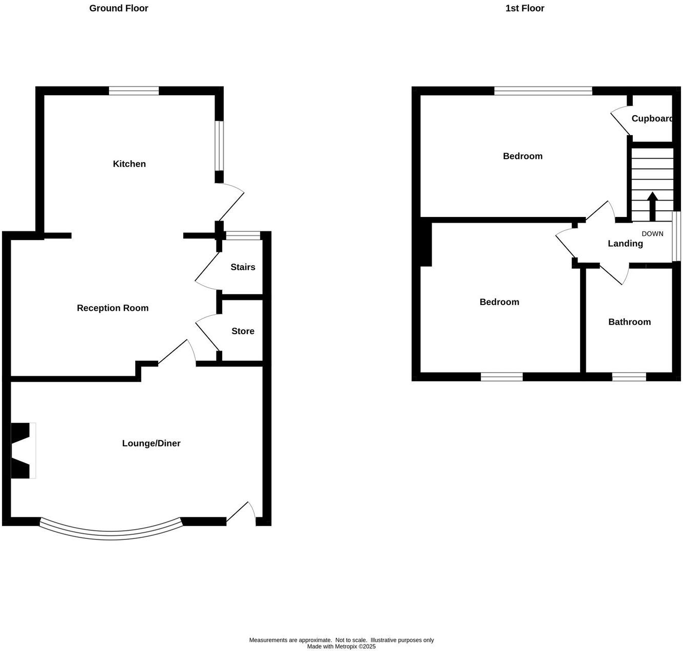
This extended two-bedroom end terrace offers an accessible entry into homeownership with a practical layout and useful outdoor space. The lounge and separate dining room open to an extended kitchen, creating straightforward living and entertaining areas. A side garage and pleasant rear garden add real everyday convenience that many flats cannot match.
The property is freehold and chain-free, making completion simpler for first-time buyers. Gas central heating and double glazing are already in place, though the glazing dates from before 2002 and the property has an EPC rating of D. Internally the house shows signs of age and would benefit from modernization to maximise comfort and energy efficiency.
Buyers should note material descriptors: solid brick walls likely lack cavity insulation, and overall the area sits within a very deprived, hampered neighbourhood classification. Local amenities include good primary and secondary schools, regular bus services, and community facilities, but buyers should weigh neighbourhood factors alongside the property’s affordability and potential.
For someone looking to personalise a starter home with scope to improve value, this compact, low–council-tax property delivers a practical base, sensible running costs, and room for uplift through refurbishment.
2 bedroom semi-detached house for sale in Habberley Road, Rowley Regis, B65 9QJ, B65 — £200,000 • 2 bed • 1 bath • 614 ft²
2 bedroom semi-detached house for sale in Barn Close, Cradley Heath, B64 — £215,000 • 2 bed • 1 bath • 1206 ft²
2 bedroom terraced house for sale in Ellerton Road, Kingstanding, Birmingham, B44 0QG, B44 — £185,000 • 2 bed • 2 bath
2 bedroom semi-detached house for sale in Caddick Road, Great Barr, Birmingham B42 2RJ, B42 — £200,000 • 2 bed • 1 bath • 786 ft²
2 bedroom terraced house for sale in Titford Road, Oldbury, B69 — £160,000 • 2 bed • 1 bath • 516 ft²
3 bedroom end of terrace house for sale in ROWLEY REGIS, Harvington Walk, B65 — £198,000 • 3 bed • 1 bath • 1055 ft²














































