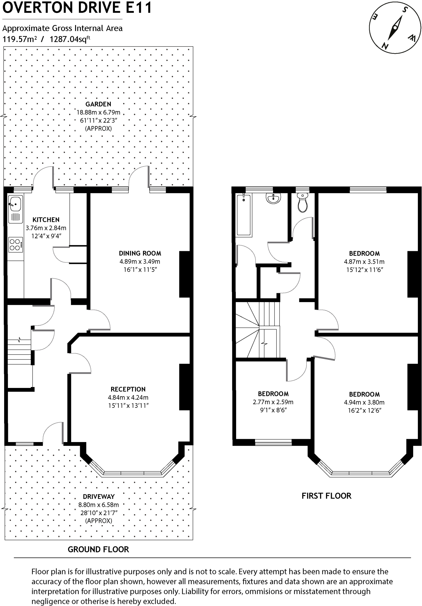
**Standout Features:**
- Charming 1920's mid-terrace house within the prestigious Warren Estate
- Off-street parking for up to two cars
- Generous 61-foot south-facing garden, ideal for outdoor activities
- Over 1,200 square feet of living space with original period features
- Potential to convert the loft and extend the property (subject to planning permission)
- Conveniently located 0.3 miles from Wanstead Central Line Station
---
Discover this delightful 1920's mid-terrace family home situated in Wanstead's coveted Warren Estate, combining timeless appeal with modern potential. The home boasts a wonderful 61-foot south-facing garden, ideal for family gatherings or gardening enthusiasts, while off-street parking is a rarity that adds to the convenience of urban living.
Inside, the generous layout features original character elements such as ornate fireplaces and classic bay windows. The two spacious double bedrooms and third bedroom offer ample accommodation, and potential homeowners will appreciate the opportunity to customize further with loft conversion and extension possibilities (subject to planning permissions).
You are just moments away from beautiful green spaces, such as Wanstead Park, and an array of local amenities, including shops and restaurants on Wanstead High Street. Families will benefit from excellent nearby schools with outstanding ratings.
While the home is well-maintained, it preserves a vintage charm inviting updates to make it truly your own. Don't miss this rare gem that brings together elegance, spaciousness, and potential in one of East London’s most sought-after locales. Act fast—homes like this in the Warren Estate don’t stay on the market long!
5 bedroom terraced house for sale in Warren Road, Wanstead, E11 — £1,150,000 • 5 bed • 2 bath • 1582 ft²
4 bedroom semi-detached house for sale in Overton Drive, Wanstead, E11 — £1,400,000 • 4 bed • 2 bath • 2018 ft²
3 bedroom house for sale in Overton Drive, Wanstead, E11 — £1,250,000 • 3 bed • 1 bath • 1002 ft²
3 bedroom terraced house for sale in Colebrooke Drive, Wanstead, E11 — £1,200,000 • 3 bed • 1 bath • 1242 ft²
5 bedroom end of terrace house for sale in Warren Road, Wanstead, E11 — £1,200,000 • 5 bed • 2 bath • 1641 ft²
4 bedroom semi-detached house for sale in Warren Road, Wanstead, E11 — £1,225,000 • 4 bed • 1 bath • 1839 ft²






































































































