**Standout Features:**
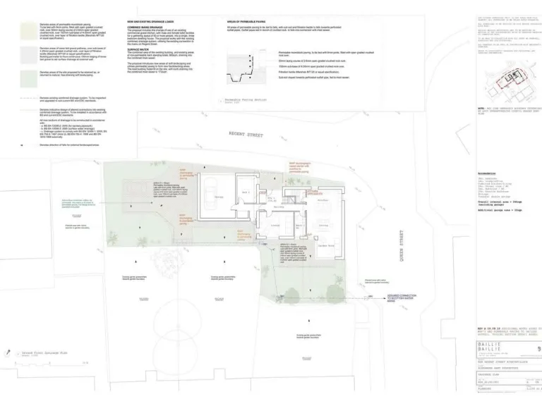
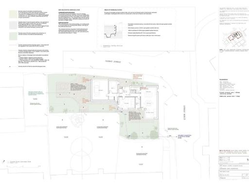
- Prime freehold plot with approved planning permission for a **two-story family home**
- Architect-designed plans to create a unique living space
- Quiet, urban location in **central Kirkintilloch**
- Excellent mobile signal and fast broadband speeds
- Affordable council tax in a comfortable neighborhood
- Nearby amenities including schools, shops, and recreational facilities
**Potential Concerns:**
- Property requires development and construction efforts
- Area is characterized as "very deprived," which may affect future value
Discover a rare investment opportunity in Kirkintilloch! This approved **freehold plot** offers potential buyers the chance to create a bespoke **two-story family home** tailored to their vision. Nestled in a tranquil urban setting surrounded by friendly residential properties, the flat land is perfect for easy construction. With fast broadband and excellent mobile connectivity, your lifestyle and work-from-home needs are well-equipped.
Whether you're looking to develop a cozy family residence or seeking a worthwhile project, this property's **architect-designed plans** allow for a unique touch that stands out in the market. While the surrounding area is described as "very deprived," the **affordable council tax** and nearby amenities create a balance of comfort and practicality. Don't miss the chance to secure this exclusive plot in a desirable location—opportunities like this in Kirkintilloch are seldom available. Reach out to explore the possibilities today!
Land for sale in Plot at Glen Grove, Kilsyth, G65 — £69,000 • 1 bed • 1 bath • 645 ft²
Land for sale in Greengairs Road, Airdrie, Lanarkshire, ML6 — £103,500 • 1 bed • 1 bath • 16512 ft²
Land for sale in Hamilton Road, Uddingston, Glasgow, G71 — £200,000 • 1 bed • 1 bath
Land for sale in Land at Church Street, Uddingston, Glasgow, G71 — £395,000 • 1 bed • 1 bath • 935 ft²
Bungalow for sale in Plot 2 Huntershill Road Bishopbriggs G64 1RP, G64 — £175,000 • 1 bed • 1 bath
Land for sale in Land at Seafar Road, Cumbernauld, G67 1HP, G67 — £250,000 • 1 bed • 1 bath










































