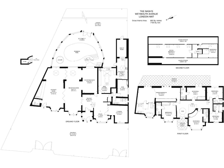
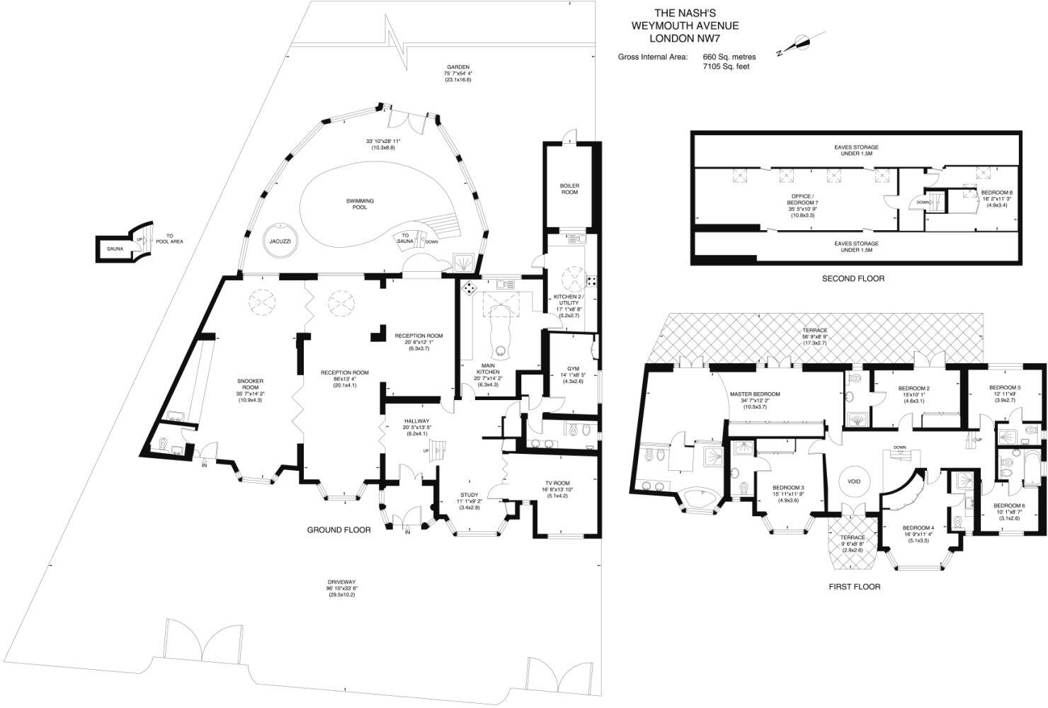
Extensive leisure-filled home near Mill Hill Broadway and top schools.
- Approximately 7,105 sq ft across multiple floors
- Indoor pool, jacuzzi, gym and games room with bar
- Eight bedrooms; six first-floor en-suites, principal with terrace
- Separate utility kitchen, boiler room and home office
- Large landscaped garden, carriage driveway and off-street parking
- Double glazing fitted post-2002; underfloor heating on ground floor
- Solid-brick walls likely uninsulated; potential energy inefficiency
- Very expensive council tax and high ongoing running costs
An imposing eight-bedroom detached home on a large plot in Mill Hill, offering exceptional indoor leisure and flexible living across approximately 7,105 sq ft. The ground floor is organised for family life and entertaining, with an indoor pool and jacuzzi, gym, games/snooker room with bar, formal living and dining rooms, plus a well-equipped kitchen and separate utility kitchen. Underfloor heating, integrated air-conditioning and later double glazing add modern comfort.
The principal suite occupies a peaceful first-floor position with a dressing area and terrace; six further first-floor bedrooms all have en-suites, with two additional second-floor rooms and extensive eaves storage. A generous reception hallway, home office and dedicated TV room increase usability for families or professionals working from home. The carriage driveway and off-street parking accompany a landscaped rear garden with terrace and water feature.
Buyers should note the house dates from 1930–1949 and the original solid-brick walls are assumed uninsulated, which may mean higher heating demands and renovation potential. Council tax is very expensive and running costs will reflect the property's size and leisure facilities. The property is offered freehold with no flood risk and excellent broadband and mobile signal, close to Mill Hill Broadway (Thameslink) and a selection of highly regarded local schools.
8 bedroom detached house for sale in Parkside, Mill Hill, London, NW7 — £3,495,000 • 8 bed • 6 bath • 8336 ft²
7 bedroom detached house for sale in Watford Way, Mill Hill, London, NW7 3JH, NW7 — £1,500,000 • 7 bed • 6 bath • 4445 ft²
7 bedroom detached house for sale in Watford Way, London, NW7 — £1,500,000 • 7 bed • 6 bath • 4445 ft²
8 bedroom detached house for sale in Anthony Close, Mill Hill, London, NW7 — £3,250,000 • 8 bed • 6 bath • 7877 ft²
5 bedroom detached house for sale in Uphill Road, London, NW7 — £2,250,000 • 5 bed • 3 bath • 3533 ft²
4 bedroom detached house for sale in Holmdene Avenue, Mill Hill, NW7 — £1,875,000 • 4 bed • 2 bath • 1827 ft²


































































































