Spacious period home with large gardens and direct forest access..
3 double bedrooms including loft conversion under eaves
Generous front and rear gardens with established borders
Wood-burning stove, original floorboards and period features
Detached workshop and undercover log store for hobbies or storage
Freehold; council tax band B; EPC rating F
Very slow broadband; may affect home working or streaming
Stone walls likely uninsulated; energy upgrades may be needed
Single bathroom only; could limit larger family use or occupancy
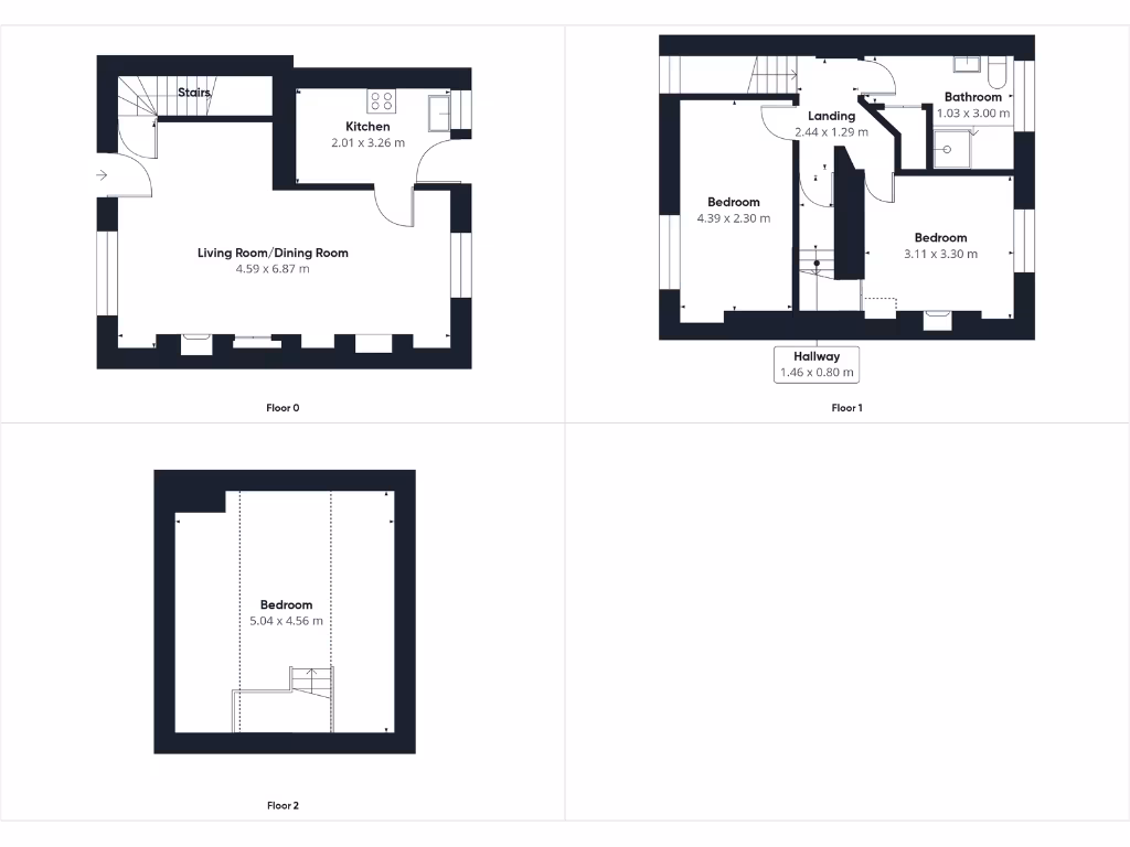
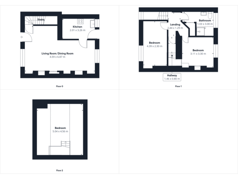
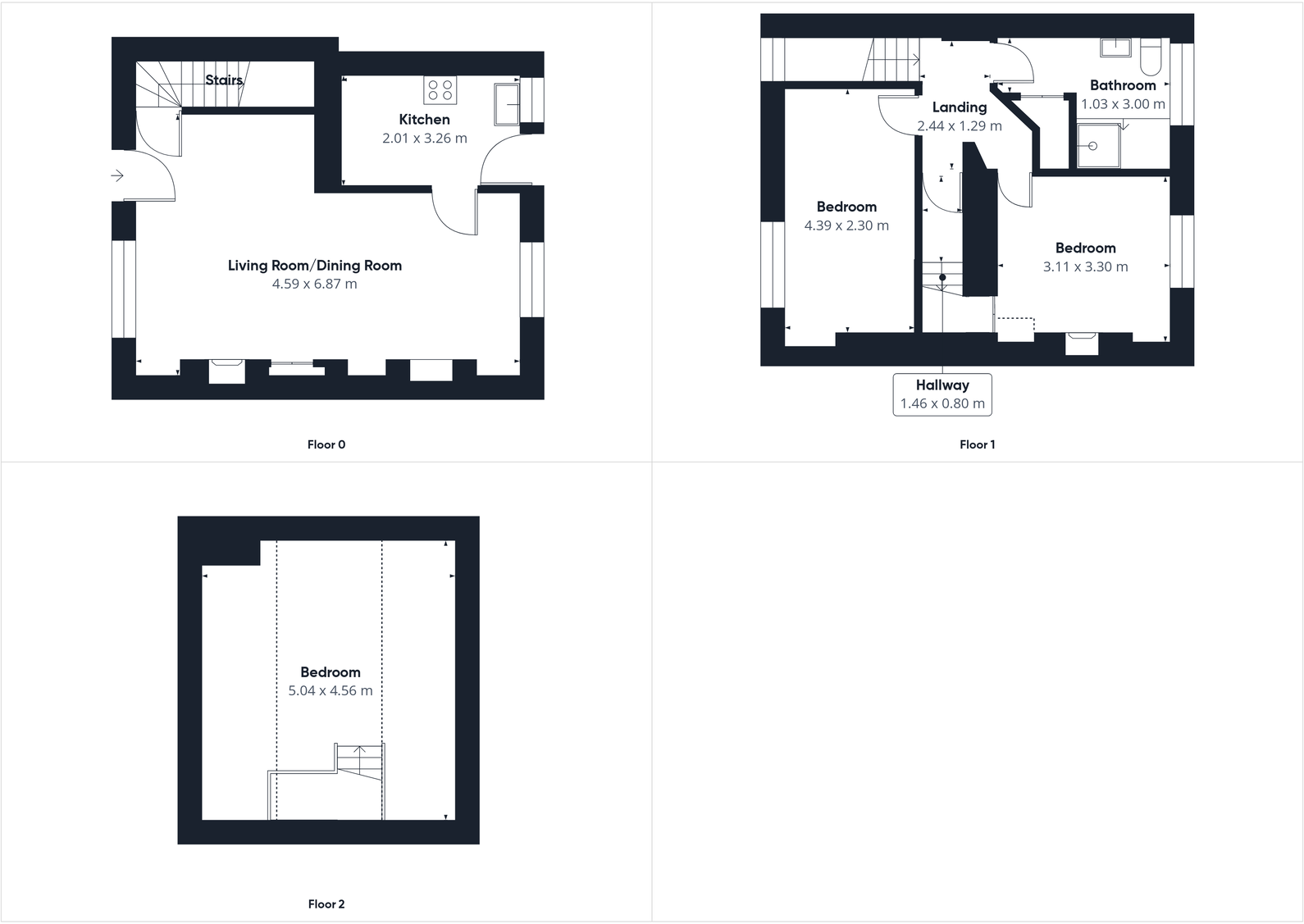
Nestled in a rarely available spot in The Barracks, this three-bedroom Victorian home sits on generous front and rear gardens and is on the doorstep of extensive woodland walks. The house retains period features throughout — sash-style windows, exposed stone, original floorboards and a working wood-burning stove — giving comfortable, characterful living across its 924 sq ft. A detached workshop and undercover log store add practical space for hobbies and storage.
The layout provides two double bedrooms on the first floor, a loft-conversion third bedroom under the eaves, and a well-appointed bathroom. The kitchen is contemporary shaker-style and opens to the rear garden for easy outdoor access. Parquet and exposed timber floors, original fireplaces and Velux windows in the attic boost the home’s rural charm and natural light.
Notable practical details: the property is freehold with council tax band B and an EPC rating of F. The older stone walls are assumed to lack insulation, heating is dual fuel (mineral and wood) via boiler and radiators, and broadband speeds in the area are very slow. There is one bathroom only and the house is a mid-terrace built before 1900, which may entail ongoing maintenance or modernisation for energy performance.
This house will suit buyers seeking a peaceful, village lifestyle close to the Forest of Dean, gardeners wanting large established plots, or restorers looking for period potential. Its woodland setting, substantial plot and usable outbuildings offer a strong country-living proposition, provided you’re prepared to manage energy efficiency and connectivity trade-offs.
3 bedroom semi-detached house for sale in Woodland Rise, Parkend, GL15 — £230,000 • 3 bed • 1 bath • 792 ft²
4 bedroom detached house for sale in Five bedroom house with two Holiday lets - Parkend, Forest of Dean, GL15 — £925,000 • 4 bed • 3 bath • 3035 ft²
3 bedroom detached house for sale in Bilson, Cinderford, GL14 — £385,000 • 3 bed • 1 bath • 1432 ft²
3 bedroom end of terrace house for sale in Ruspidge Road, Cinderford, GL14 — £215,000 • 3 bed • 1 bath • 747 ft²
3 bedroom terraced house for sale in Woodview, Brockhollands, Gloucestershire, GL15 4PP, GL15 — £294,950 • 3 bed • 1 bath • 1101 ft²
2 bedroom cottage for sale in Parkend, Lydney, GL15 — £249,950 • 2 bed • 2 bath • 808 ft²










































































