**Standout Features:**
- Modern kitchen and contemporary bathroom
- UPVC double glazing for energy efficiency
- Freehold tenure ideal for investment
- Good-sized rear garden
- Affordable council tax band (A)
- Suitable for first-time buyers and families
**Potential Concerns:**
- Located in an area with above-average crime rates
- Small overall size (767 sq ft)
- Average mobile signal
- Property may need attention to certain systems as they have not been tested
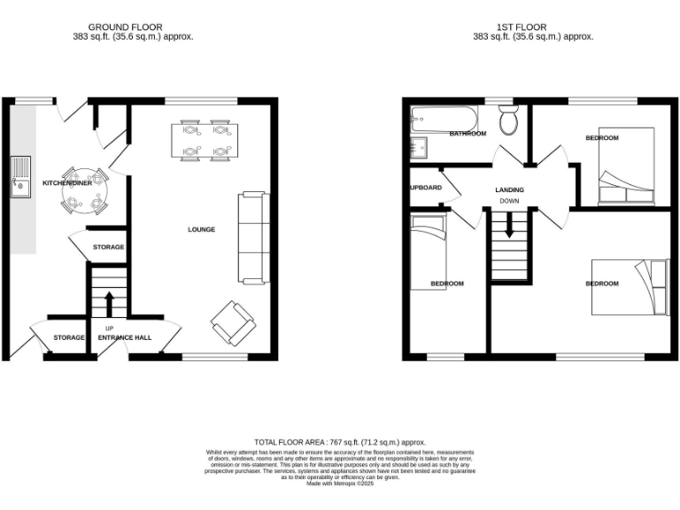
Welcome to this charming three-bedroom terraced house in the desirable Little Sutton area, perfect for first-time buyers and families. Spanning 767 sq ft, this property features a modern kitchen and a contemporary bathroom, along with the added benefits of UPVC double glazing and a combination boiler, ensuring comfort and efficiency. The well-maintained rear garden provides an inviting outdoor space for relaxation and play.
Though the property enjoys a good layout with a hallway, lounge, kitchen/diner, and three bedrooms, it does sit in a location with above-average crime rates. The house is situated near reputable primary schools with strong Ofsted ratings, making it family-friendly. With its affordable council tax and freehold status, this home offers both value and flexibility for future renovations or extensions. Don’t miss your chance to create lasting memories in this delightful property—a must-see for anyone seeking a comfortable home in a vibrant community!
3 bedroom semi-detached house for sale in Foxdene, Little Sutton, CH66 — £200,000 • 3 bed • 1 bath • 662 ft²
3 bedroom terraced house for sale in Sweetfield Gardens, Little Sutton, Cheshire, CH66 — £175,000 • 3 bed • 1 bath • 336 ft²
3 bedroom terraced house for sale in Parklands, Little Sutton, Ellesmere Port, CH66 — £115,000 • 3 bed • 1 bath • 734 ft²
3 bedroom semi-detached house for sale in Briardale Gardens, Little Sutton, Ellesmere Port, Cheshire, CH66 — £160,000 • 3 bed • 1 bath • 752 ft²
3 bedroom semi-detached house for sale in Black Lion Lane, Little Sutton, Ellesmere Port, CH66 — £190,000 • 3 bed • 1 bath • 721 ft²
2 bedroom semi-detached house for sale in Glenwood Road, Little Sutton, Cheshire, CH66 — £150,000 • 2 bed • 1 bath • 645 ft²






























































