Two-bedroom auction opportunity with garden close to stations and good schools.
- Two double bedrooms and separate living room
- Vacant leasehold; will be sold at online auction
- Six weeks’ completion required from sale
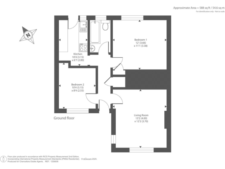
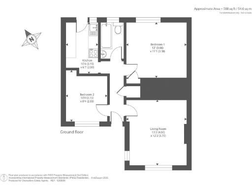
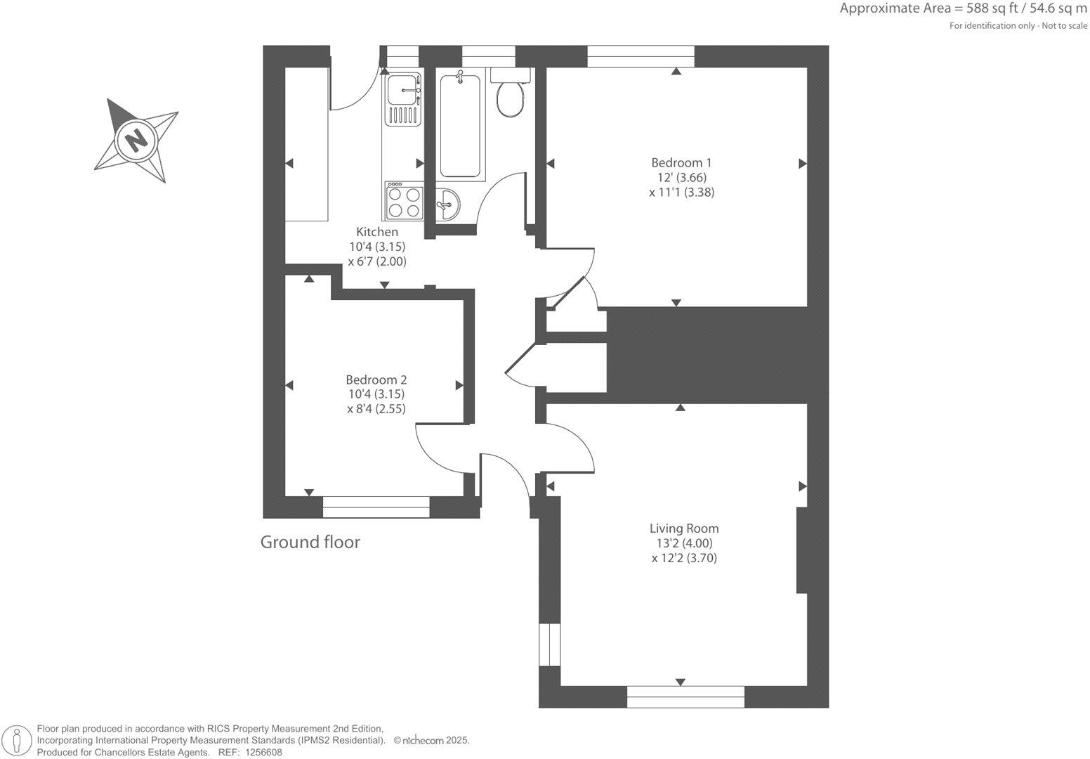
- Approx 588 sq ft — relatively small overall size
- Mains gas boiler heating; double glazing (age unknown)
- Cavity walls assumed without insulation — upgrade opportunity
- Communal gardens; on-street parking only
- Above-average local crime; check local safety data
A two-bedroom ground-floor maisonette offered vacant with immediate possession and online-auction sale, suited to first-time buyers or buy-to-let investors. The flat sits on a peaceful road moments from Northwood Hills high street, with the Metropolitan line, shops and cafés within easy walking distance.
Internally the layout provides two double bedrooms, a separate living room, a spacious kitchen and a single bathroom across approximately 588 sq ft. Heating is by mains-gas boiler and radiators; the property has double glazing though the install date is unknown. The building dates from the mid-20th century and cavity walls are assumed to lack insulation, so there is clear scope for energy-efficiency improvements.
Outside there are well-maintained communal gardens and on-street parking. The location benefits from a cluster of good schools nearby and fast broadband/mobile coverage. Note the property is leasehold, will be sold at auction with a six-week completion, and the overall internal size is small compared with modern apartments.
This is a straightforward purchase if you need a short completion timetable or want rental income potential. Buyers should budget for updating and improved insulation, and check lease details and any communal service arrangements before bidding.
1 bedroom maisonette for sale in Thirlmere Gardens, Northwood, HA6 — £155,000 • 1 bed • 1 bath • 534 ft²
2 bedroom flat for sale in Dene Road, Northwood, HA6 — £410,000 • 2 bed • 2 bath • 893 ft²
1 bedroom maisonette for sale in Thirlmere Gardens, Northwood, HA6 2GA, HA6 — £155,000 • 1 bed • 1 bath • 534 ft²
2 bedroom maisonette for sale in Northwood, HA6 — £385,000 • 2 bed • 1 bath • 506 ft²
2 bedroom terraced house for sale in 31 Thirlmere Gardens, Northwood, Middlesex, HA6 2RX, HA6 — £220,000 • 2 bed • 1 bath • 804 ft²
1 bedroom flat for sale in Oakwood Road, Pinner, HA5 — £265,000 • 1 bed • 1 bath • 540 ft²






























