**Standout Features:**
- Newly renovated two-bedroom apartment in a charming Georgian building
- Bright, south-west-facing living room with period features and modern decor
- Sleek galley-style kitchen with integrated appliances
- Low-maintenance paved rear garden perfect for outdoor relaxation
- Central location with easy access to amenities and train links
- On-street permit parking available
**Potential Concerns:**
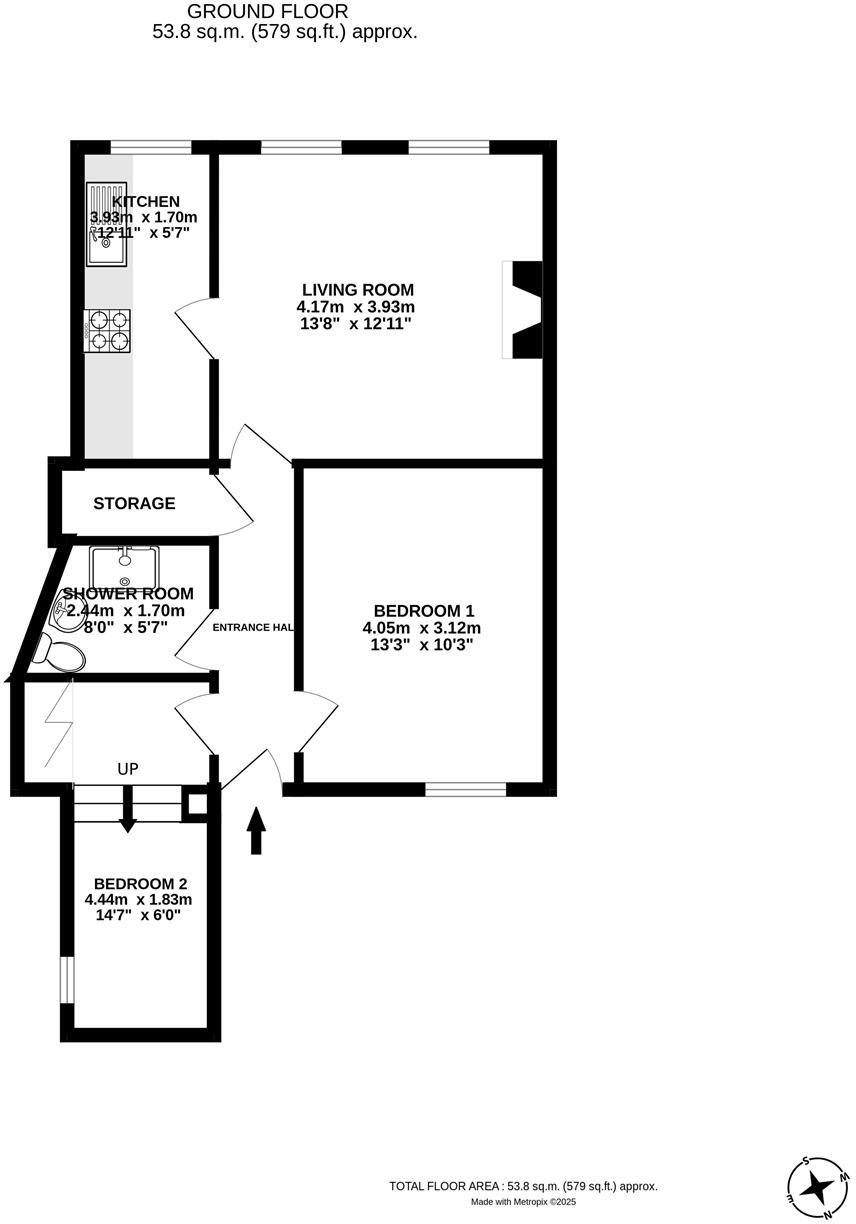
- Property size: smaller unit at 579 sq ft
- Broadband speeds may be slower than average
Discover the perfect blend of historic charm and modern convenience in this newly renovated two-bedroom apartment located in Linlithgow's desirable High Street Conservation Area. Boasting an elegant south-west-facing living room adorned with period features, a sleek galley kitchen with high-spec appliances, and two comfortable double bedrooms, this turn-key home is ideal for first-time buyers and professionals alike.
Step outside to enjoy your low-maintenance rear garden, a peaceful retreat for leisurely weekends. With Linlithgow's vibrant town center at your doorstep and swift rail links to Edinburgh and Glasgow just a 10-minute walk away, this property is a commuter's dream. Experience a lifestyle filled with local amenities, beautiful parks, and rich history—everything you need for comfort and convenience awaits. Don't miss the chance to make this exclusive space your own in a sought-after area!
2 bedroom apartment for sale in 1a Lochside Mews, Linlithgow, EH49 7EE, EH49 — £265,000 • 2 bed • 2 bath • 590 ft²
2 bedroom flat for sale in Broomyhill Place, Linlithgow, EH49 — £209,000 • 2 bed • 2 bath • 915 ft²
2 bedroom apartment for sale in Old School Court, Linlithgow, EH49 — £260,000 • 2 bed • 2 bath • 936 ft²
2 bedroom flat for sale in Old School Court, Linlithgow, EH49 — £290,000 • 2 bed • 2 bath • 1023 ft²
2 bedroom flat for sale in Barkhill Road, Linlithgow, EH49 — £155,000 • 2 bed • 1 bath • 527 ft²
4 bedroom flat for sale in High Street, Linlithgow, West Lothian, EH49 — £220,000 • 4 bed • 1 bath • 854 ft²










































































