**Standout Features:**
- Recently extended and extensively modernized
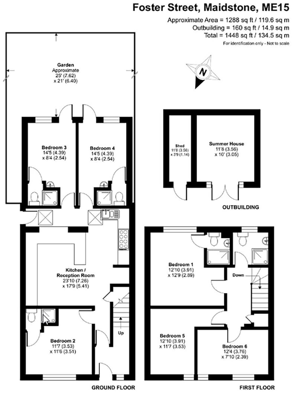
- 6 bedrooms, including 4 en-suites
- Underfloor heating and modern appliances
- Chain-free sale, ready for immediate occupancy
- Ideal for HMO or potential to convert into two flats
- Eco-friendly rainwater recycling system
- Ample storage with a large rear shed
This exceptional terraced house on Foster Street, Maidstone, presents a rare opportunity for both investors and families seeking modern living in a vibrant area. Boasting a generous 6-bedroom layout featuring 4 en-suites, the recently extended space is designed for comfort with contemporary touches such as underfloor heating and a sleek kitchen outfitted with built-in appliances.
Perfectly positioned for shared living or an HMO scenario (subject to licensing), this property provides remarkable flexibility, with existing work making conversion into two separate flats a possibility. Eco-conscious buyers will appreciate the rainwater recycling system, promising savings on utilities. Chain-free and ready to move in, this home is immediately livable or can be tailored further to suit your investment strategy.
Located in the heart of Maidstone, you’ll have easy access to a plethora of amenities, excellent transport links, and reputable schools, making it an ideal choice for professionals and families alike. With the local area on the upswing, seize this unique investment opportunity while it lasts; contact us today for a viewing!
6 bedroom terraced house for sale in Randall Street, Maidstone, Kent, ME14 — £400,000 • 6 bed • 2 bath • 1281 ft²
4 bedroom end of terrace house for sale in Wheeler Street, Maidstone, Kent, ME14 — £325,000 • 4 bed • 3 bath • 1140 ft²
6 bedroom semi-detached house for sale in Bower Mount Road, Maidstone, Kent, ME16 — £500,000 • 6 bed • 4 bath • 2433 ft²
2 bedroom terraced house for sale in Wheeler Street, Maidstone, ME14 — £250,000 • 2 bed • 1 bath • 1248 ft²
6 bedroom terraced house for sale in Bower Lane, Maidstone, ME16 — £350,000 • 6 bed • 2 bath • 1070 ft²
7 bedroom semi-detached house for sale in Douglas Road, Maidstone, ME16 — £425,000 • 7 bed • 7 bath • 1422 ft²


























































