Move-in ready two-bedroom with concierge, terraces and excellent transport links.
13th-floor apartment with extensive city skyline views
Open-plan living with private winter garden and modern fittings
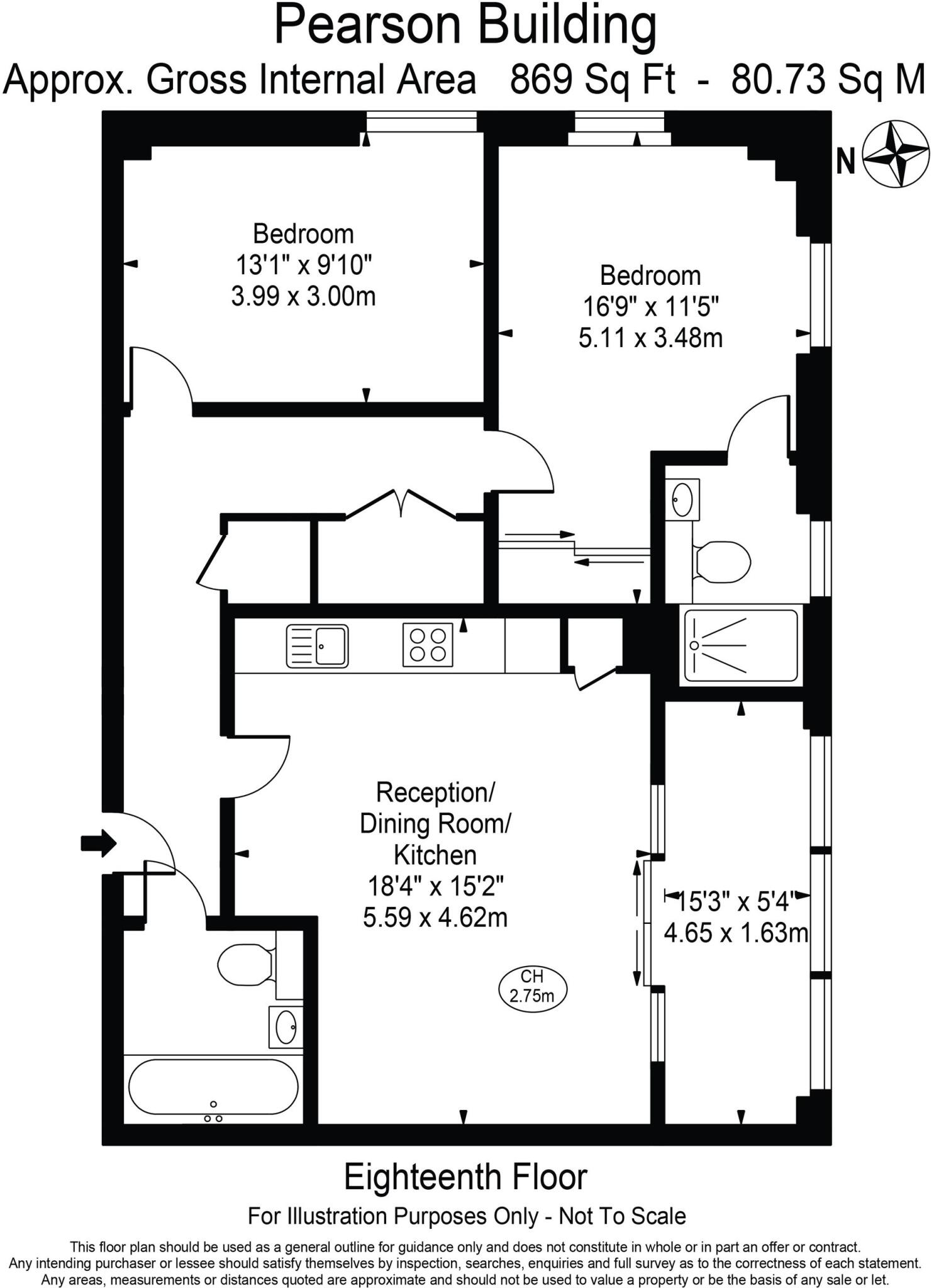
Two bedrooms, two bathrooms; 869 sq ft (approx.)
Directly opposite West Croydon station; 14 minutes to London Bridge
24-hour concierge, rooftop terraces and podium garden
999-year lease; ready to move in, new-build standard
Very slow broadband speeds locally; consider providers
Local area: above-average crime rate and classified as deprived
Set on the 13th floor, this brand-new two-bedroom apartment offers wide city views and practical living for a first home. The open-plan living area flows to a private winter garden; contemporary fitted kitchen and two bathrooms make it move-in ready.
The development sits opposite West Croydon station, with frequent connections and a 14-minute rail journey to London Bridge. On-site amenities include 24-hour concierge, rooftop terraces and a landscaped podium garden, plus a strong cluster of local shops, cafés and services nearby.
Buyers should note clear drawbacks: the neighbourhood records above-average crime and is classified as deprived, and broadband speeds are reported as very slow. The property is leasehold (999 years) and newly renovated, presenting straightforward ownership and rental potential for those prioritising location and modern facilities.
2 bedroom apartment for sale in Station Road, Croydon, CR0 — £400,000 • 2 bed • 2 bath • 743 ft²
2 bedroom apartment for sale in 233 High Street, Croydon, CR0 — £375,000 • 2 bed • 2 bath • 765 ft²
1 bedroom flat for sale in 6-44 Station Road, Croydon, CR0 2RB, CR0 — £400,000 • 1 bed • 1 bath • 544 ft²
1 bedroom apartment for sale in 6-44 Station Road, Croydon, CR0 2RB, CR0 — £405,000 • 1 bed • 1 bath • 544 ft²
2 bedroom apartment for sale in London Road, Croydon, CR0 — £270,000 • 2 bed • 2 bath • 661 ft²
2 bedroom flat for sale in High Street, Croydon, CR0 — £350,000 • 2 bed • 2 bath • 751 ft²


























