Roomy three-bedroom home with large garden, garage and ample parking.
Generous plot with mature rear garden backing onto woodland
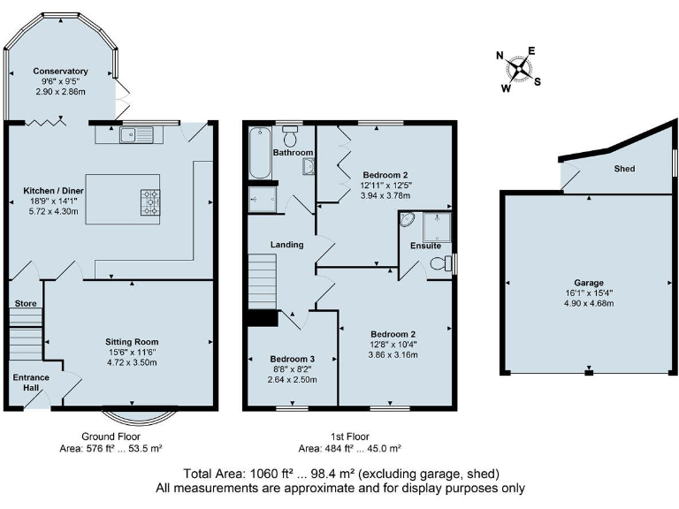
Located on a generous plot on The Common in Baddesley Ensor, this deceptively spacious three-bedroom end-terrace offers practical family living with scope to personalise. Ground-floor accommodation flows from a sitting room through a dining area into a conservatory, while the large kitchen breakfast room and separate utility provide everyday convenience.
Upstairs there are three good-sized bedrooms; the main bedroom benefits from an en-suite. Outside, mature lawns and borders back onto woodland, and a double gated driveway leads to ample parking and a detached double garage — rare for an end-terrace in this area. The plot gives room for family activities, gardening or potential modest extension (subject to consents).
Notable positives include double glazing, mains gas central heating, very low local crime and good local schools nearby. Broadband speeds are average and mobile signal is excellent — useful for home working or streaming.
Buyers should note some practical matters: aerial imagery and descriptions indicate roof wear that may need attention, and the vendor’s particulars state that fixtures, fittings, appliances and services have not been tested. Prospective purchasers should verify service connections and any recent works or permissions before commitment.
Overall this home suits families seeking a roomy, well-situated property with private gardens and strong parking provision, and for buyers prepared to carry out light maintenance or updating to maximise the home’s long-term potential.
3 bedroom end of terrace house for sale in Keys Hill, ATHERSTONE, Warwickshire, CV9 — £275,000 • 3 bed • 2 bath • 1412 ft²
3 bedroom semi-detached house for sale in New Street, Baddesley Ensor, Atherstone, Warwickshire, CV9 — £250,000 • 3 bed • 2 bath • 738 ft²
4 bedroom house for sale in The Crescent, Baddesley Ensor, Atherstone, Warwickshire, CV9 — £325,000 • 4 bed • 3 bath • 1230 ft²
3 bedroom semi-detached house for sale in Jean Street, Baddesley Ensor, Atherstone, CV9 — £220,000 • 3 bed • 1 bath • 920 ft²
3 bedroom end of terrace house for sale in Tamworth Road, Wood End, CV9 — £330,000 • 3 bed • 1 bath • 1541 ft²
3 bedroom semi-detached house for sale in St. Nicholas Estate, Baddesley Ensor, Atherstone, Warwickshire, CV9 — £259,000 • 3 bed • 1 bath • 1858 ft²










































































































