Affordable two-bed with large basement and modern kitchen near Saltwell Park.
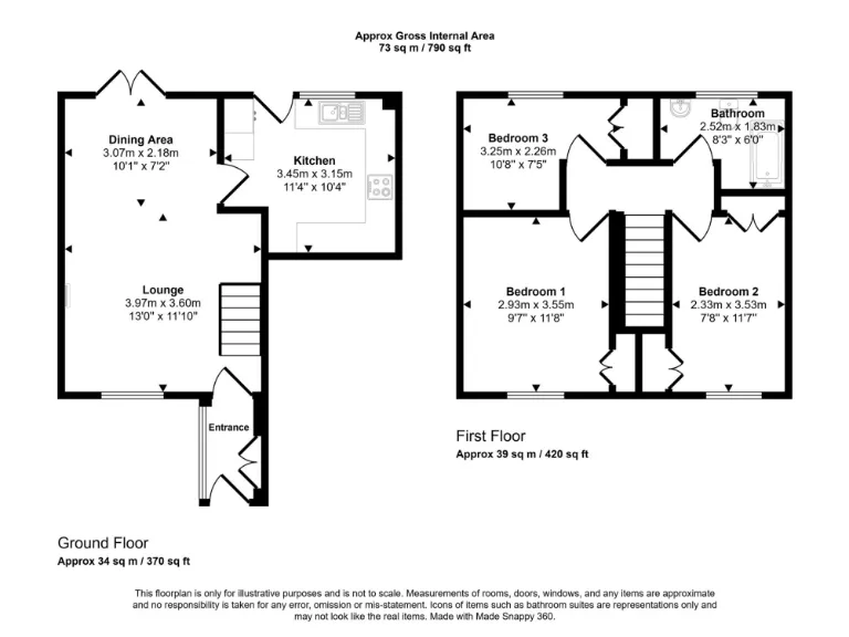
- Two bedrooms on ground floor in a Victorian mid-terrace layout
- Refitted modern kitchen and updated bathroom, ready to use
- Large basement divided into three powered sections, good potential
- UPVC double glazing and mains gas central heating (combi boiler)
- Long lease: 972 years remaining, Leasehold tenure
- Council Tax Band A — low running costs for the area
- Built c.1900–1929; solid brick walls, likely no wall insulation
- Area has above-average crime and higher deprivation levels
A spacious two-bedroom ground-floor flat in a Victorian mid-terrace, quietly tucked near Saltwell Park with strong transport links to Gateshead, Newcastle and Team Valley. The home combines period exterior charm with a refitted modern kitchen and an updated bathroom, plus UPVC double glazing and gas central heating for everyday comfort.
The property benefits from an unusually large, powered basement divided into three areas — useful for storage, a workshop or conversion subject to necessary checks — and a decked rear sitting area with a covered section currently housing a hot tub. With 972 years remaining on the lease and a low Council Tax Band A, running costs are likely to be modest.
Practical considerations are clear: the building dates from circa 1900–1929 with assumed solid brick walls and no installed wall insulation, and the wider neighbourhood records above-average crime and higher area deprivation. Buyers should inspect the basement and overall condition in person to confirm any maintenance or upgrade needs, particularly thermal improvements or damp checks common to older terraces.
This home will suit first-time buyers wanting an affordable entry into a well-connected part of Gateshead or investors seeking rental potential close to amenities and good local schools. It offers immediate liveability with scope for cosmetic or energy-efficiency enhancements to increase value over time.
2 bedroom ground floor flat for sale in Patterdale Terrace, Gateshead, NE8 — £109,950 • 2 bed • 1 bath • 635 ft²
2 bedroom apartment for sale in Windsor Avenue, Gateshead, NE8 — £89,950 • 2 bed • 1 bath • 700 ft²
2 bedroom apartment for sale in Inskip Terrace, Gateshead, NE8 — £90,000 • 2 bed • 1 bath
2 bedroom apartment for sale in Fern Dene Road, Bensham, Gateshead, NE8 — £104,950 • 2 bed • 1 bath • 700 ft²
2 bedroom flat for sale in Eastbourne Avenue, Gateshead, Tyne and Wear, NE8 — £70,000 • 2 bed • 1 bath • 668 ft²
2 bedroom apartment for sale in Rawling Road, Gateshead, NE8 — £85,000 • 2 bed • 1 bath • 679 ft²










































































