Spacious cul-de-sac house with garage and south-facing garden for family living.
Five bedrooms across three floors, flexible family layout
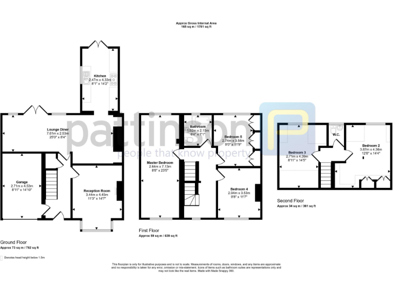
This extended five-bedroom semi-detached home sits quietly on a cul-de-sac in Stakeford Crescent, offering generous family accommodation across three floors. The layout includes a separate lounge, a cosy snug linking to a modern kitchen, and a spacious open-plan dining/living area with French doors that open onto a south-facing rear garden — ideal for children and summer entertaining.
Practical everyday living is well provided for: parking for three cars plus an integral garage with electric roller door, gas combi central heating, and double glazing throughout (install dates unknown). The master bedroom benefits from a dressing area and fitted wardrobes; two further bedrooms are on the first floor with two additional bedrooms and a WC on the second floor, giving flexible sleeping arrangements for growing families or guests.
Positioned for access to Ashington, Bedlington and Morpeth and close to schools rated Good, this property suits commuting families wanting space and convenience. The plot is a decent size with a lawn and decked area facing south, while broadband speeds are fast for home working and entertainment. Note the house was built in the 1930–1949 period and, although extended and upgraded, some original elements may remain; double glazing install dates are not specified.
3 bedroom semi-detached house for sale in Alderton Court, Stakeford, Choppington, Northumberland, NE62 5BS, NE62 — £220,000 • 3 bed • 2 bath • 1163 ft²
3 bedroom semi-detached house for sale in Stakeford terrace, Choppington, Northumberland, NE62 — £120,000 • 3 bed • 1 bath • 820 ft²
5 bedroom terraced house for sale in Mowbray Court, Stakeford Lane, Choppington, Northumberland, NE62 — £195,000 • 5 bed • 3 bath • 1152 ft²
3 bedroom semi-detached house for sale in River Bank, Choppington, NE62 — £120,000 • 3 bed • 1 bath
3 bedroom detached house for sale in Brockwood Close, Ashington, NE63 — £240,000 • 3 bed • 1 bath
5 bedroom terraced house for sale in Mowbray Court, Stakeford Lane, Choppington, Northumberland, NE62 — £195,000 • 5 bed • 3 bath • 1152 ft²


























































































































