Generous three-storey family living near Cambridge with low-maintenance outdoor space.
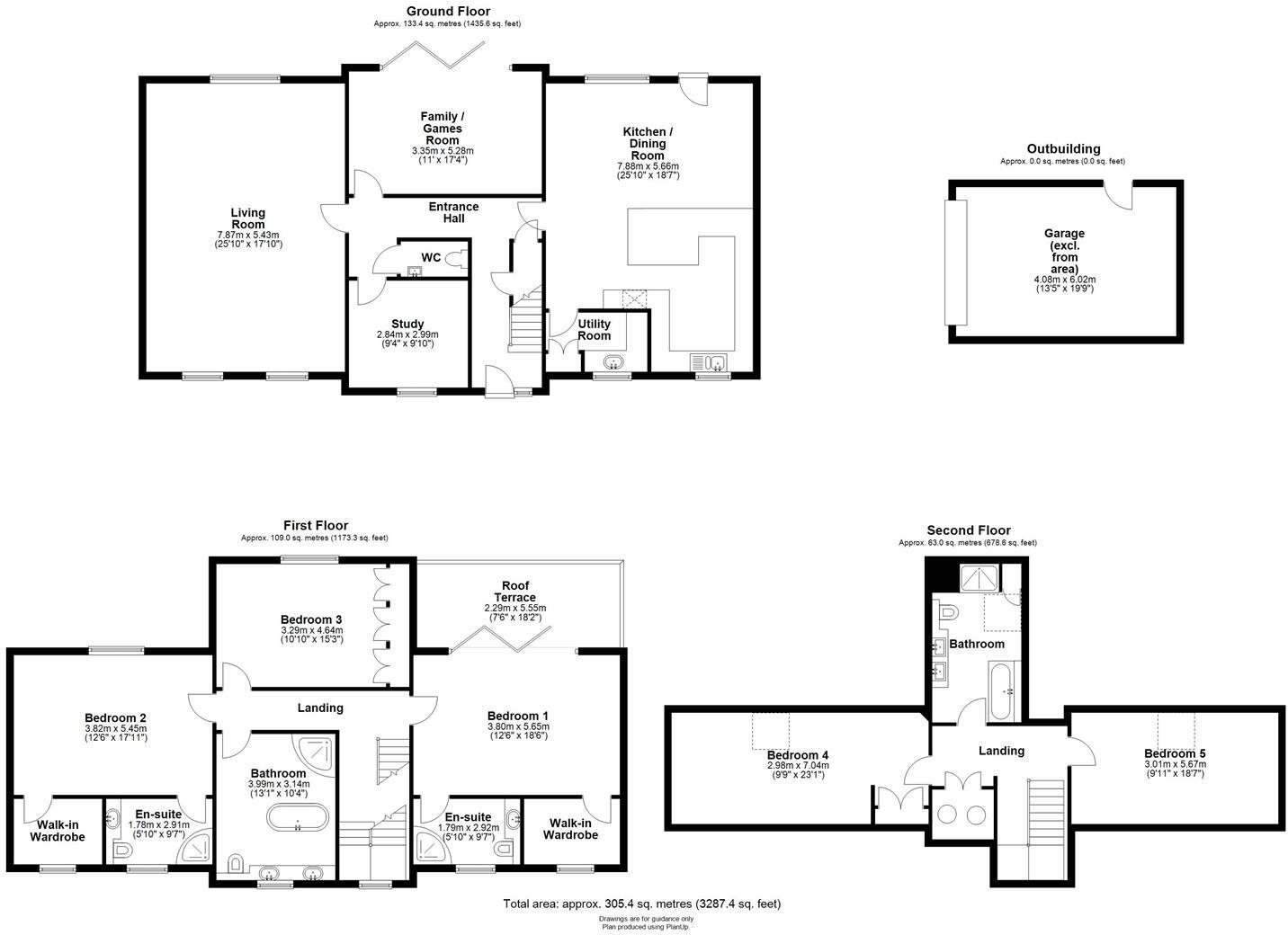
Five large double bedrooms across three floors
This substantial detached house offers nearly 3,300 sq ft of flexible family accommodation over three floors. Recently redecorated throughout and built around 2015, it provides five large double bedrooms, four bathrooms and three generous reception rooms, arranged to suit growing family life and home working.
The bespoke kitchen is a standout space with solid oak cabinetry, quartz surfaces and a large breakfast peninsula opening to an adjacent utility. Bi-fold doors from the family/dining room lead to a low-maintenance landscaped garden and full-width paved terrace, while the principal suite includes a dressing room and balcony with pleasant views across the cricket field.
Practical benefits include a detached garage with power and lighting, driveway parking for two to three cars, good bus links into Cambridge and Haverhill, and the advantage of no upward chain. Local schooling and village amenities are close by, making this an appealing village-family home.
Buyers should note the property’s heating is oil-fired, which can be more costly and requires regular servicing and fuel deliveries. Council tax is described as quite expensive; factor running costs into long-term budgeting. Overall, the house is well presented and ready to move into, offering significant space and strong family appeal in a sought-after rural village.
5 bedroom detached house for sale in Moorfield, Harston, Cambridge, CB22 — £1,300,000 • 5 bed • 3 bath • 3564 ft²
4 bedroom detached house for sale in High Street, West Wratting, Cambridge, CB21 — £1,000,000 • 4 bed • 3 bath • 2663 ft²
4 bedroom detached house for sale in Haverhill Road, Horseheath, Cambridge, CB21 — £675,000 • 4 bed • 2 bath • 2002 ft²
6 bedroom detached house for sale in Bishops Way, Newport, CB11 — £1,250,000 • 6 bed • 4 bath • 2905 ft²
5 bedroom detached house for sale in The Hectare, Great Shelford, CB22 — £1,150,000 • 5 bed • 4 bath • 2367 ft²
3 bedroom semi-detached house for sale in Alington Terrace, Horseheath, Cambridge, Cambridgeshire, CB21 — £425,000 • 3 bed • 1 bath • 1119 ft²


























































































































































